Casa indipendente in vendita a Cantù
€ 335.000,00
prezzo di vendita
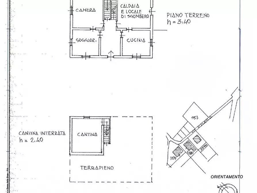
CANTU' (CO) – In zona comoda con il centro e con i servizi, proponiamo ottima casa indipendente disposta su 3 livelli, per una superficie complessiva di circa 400 mq, OLTRE box doppio, magazzino e area esterna di cc 250 mq.L'immobile è composto da: -Piano Terra ampio appartamento di cc 130 mq con ingresso indipendente, attualmente adibito a taverna, caratterizzato da spazi generosi e facilmente personalizzabili in base alle proprie esigenze; -Primo Piano appartamento già abitabile di circa 130 mq, composto da ingresso, cucina, sala da pranzo, luminosa zona giorno, 2 camere da letto e doppi servizi. -Secondo Piano 2 ampi bilocali, parzialmente ristrutturati, ideali come unità indipendenti per familiari, ospiti oppure da destinare a locazione.Completano la proprietà:•Grande Box doppio con soppalco, perfetto anche come spazio deposito.•Magazzino da ristrutturare, con possibilità di ricavare un ulteriore appartamento collegabile al box soppalcato, interessante opportunità di ampliamento o investimento.•Spazio esterno di proprietà di circa 250 mq, ideale come area verde, zona relax o parcheggio aggiuntivo. Immobile con ottime potenzialità di personalizzazione e valorizzazione, adatto sia come abitazione principale sia come investimento a reddito.Si consiglia la visione. Ape G.