ioaffitto.it TROVA casa. VIVI SEMPLICE.
Nuova ricerca
Pubblica annuncio
Annunci sponsorizzati
Agenzie
Valutazione-immobile
Servizi
Luce Gas Fibra
Mutui
Finanziamenti
Ricerca Internazionale
Servizi web
Servizio partecipazione asta
Pubblica annuncio
Accedi
1/15
2/15
3/15
4/15
5/15
6/15
7/15
8/15
9/15
10/15
11/15
12/15
13/15
14/15
15/15
15
Foto
0
planimetria
Ufficio in affitto a Catanzaro
€ 900,00
al mese
3
locali
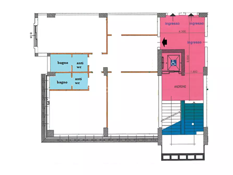
2
bagni
145
mq
A Catanzaro, su viale Magna Grecia, zona in forte espansione commerciale, nei pressi del nuovo svincolo "Catanzaro Sud", proponiamo ampio ufficio posto al piano secondo, in elegante stabile direzionale servito di ascensore ed area parcheggio recintata con cancello automatico. All'interno è composto da ingresso su sala d'attesa, tre vani studio, locale deposito e doppi servizi di cui uno a norma disabili. Dotato di controsoffitto, impianto illuminazione, rete LAN, video citofono e 2 posti auto riservati. Disponibile da subito, contratto 6+6.
RIFERIMENTO ANNUNCIO
UO38
DATA ANNUNCIO
13 dicembre 2013
DATA ULTIMO AGGIORNAMENTO
23 ottobre 2024
CONTRATTO
Affitto
TIPOLOGIA
Ufficio
SUPERFICIE
145 m²
locali
3
PIANO
2° piano
TIPO PROPRIETA'
Standard
ALTRE CARATTERISTICHE'
aria condizionata
barriere architettoniche
cortile esterno disponibile
impianto elettrico presente e a norma
cancello elettrico
doppio vetro
sistema di riscaldamento presente
riscaldamento ad aria / convettore
riscaldamento autonomo
ascensore
posto auto
porta blindata
videocitofono
Costi
€ 900,00
al mese
Costo condominio
100 / mese
Stato
nuovo
Classe energetica
B
a+
a
b
c
d
e
f
g
Mappa della zona dell'immobile
Ingrandisci mappa
Segnala un problema
Servizi per te
Inserzionista
SoloAffitti - Catanzaro 1
Corradino Domenico
Vai al sito web
Codice annuncio:
12727
Riferimento immobile:
UO38
Mostra numero
Tel: 096134464
Invia email
Motivo contatto
Appuntamento
Più informazioni
Richiesta di contatto
Più foto e materiali
Nome e cognome*
Email*
Cellulare
Messaggio*
ATTENZIONE ALLE TRUFFE
NON ANTICIPARE MAI denaro su carte ricaricabili, conti correnti esteri, money transfer o altri sistemi di pagamento
Accettazione*
Ho letto, sono maggiorenne e accetto
condizioni
,
privacy
e
Consigli antitruffa
Invia
Chiama
Contatta
Visita
Richiedi visita
Scopri subito quanto vale la tua casa per l'affitto o per la vendita!
Valuta gratis
Altri annunci simili
Ufficio in affitto a Borgia
A Borgia, località Roccelletta, in posizione strategica adiacente lo svincolo della nuova S.S.106...
€ 700
4
locali
100 ㎡
superficie
2
bagni
Ufficio in affitto in viale Vincenzo De Filippis snc a Catanzaro
A Catanzaro zona Rione De Filippis, appartamento uso ufficio con categoria catastale A/10 posto a...
€ 700
5
locali
190 ㎡
superficie
1
bagni
Ufficio in affitto a Catanzaro
A Catanzaro zona Rione De Filippis, appartamento uso ufficio con categoria catastale A/10 posto a...
€ 700
5
locali
190 ㎡
superficie
1
bagni
Ufficio in affitto a Catanzaro
A Catanzaro zona Rione De Filippis, appartamento uso ufficio con categoria catastale A/10 posto a...
€ 700
5
locali
190 ㎡
superficie
1
bagni
Ufficio in affitto a Catanzaro
A Catanzaro su via Francesco Crispi, nelle immediate vicinanze della nuova fermata della Metropol...
€ 700
6
locali
150 ㎡
superficie
1
bagni
Ufficio in affitto in via Milano a Catanzaro
A Catanzaro nelle immediate vicinanze del Tribunale e dalla nuova Procura, appartamento uso uffic...
€ 700
3
locali
80 ㎡
superficie
1
bagni
Annunci immobiliari nella stessa zona
Comune di Catanzaro:
Affitto Attività/immobili commerciali Catanzaro
|
Affitto Uffici Catanzaro
|
Agenzie immobiliari Catanzaro
|
Provincia di Catanzaro:
Affitto Attività/immobili commerciali Catanzaro
|
Affitto Uffici Catanzaro
|
Agenzie immobiliari Catanzaro
|
Email
Password
Ricordami
Registrati adesso
Sei una agenzia?
Password dimenticata?