ioaffitto.it TROVA casa. VIVI SEMPLICE.
Nuova ricerca
Pubblica annuncio
Annunci sponsorizzati
Agenzie
Valutazione-immobile
Servizi
Luce Gas Fibra
Mutui
Finanziamenti
Ricerca Internazionale
Servizi web
Servizio partecipazione asta
Pubblica annuncio
Accedi
1/7
2/7
3/7
4/7
5/7
6/7
7/7
7
Foto
0
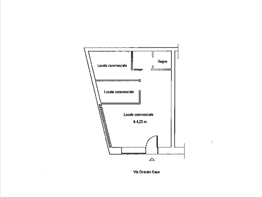
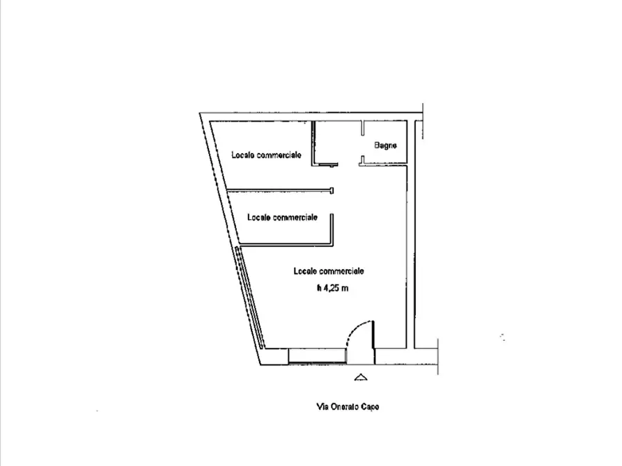
planimetria
Locale commerciale in affitto in Via Onorato Capo a Anagni
€ 650,00
al mese
-
locali
-
bagni
65
mq
POSIZIONEAnagni, in prossimità del presidio ospedaliero, su arteria principale che immette al centro storico del paese.Nelle immediate vicinanze vi è la possibilità di usufruire del parcheggio multipiano San Giorgetto.Area parcheggio a pagamento, oltre posti auto per disabili, nell'area antistante il locale.DESCRIZIONELocale commerciale posto al piano terra di c.a. 65 mq, servito da vetrina con ingresso fronte strada.La soluzione è composta da tre ambienti commerciali, antibagno e bagno.La proprietà ha un'altezza interna effettiva di 4,25 mt, attualmente controsoffitta in cartongesso. STATO E FINITUREIl locale è stato recentemente ristrutturato, con impianti di nuova generazione con certificazioni e agibilità.Il locale è servito da serranda elettrica.Gli ambienti risultano climatizzati.UTILIZZO E POTENZIALITA'Per coloro che necessitano di ulteriori metri, potrebbe essere annesso il locale attiguo di c.a. 60 mq (canone da concordare).* Le presenti informazioni non costituiscono elemento contrattuale, dovranno essere verificate in ogni caso.Per tutte le soluzioni in affitto, potete visitare il nostro sito www.gruppoempireimmobiliare.it
RIFERIMENTO ANNUNCIO
201-432
DATA ANNUNCIO
26 febbraio 2025
DATA ULTIMO AGGIORNAMENTO
18 marzo 2026
CONTRATTO
Affitto
TIPOLOGIA
Locale commerciale
SUPERFICIE
65 m²
PIANO
terra
TIPO PROPRIETA'
Standard
ALTRE CARATTERISTICHE'
barriere architettoniche
Costi
€ 650,00
al mese
Stato
buono
Classe energetica
G
a+
a
b
c
d
e
f
g
Mappa della zona dell'immobile
Ingrandisci mappa
Segnala un problema
Servizi per te
Inserzionista
Gruppo Empire Italia srl
Vai al sito web
Codice annuncio:
963474
Riferimento immobile:
201-432
Mostra numero
Tel: 0775963717
Invia email
Motivo contatto
Appuntamento
Più informazioni
Richiesta di contatto
Più foto e materiali
Nome e cognome*
Email*
Cellulare
Messaggio*
ATTENZIONE ALLE TRUFFE
NON ANTICIPARE MAI denaro su carte ricaricabili, conti correnti esteri, money transfer o altri sistemi di pagamento
Accettazione*
Ho letto, sono maggiorenne e accetto
condizioni
,
privacy
e
Consigli antitruffa
Invia
Chiama
Contatta
Visita
Richiedi visita
Scopri subito quanto vale la tua casa per l'affitto o per la vendita!
Valuta gratis
Altri annunci simili
Locale commerciale in affitto in Via Onorato Capo a Anagni
POSIZIONEAnagni, in prossimità del presidio ospedaliero, su arteria principale che immette al cen...
€ 620
60 ㎡
superficie
Locale commerciale in affitto in Via della Peschiera a Anagni
POSIZIONEAnagni, Via Peschiera, a soli 100 mt dall'ufficio postale.In zona in forte espansione co...
€ 490
40 ㎡
superficie
1
bagni
Locale commerciale in affitto in Via Vittorio Emanuele a Anagni
POSIZIONEAnagni, centro storico, sul corso principale, in Via Vittorio Emanuele, adiacente Porta ...
€ 500
80 ㎡
superficie
1
bagni
Locale commerciale in affitto in strada provinciale colleforno 34 a Alatri
Locale Commerciale di 150 mq a Alatri - Ottima Posizione. Situato in una zona strategica di Alatr...
€ 650
5
locali
150 ㎡
superficie
2
bagni
Locale commerciale in affitto a Frosinone
Agenzia SoloAffitti Frosinone 1 propone:✨ Locale Commerciale in Via Bruxelles – Frosinone✨Il lo...
€ 600
2
locali
130 ㎡
superficie
Locale commerciale in affitto in SS 155 Montelena, 03011 Tecchiena FR a Alatri
Tecchiena di Alatri in posizione strategica nei pressi delluscita della Superstrada e a due pass...
€ 700
1
locali
60 ㎡
superficie
1
bagni
Annunci immobiliari nella stessa zona
Comune di Anagni:
Affitto Locali commerciali Anagni
|
Agenzie immobiliari Anagni
|
Provincia di Frosinone:
Affitto Locali commerciali Frosinone
|
Agenzie immobiliari Frosinone
|
Email
Password
Ricordami
Registrati adesso
Sei una agenzia?
Password dimenticata?