ioaffitto.it TROVA casa. VIVI SEMPLICE.
Nuova ricerca
Pubblica annuncio
Annunci sponsorizzati
Agenzie
Valutazione-immobile
Servizi
Luce Gas Fibra
Mutui
Finanziamenti
Ricerca Internazionale
Servizi web
Servizio partecipazione asta
Pubblica annuncio
Accedi
1/10
2/10
3/10
4/10
5/10
6/10
7/10
8/10
9/10
10/10
10
Foto
0
planimetria
Attività artigianale in affitto a Parma
€ 68.000,00
al mese
-
locali
13
bagni
20400
mq
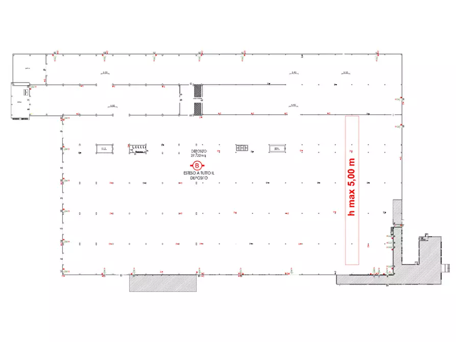
Capannone a Lentigione Parma NordIl complesso immobiliare è composto da un capannone di complessivi 20.000mq circa su un lotto di 83.500mq circa, disponibile edificabilità residua.L'altezza dell'immobile è di 10m e si distribuisce su cinque campate con tettoia di 240mq e portico di 400mq per movimentazione al coperto.Blocco uffici con servizi e spogliatoi e locale mensa di 400mq circa.Presenti carriponte nelle varie campate.Area esterna per movimentazione: sul retro 35.000mq circa; ai lati e sul fronte 18.700mq circa.Progetto approvato per la realizzazione di 4 baie di carico doppie sul lato nord del complesso.Rif. 1794Per informazioni:Immobili Parma Srls, Via Giovanni Giolitti 2/A, 43126 Parma, Tel. 05211962370, info@immobiliaziendali.euIMPORTANTE: l’effettivo stato dell’immobile potrebbe in alcuni casi discostarsi dalle caratteristiche tecniche, dalla disposizione interna e gli accessori indicati in annuncio. I portali possono pubblicare dati differenti pertanto la società Immobili Parma Srls declina ogni responsabilità per possibili incongruenze.Precisiamo inoltre che l’indirizzo pubblicato è indicativo al fine di tutelare la privacy del venditore. L’indirizzo corretto verrà comunicato previo incontro presso la nostra sede.
RIFERIMENTO ANNUNCIO
1794
DATA ANNUNCIO
28 febbraio 2025
DATA ULTIMO AGGIORNAMENTO
28 marzo 2025
CONTRATTO
Affitto
TIPOLOGIA
Attività artigianale
SUPERFICIE
20400 m²
TIPO PROPRIETA'
Standard
ALTRE CARATTERISTICHE'
barriere architettoniche
impianto elettrico presente e a norma
impianto idraulico a norma
Costi
€ 68.000,00
al mese
Classe energetica
VA
a+
a
b
c
d
e
f
g
Mappa della zona dell'immobile
Ingrandisci mappa
Segnala un problema
Servizi per te
Inserzionista
Immobili Parma SRLS
Codice annuncio:
965037
Riferimento immobile:
1794
Mostra numero
Tel: 05211962370
Invia email
Motivo contatto
Appuntamento
Più informazioni
Richiesta di contatto
Più foto e materiali
Nome e cognome*
Email*
Cellulare
Messaggio*
ATTENZIONE ALLE TRUFFE
NON ANTICIPARE MAI denaro su carte ricaricabili, conti correnti esteri, money transfer o altri sistemi di pagamento
Accettazione*
Ho letto, sono maggiorenne e accetto
condizioni
,
privacy
e
Consigli antitruffa
Invia
Chiama
Contatta
Visita
Richiedi visita
Scopri subito quanto vale la tua casa per l'affitto o per la vendita!
Valuta gratis
Altri annunci simili
a
Annunci immobiliari nella stessa zona
Comune di Parma:
Affitto Attività/immobili commerciali Parma
|
Affitto Attività artigianali Parma
|
Agenzie immobiliari Parma
|
Provincia di Parma:
Affitto Attività/immobili commerciali Parma
|
Affitto Attività artigianali Parma
|
Agenzie immobiliari Parma
|
Email
Password
Ricordami
Registrati adesso
Sei una agenzia?
Password dimenticata?