ioaffitto.it TROVA casa. VIVI SEMPLICE.
Nuova ricerca
Pubblica annuncio
Annunci sponsorizzati
Agenzie
Valutazione-immobile
Servizi
Luce Gas Fibra
Mutui
Finanziamenti
Ricerca Internazionale
Servizi web
Servizio partecipazione asta
Pubblica annuncio
Accedi
Nuovo
1/11
2/11
3/11
4/11
5/11
6/11
7/11
8/11
9/11
10/11
11/11
11
Foto
0
planimetria
Appartamento in affitto in Via Macrino a Alba
€ 680,00
al mese
2
locali
1
bagni
55
mq
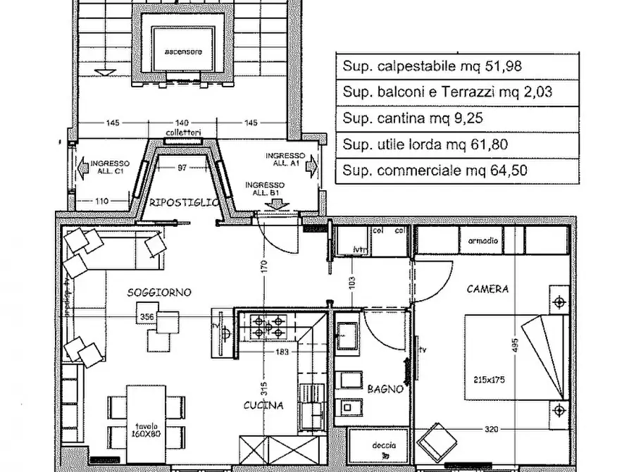
Nel centro storico di Alba, in posizione riservata a 50 m dalla centralissima piazza Pertinace, proponiamo in affitto uno splendido appartamento di nuova realizzazione, proposto da arredare e sito in signorile palazzina, dove sono in fase finale lavori di completa ristrutturazione a risparmio energetico. Sito al primo piano con ascensore, sviluppato per una metratura calpestabile di 50 mq oltre balcone, composto da ingresso su ampio soggiorno living con zona cucina a vista, disimpegno, camera da letto matrimoniale, bagno, oltre comodo ripostiglio/lavanderia con scarico per la lavatrice.
Inoltre dispone di ampia cantina livello seminterrato, oltre possibilità di locare un'autorimessa sotterranea con accesso dal cortile antistante la palazzina da valutarsi a parte in trattativa. Appartamento dotato di moderne tecnologie a risparmio energetico, con teleriscaldamento autonomo, portoncino blindato e serramenti moderni a taglio termico, zanzariere, tapparelle elettriche, predisposizione antifurto ed impianto di aria condizionata; appena rifinito con gusto e mai abitato. Richieste referenze lavorative dimostrabili o fideiussione bancaria. Maggiori info previa appuntamento in agenzia. --- annuncio pubblicato con GESTIONALEIMMOBILIARE.it
RIFERIMENTO ANNUNCIO
gestimm-4697804
DATA ANNUNCIO
23 dicembre 2025
DATA ULTIMO AGGIORNAMENTO
23 dicembre 2025
CONTRATTO
Affitto
TIPOLOGIA
Appartamento
SUPERFICIE
55 m²
locali
2
PIANO
1
TOTALE PIANI EDIFICIO
2
TIPO PROPRIETA'
Standard
ALTRE CARATTERISTICHE'
soffitta / mansarda
cantina
impianto elettrico presente e a norma
garage
riscaldamento autonomo
cucina presente
cucina abitabile
cucina angolo cottura
lavanderia
ascensore
stato di manutenzione nuovo
nuova costruzione
taverna
Costi
€ 680,00
al mese
Anno di costruzione
2025
Classe energetica
B
55.23 kWh/m2anno
a+
a
b
c
d
e
f
g
Mappa della zona dell'immobile
Ingrandisci mappa
Segnala un problema
Servizi per te
Inserzionista
PRESTIGIO IMMOBILIARE SRL
Francesco Rolando
Codice annuncio:
4697804
Mostra numero
Tel: 0173590510
Invia email
Motivo contatto
Appuntamento
Più informazioni
Richiesta di contatto
Più foto e materiali
Nome e cognome*
Email*
Cellulare
Messaggio*
ATTENZIONE ALLE TRUFFE
NON ANTICIPARE MAI denaro su carte ricaricabili, conti correnti esteri, money transfer o altri sistemi di pagamento
Accettazione*
Ho letto, sono maggiorenne e accetto
condizioni
,
privacy
e
Consigli antitruffa
Invia
Chiama
Contatta
Visita
Richiedi visita
Scopri subito quanto vale la tua casa per l'affitto o per la vendita!
Valuta gratis
Altri annunci simili
a
a
a
a
a
a
Annunci immobiliari nella stessa zona
Comune di Alba:
Affitto Case Alba
|
Affitto Appartamenti Alba
|
Agenzie immobiliari Alba
|
Provincia di Cuneo:
Affitto Case Cuneo
|
Affitto Appartamenti Cuneo
|
Agenzie immobiliari Cuneo
|
Email
Password
Ricordami
Registrati adesso
Sei una agenzia?
Password dimenticata?