ioaffitto.it TROVA casa. VIVI SEMPLICE.
Logo
Nuovo
1/1
Immagine 1 di Appartamento in vendita  in Via Toscana a Cervia
Icona foto1 Foto     Icona planimetrie 0 planimetria

Appartamento in vendita in Via Toscana a Cervia

€ 320.000,00
prezzo di vendita
3
locali
2
bagni
-
mq
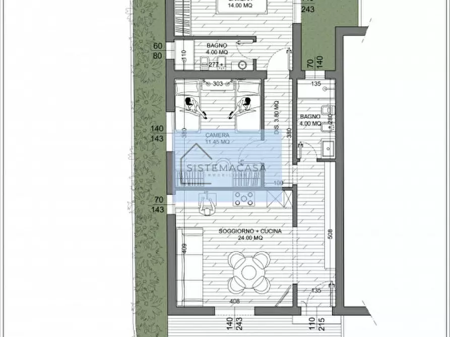
A Pinarella di Cervia, a circa 200 metri dal mare e dalla pineta, proponiamo trilocale al piano terra completamente ristrutturato e con ingresso indipendente. Edificio di pochissime unità, anch'esso completamente ristrutturato.
L'immobile è composto come segue:
- Ingresso
- Soggiorno con cucina a vista
- Doppio bagno finestrato
- Camera matrimoniale con accesso al giardino
- Camera singola ampia (11,5 mq)
Completano la proprietà il posto auto privato ed il giardino ad uso esclusivo di circa 50 mq.

Possibile scelta di materiali e personalizzazione delle finiture di pavimenti, rivestimenti, sanitari, arredo bagno ed infissi.
Possibilità di acquisto anche al grezzo.
Consegna Dicembre 2026.

Per informazioni e visite contattare:
Giancarlo 348 4121660 --- annuncio pubblicato con GESTIONALEIMMOBILIARE.it
RIFERIMENTO ANNUNCIO
gestimm-4860792
DATA ANNUNCIO
25 febbraio 2026
DATA ULTIMO AGGIORNAMENTO
25 febbraio 2026
CONTRATTO
Vendita
TIPOLOGIA
Appartamento
locali
3
PIANO
Non disponibile
TIPO PROPRIETA'
Standard
ALTRE CARATTERISTICHE'
soffitta / mansarda cantina ingresso indipendente garage giardino riscaldamento autonomo cucina presente cucina abitabile cucina angolo cottura ristrutturato posto auto taverna
Costi
€ 320.000,00
prezzo di vendita
Classe energetica IN CORSO DI VALUTAZIONE
a+ a b c d e f g
Mappa della zona dell'immobile

Calcola il mutuo

Inserisci i dati mutuo

Rata del mutuo
Al mese
Anticipo
Mutuo
Richiedi consulenza gratuita mutuo

Servizio erogato tramite  

Servizi per te
Inserzionista
Logo Agenzia Immobiliare Nuova Sistema Casa
Agenzia Immobiliare Nuova Sistema Casa
Giancarlo Appi

Codice annuncio: 4860792

Invia email
ATTENZIONE ALLE TRUFFE
 
NON ANTICIPARE MAI denaro su carte ricaricabili, conti correnti esteri, money transfer o altri sistemi di pagamento

Scopri subito quanto vale la tua casa per l'affitto o per la vendita!

   

Altri annunci simili