ioaffitto.it TROVA casa. VIVI SEMPLICE.
Logo
1/14
Immagine 1 di Appartamento in vendita  a Firenze
2/14
Immagine 2 di Appartamento in vendita  a Firenze
3/14
Immagine 3 di Appartamento in vendita  a Firenze
4/14
Immagine 4 di Appartamento in vendita  a Firenze
5/14
Immagine 5 di Appartamento in vendita  a Firenze
6/14
Immagine 6 di Appartamento in vendita  a Firenze
7/14
Immagine 7 di Appartamento in vendita  a Firenze
8/14
Immagine 8 di Appartamento in vendita  a Firenze
9/14
Immagine 9 di Appartamento in vendita  a Firenze
10/14
Immagine 10 di Appartamento in vendita  a Firenze
11/14
Immagine 11 di Appartamento in vendita  a Firenze
12/14
Immagine 12 di Appartamento in vendita  a Firenze
13/14
Immagine 13 di Appartamento in vendita  a Firenze
14/14
Immagine 14 di Appartamento in vendita  a Firenze
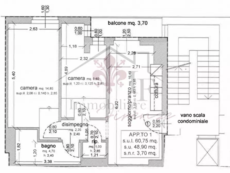
Icona foto14 Foto     Icona planimetrie 0 planimetria

Appartamento in vendita a Firenze

€ 375.000,00
prezzo di vendita
3
locali
1
bagni
60
mq
Scoprite un affascinante appartamento trilocale situato nel centro storico di Firenze, una delle città più belle e artistiche del mondo. Questa proprietà è l'ideale per chi cerca un investimento oppure una residenza elegante e comoda.

850 M DAL DUOMO DI FIRENZE
300 M DA PIAZZA SANTA MARIA NOVELLA

L'appartamento è stato completamente ristrutturato nel 2025 e verrà consegnato con tempi brevi IN CLASSE ENERGETICA B.
Si trova al secondo piano di un palazzo d’epoca degli anni 70'-80', mantenendo intatto il fascino della tradizione fiorentina con dettagli architettonici autentici e un prezioso ingresso con marmo di pregio.

L'immobile è composto da due camere da letto luminose, un soggiorno con angolo cottura accogliente che offre uno spazio ideale per rilassarsi o intrattenere ospiti, servizio oltre ripostiglio e balcone.

OPZIONALE ACQUISTO DI UNA CANTINA.

E' presente l'aria condizionata in tutte le stanze

Le spese condominiali sono contenute ( circa 80 euro mensili) che comprendono la quota del riscaldamento centralizzato a pavimento, permettendovi così di godere senza pensieri dell’indipendenza nella vostra nuova casa.

La posizione centrale consente facili accessi ai principali luoghi d’interesse culturale ed artistico: dal Duomo alla Galleria degli Uffizi fino al Ponte Vecchio; potrete vivere la storia viva ogni giorno. Inoltre, avrete a disposizione ristoranti tipici toscani, caffè storici e boutique esclusive proprio sotto casa.


Per informazioni e appuntamenti contattateci al numero: 0554220308 oppure su WhatsApp 3667581885 --- annuncio pubblicato con GESTIONALEIMMOBILIARE.it
RIFERIMENTO ANNUNCIO
gestimm-4554261
DATA ANNUNCIO
26 agosto 2025
DATA ULTIMO AGGIORNAMENTO
26 agosto 2025
CONTRATTO
Vendita
TIPOLOGIA
Appartamento
SUPERFICIE
60 m²
locali
3
PIANO
2
TOTALE PIANI EDIFICIO
6
TIPO PROPRIETA'
Standard
ALTRE CARATTERISTICHE'
aria condizionata soffitta / mansarda cantina impianto elettrico presente e a norma garage riscaldamento centralizzato riscaldamento a pavimento cucina presente cucina abitabile cucina angolo cottura ascensore stato di manutenzione nuovo nuova costruzione taverna
Costi
€ 375.000,00
prezzo di vendita
Anno di costruzione
2025
Classe energetica B
a+ a b c d e f g
Mappa della zona dell'immobile

Calcola il mutuo

Inserisci i dati mutuo

Rata del mutuo
Al mese
Anticipo
Mutuo
Richiedi consulenza gratuita mutuo

Servizio erogato tramite  

Servizi per te
Inserzionista
Logo STUDIO IL BARCO S.A.S. DI STEFANO UDISTI & C.
STUDIO IL BARCO S.A.S. DI STEFANO UDISTI & C.
Stefano Udisti

Codice annuncio: 4554261

Invia email
ATTENZIONE ALLE TRUFFE
 
NON ANTICIPARE MAI denaro su carte ricaricabili, conti correnti esteri, money transfer o altri sistemi di pagamento

Scopri subito quanto vale la tua casa per l'affitto o per la vendita!

   

Altri annunci simili

Annunci immobiliari nella stessa zona