Appartamento in vendita in via ANDLOVITZ a Laveno-Mombello
€ 89.000,00
prezzo di vendita
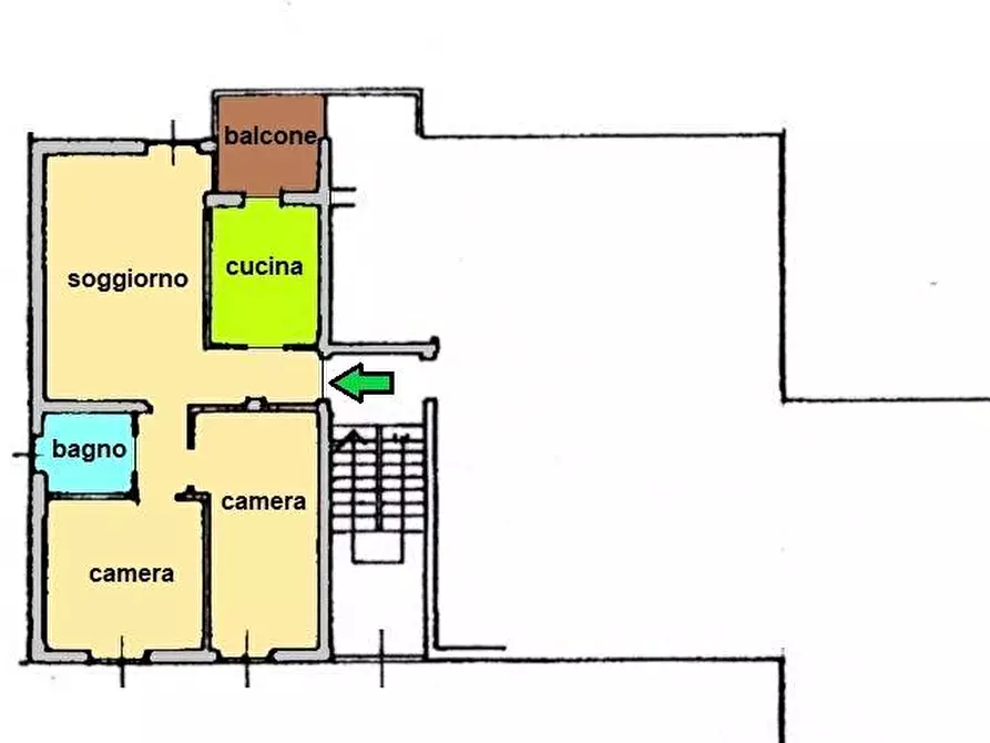
Classe energetica: G - EPgl,nren: 220,70 kWh/m² - In zona residenziale, immersa nel verde, appartamento al secondo e ultimo piano composto da : ingresso, soggiorno con terrazzino, cucina abitabile, due camere, bagno, box con cantina e posto auto. Termoautonomo.
AESSE Studio Immobiliare nasce dall'unione di Professionisti con oltre 25 anni di esperienza nel settore immobiliare, in grado di soddisfare le esigenze più svariate della clientela, supporto completo all'acquisto e alla vendita, ricerca specifica per l'acquirente, selezione immobili, visure ipotecarie, servizi per il venditore, valutazioni gratuite, servizi catastali, Certificazioni Energetiche, sanatorie edilizie.