Appartamento in vendita in via della coroncina 22 a Livorno
€ 150.000,00
prezzo di vendita
ESCLUSIVA – Proponiamo in vendita un luminoso appartamento situato in zona centrale, al quinto e ultimo piano di un condominio servito da ascensore, in contesto ordinato e ben tenuto.
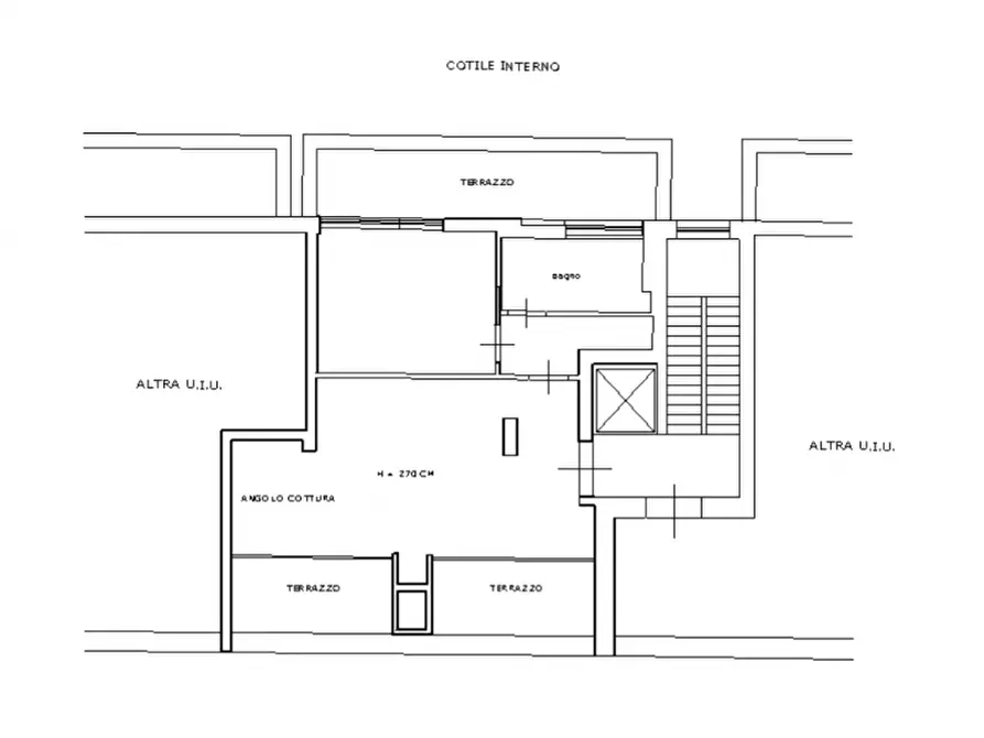
L’ingresso si apre su un accogliente soggiorno con angolo cottura, valorizzato da una pratica penisola e da ampie superfici vetrate che garantiscono un’eccellente luminosità naturale per tutta la giornata. Dal soggiorno si accede a una doppia terrazza, ideale per momenti di relax all’aperto e per vivere gli spazi esterni in ogni stagione.
Un comodo disimpegno con ripostiglio conduce alla zona notte, composta da un bagno finestrato e da una camera matrimoniale con accesso alla veranda, dove è stata ricavata una funzionale zona lavanderia.
Le finiture valorizzano ulteriormente l’immobile: parquet nella zona giorno, che conferisce calore ed eleganza agli ambienti, e piano cucina in marmo, dettaglio di pregio che unisce estetica e funzionalità.
La collocazione all’ultimo piano, unita alla doppia esposizione, rende l’appartamento particolarmente luminoso, caratteristica distintiva che lo rende estremamente piacevole e accogliente. Soluzione ideale per chi desidera vivere il centro città senza rinunciare a comfort, luce e spazi esterni.
-----------------------------------------------------
Lo “Studio Immobiliare Mei” opera nel settore dell’intermediazione di immobili residenziali, commerciali e direzionali fin dal 1969.
Siamo specializzati nella gestione di compravendite immobiliari di cantieri, nella ristrutturazione di fabbricati, sempre in forma esclusiva.
La stretta collaborazione con professionisti di comprovata esperienza quali architetti, geometri e istituti bancari permette di aiutare i nostri clienti ad ottenere le migliori soluzioni nel campo dell’edilizia.
Lo “Studio Immobiliare Mei” si distingue per la serietà professionale, la qualità dei metodi operativi e l’attenzione costante all’immagine e alla trasparenza contrattuale.
Il nostro staff è sempre impegnato nella gestione del rapporto con il cliente, realizzando servizi fotografici, campagne pubblicitarie e di marketing per valorizzare al massimo i beni affidati alla nostra agenzia.
Per garantire la privacy, l'indirizzo può non rispecchiare esattamente l'ubicazione dell'immobile e fornisce soltanto un riferimento generico utile alla sua localizzazione e consultazione.
Le informazioni riportate sono esclusivamente di natura pubblicitaria. --- annuncio pubblicato con GESTIONALEIMMOBILIARE.it