ioaffitto.it TROVA casa. VIVI SEMPLICE.
1/2
Immagine 1 di Appartamento in vendita  in via puglia a San Benedetto Del Tronto
2/2
Immagine 2 di Appartamento in vendita  in via puglia a San Benedetto Del Tronto
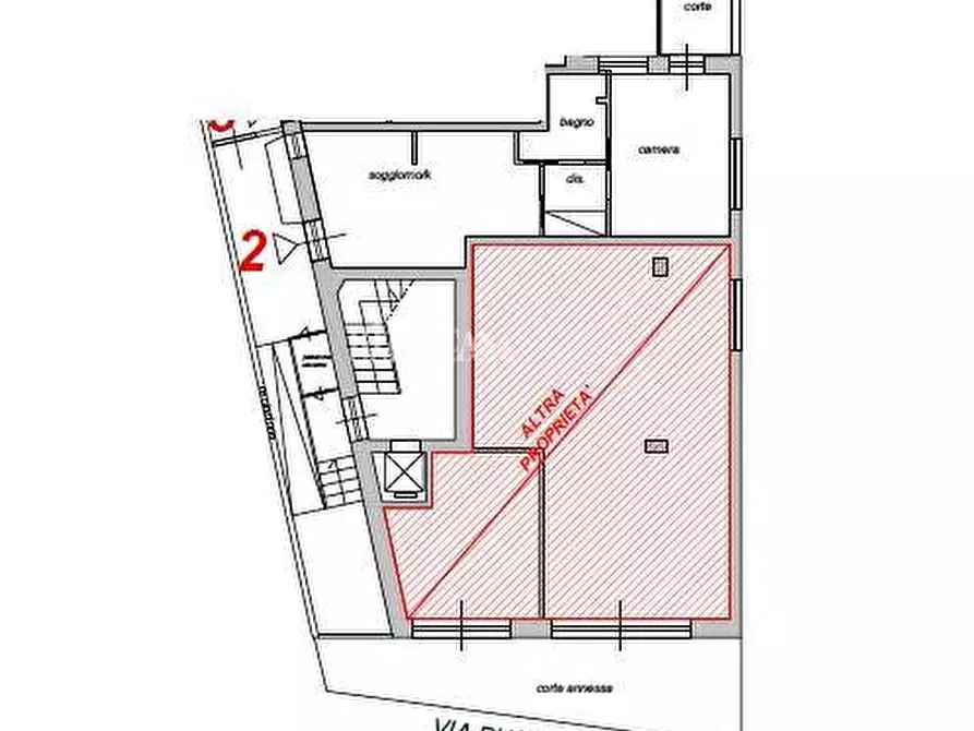
Icona foto2 Foto     Icona planimetrie 0 planimetria

Appartamento in vendita in via puglia a San Benedetto Del Tronto

€ 143.500,00
prezzo di vendita
1
locali
1
bagni
41
mq
L'agenzia Re Casa Immobiliare propone in vendita bilocale ristrutturato, sito a San Benedetto del Tronto, zona centrale e servita, a 500 mt dal mare e 100 mt dall'Ospedale, vicinissima ai principali servizi.

BIlocale al piano terra di 41 mq, con ingresso autonomo composto da ingresso su soggiorno con cucina open-space, una camera da letto matrimoniale, un bagno con doccia con areazione forzata, e corte esclusiva di 5 mq.

La parte acquirente potrà se richiesto apportare modifiche inerenti la distribuzione interna degli spazi, secondo le proprie necessità, scelta dei materiali ed eventuali personalizzazioni.

Attualmente in fase di totale ristrutturazione, rappresenta un'opportunità unica per chi desidera acquistare una nuova casa dalle finiture moderne e di qualità, ed altra efficienza energetica

Situato al piano terra di una piccola palazzina, l'immobile è stato costruito negli anni '80 ed in corso la totale ristrutturazione per rispondere alle esigenze attuali, consegna entro fine 2026.

Il comodo ingresso, lo rende adatto anche a persone con mobilità ridotta.

Possibilità di acquistare a parte garage, posto auto e fondaco.

Grazie alla sua posizione strategica e alla vicinanza a tutti i servizi, negozi e mezzi di trasporto, ospedale, rappresenta una soluzione ideale per chi cerca un appartamento funzionale e comodo da vivere, per professionisti o turisti.

Non perdere l'occasione di acquistare un appartamento moderno e di qualità in una delle zone più ricercate di San Benedetto del Tronto.
RIFERIMENTO ANNUNCIO
9710
DATA ANNUNCIO
20 marzo 2026
DATA ULTIMO AGGIORNAMENTO
20 marzo 2026
CONTRATTO
Vendita
TIPOLOGIA
Appartamento
SUPERFICIE
41 m²
locali
1
TOTALE PIANI EDIFICIO
2
TIPO PROPRIETA'
Standard
ALTRE CARATTERISTICHE'
aria condizionata adatto ad animali non arredato giardino non presente cucina a vista ascensore posto auto assente
Costi
€ 143.500,00
prezzo di vendita
Anno di costruzione
1980
Classe energetica NA - NON APPLICABILE
a+ a b c d e f g
Mappa della zona dell'immobile

Calcola il mutuo
Inserisci i dati mutuo

Rata del mutuo
Al mese
Anticipo
Mutuo
Richiedi consulenza gratuita mutuo

Servizio erogato tramite  

Servizi per te

Scopri subito quanto vale la tua casa per l'affitto o per la vendita!

   

Altri annunci simili

Appartamento in vendita in Via Toscana a San Benedetto Del Tronto
Agenzia Bruni Immobiliare propone: Appartamento in vendita nelle Marche, in Provincia di Ascoli P...
€ 143.500
2
locali
41 ㎡
superficie
1
bagni
Appartamento in vendita in Via Crispi a San Benedetto Del Tronto
In vendita nel centro di San Benedetto del Tronto e a pochi passi dal mare, appartamento composto...
€ 131.000
3
locali
53 ㎡
superficie
1
bagni
Appartamento in vendita in Via Crispi a San Benedetto Del Tronto
In vendita nel centro di San Benedetto del Tronto e a pochi passi dal mare, al piano terra appart...
€ 161.000
2
locali
63 ㎡
superficie
1
bagni
Appartamento in vendita in Via Umbria 22 a San Benedetto Del Tronto
Appartamento per civile abitazione delle dimensioni di 107 m² circa, sito al piano terreno, compo...
€ 150.000
4
locali
107 ㎡
superficie
1
bagni
Appartamento in vendita in Via Silvio Pellico 134 a San Benedetto Del Tronto
Appartamento MONOLOCALE al Piano Secondo e ultimo, delle dimensioni di 37 mq. circa, composto da ...
€ 160.000
1
locali
37 ㎡
superficie
1
bagni
Appartamento in vendita in Via Silvio Pellico 134 a San Benedetto Del Tronto
Appartamento MONOLOCALE al Piano Terra, delle dimensioni di 37 mq. circa, composto da un unico am...
€ 150.000
1
locali
37 ㎡
superficie
1
bagni