ioaffitto.it TROVA casa. VIVI SEMPLICE.
Nuova ricerca
Pubblica annuncio
Annunci sponsorizzati
Agenzie
Valutazione-immobile
Servizi
Luce Gas Fibra
Mutui
Finanziamenti
Ricerca Internazionale
Servizi web
Pubblica annuncio
Accedi
1/2
2/2
2
Foto
0
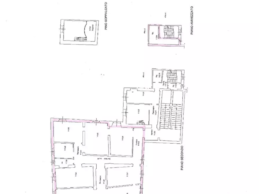
planimetria
Appartamento in affitto in Via dei Montanini, 82 a Siena
€ 2.700,00
al mese
-
locali
-
bagni
-
mq
Centro storico affittasi ufficio di 270 mq ca al secondo piano di palazzo storico. L'immobile si compone di 8 stanze e un bagno. Caratteristico nella sua totalità, elegante e con soffitti affrescati. Libero dal 1 ottobre. E' possibile affittare l'intero appartamento o anche parziale. Spese di condominio comprese nel prezzo ---Consulta il nostro sito www.immobiliaremarzocchi.it per visionare oltre 350 immobili in vendita e scegli quello più adatto alle tue esigenze
RIFERIMENTO ANNUNCIO
AP3108
DATA ANNUNCIO
16 aprile 2024
DATA ULTIMO AGGIORNAMENTO
16 aprile 2024
CONTRATTO
Affitto
TIPOLOGIA
Appartamento
TIPO PROPRIETA'
Standard
ALTRE CARATTERISTICHE'
Costi
€ 2.700,00
al mese
Stato
Buone
Classe energetica
ND
a+
a
b
c
d
e
f
g
Mappa della zona dell'immobile
Ingrandisci mappa
Segnala un problema
Servizi per te
Richiedi visita
Scopri subito quanto vale la tua casa per l'affitto o per la vendita!
Valuta gratis
Altri annunci simili
a
a
Appartamento in affitto in Via Coluccio Salutati a Firenze
### **La piccionaia** Scopri il fascino di Firenze soggiornando in questo spazioso appartamento s...
€ 2.700
90 ㎡
superficie
1
bagni
Appartamento in affitto in Via Coluccio Salutati a Firenze
Appartamento arredato con 3 camere da letto in affitto in Via Coluccio Salutati. L'immobile si tr...
€ 2.800
110 ㎡
superficie
2
bagni
a
a
Annunci immobiliari nella stessa zona
Comune di Siena:
Affitto Case Siena
|
Affitto Appartamenti Siena
|
Agenzie immobiliari Siena
|
Provincia di Siena:
Affitto Case Siena
|
Affitto Appartamenti Siena
|
Agenzie immobiliari Siena
|
Email
Password
Ricordami
Registrati adesso
Sei una agenzia?
Password dimenticata?