Appartamento in vendita in Corso Francesco Ferrucci a Torino
€ 155.000,00
prezzo di vendita
Classe energetica: D - EPgl,nren: 135,60 kWh/m² - In Corso Ferrucci, nella prestigiosa zona Cit Turin, una delle zone più richieste di Torino, in posizione strategica che permette di raggiungere facilmente tutti i servizi necessari, a pochi passi dalla fermata della Metropolitana "Bernini", nelle vicinanze anche della fermata della Metropolitana "Principi D'acaja" e comodo inoltre alla Stazione di Porta Susa, in stabile dei primi anni del '900, proponiamo appartamento molto luminoso, al quarto ed ultimo piano.
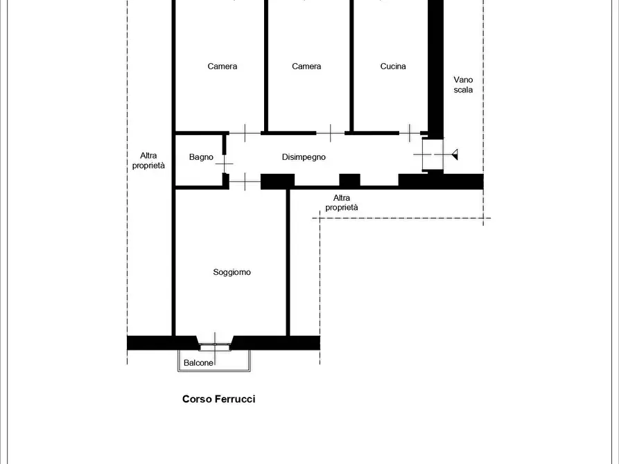
L'immobile, da personalizzare, è composto da ingresso, cucina abitabile, tre camere di cui una attualmente adibita a soggiorno, bagno completo e secondo servizio fornito di wc.
Completa la proprietà una cantina di pertinenza.
Doppia esposizione con due balconi di cui uno con affaccio su Corso Ferrucci e uno con affaccio sull'interno cortile.
Rscaldamento centralizzato con valvole termostatiche.
L'immobile viene venduto libero al rogito ed è attualmente occupato da inquilino con contratto concordato 4+2 con seconda scadenza al 30/09/2025, l'inquilino versa mensilmente Euro 480,00 esluso spese accessorie.
L'appartamento è stato locato vuoto.
La soluzione è dotata di diversi comfort tra cui: doppi vetri, fibra ottica, lavanderia e ripostiglio.
In sintesi, questo appartamento in vendita a Torino rappresenta una perfetta combinazione di storia, comfort e funzionalità, ideale per chi desidera vivere in una zona dinamica e ben servita della città, o per chi cerca un'opportunità di investimento sicura e redditizia.
L'immobile viene proposto ad Euro 155.000,00.
PER INFORMAZIONI 011.5690770 - 391.7502257.