Attico in vendita in via martiri della libertà 52 a Fabriano
€ 145.000,00
prezzo di vendita
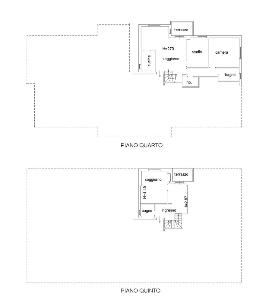
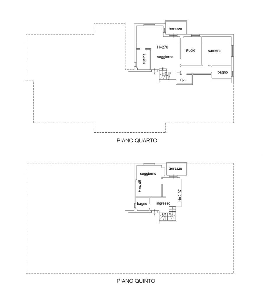
A Fabriano, in posizione semicentrale, comoda e ben servita, l'Agenzia Immobiliare Peverini propone in vendita un elegante attico e superattico situato al 4° e 5° piano di un condominio dotato di ascensore, recentemente ristrutturato. Limmobile si distingue per la luminosità degli ambienti, gli spazi ben distribuiti e la suggestiva vista aperta sulle colline circostanti. Lingresso si apre su un ampio open space, luminoso e accogliente, caratterizzato da una grande finestra e da un terrazzo con doppia uscita, perfetto per vivere appieno gli spazi esterni. Adiacente troviamo un cucinino con zona pranzo, oltre a uno studio, ideale anche come spazio smart working. La zona notte del piano principale comprende una camera matrimoniale, un bagno finestrato con vasca e un pratico ripostiglio. Una comoda scala interna conduce al piano superiore, qui troviamo unulteriore ampia camera matrimoniale, un disimpegno con accesso al terrazzo e un secondo bagno finestrato con doccia, che rende questo livello perfetto anche come zona indipendente per ospiti o per garantire maggiore privacy. Limmobile è valorizzato da infissi nuovi in PVC e parquet nello studio e nella zona notte, che conferiscono calore ed eleganza agli ambienti.
Completano la proprietà una cantina e un doppio box auto, comodi per parcheggiare più di un'auto e come spazio deposito.
Soluzione ideale per chi cerca una casa esclusiva, luminosa e panoramica, con spazi versatili e tutti i comfort.