ioaffitto.it TROVA casa. VIVI SEMPLICE.
Nuova ricerca
Pubblica annuncio
Annunci sponsorizzati
Agenzie
Valutazione-immobile
Servizi
Luce Gas Fibra
Mutui
Finanziamenti
Ricerca Internazionale
Servizi web
Servizio partecipazione asta
Pubblica annuncio
Accedi
1/6
2/6
3/6
4/6
5/6
6/6
6
Foto
0
planimetria
Attività artigianale in affitto a Parma
€ 8.000,00
al mese
-
locali
3
bagni
1900
mq
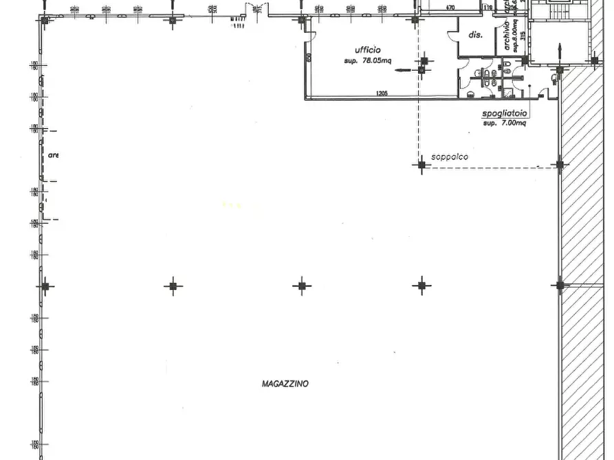
Capannone in affitto allo SPIPL’immobile è situato all’interno del comparto industriale SPIP di Parma, in posizione strategica grazie alla vicinanza alla Tangenziale e al casello autostradale A1.La superficie complessiva è di circa 1.900mq ed è così articolata:Magazzino di circa 1.623mq, completo di spogliatoi e servizi;Uffici interni al capannone per circa 81mq;Soppalco di circa 90mq;Ulteriori uffici e vani deposito per circa 106mq, direttamente accessibili dall’esterno.Riscaldati e raffrescati gli uffici.Il capannone è composto da quattro campate con pilastri senza mensola e presenta altezze interne di circa 7,00m sotto trave e 10,00m circa complessivi.L’immobile è dotato di tre portoni carrabili, di cui uno affacciato su una zona coperta con tettoia, ideale per le operazioni di carico e scarico merci.L'area cortiliva è di 1.100mq circa e si distribuisce sui tre lati del capannone.Grazie alla presenza di ampie finestrature, l’immobile si presta sia a un utilizzo logistico/magazzino sia a uso produttivo.Disponibile da giugno 2026.Rif. 1840Per informazioni: Immobili Parma Srls, Via Giovanni Giolitti 2/A, 43126 Parma, Tel. 05211962370, info@immobiliaziendali.euwww.immobiliaziendali.euIMPORTANTE: l’effettivo stato dell’immobile potrebbe in alcuni casi discostarsi dalle caratteristiche tecniche, dalla disposizione interna e gli accessori indicati in annuncio. I portali possono pubblicare dati differenti, pertanto, la società Immobili Parma Srls declina ogni responsabilità per possibili incongruenze.Precisiamo inoltre che l’indirizzo pubblicato è indicativo al fine di tutelare la privacy del venditore. L’indirizzo corretto verrà comunicato previo incontro presso la nostra sede.
RIFERIMENTO ANNUNCIO
1840
DATA ANNUNCIO
14 gennaio 2026
DATA ULTIMO AGGIORNAMENTO
3 febbraio 2026
CONTRATTO
Affitto
TIPOLOGIA
Attività artigianale
SUPERFICIE
1900 m²
TIPO PROPRIETA'
Standard
ALTRE CARATTERISTICHE'
aria condizionata
barriere architettoniche
impianto elettrico presente e a norma
cancello elettrico
sistema di riscaldamento presente
riscaldamento ad aria / convettore
riscaldamento autonomo
impianto idraulico a norma
soppalco
Costi
€ 8.000,00
al mese
Classe energetica
VA
a+
a
b
c
d
e
f
g
Mappa della zona dell'immobile
Ingrandisci mappa
Segnala un problema
Servizi per te
Inserzionista
Immobili Parma SRLS
Codice annuncio:
1050768
Riferimento immobile:
1840
Mostra numero
Tel: 05211962370
Invia email
Motivo contatto
Appuntamento
Più informazioni
Richiesta di contatto
Più foto e materiali
Nome e cognome*
Email*
Cellulare
Messaggio*
ATTENZIONE ALLE TRUFFE
NON ANTICIPARE MAI denaro su carte ricaricabili, conti correnti esteri, money transfer o altri sistemi di pagamento
Accettazione*
Ho letto, sono maggiorenne e accetto
condizioni
,
privacy
e
Consigli antitruffa
Invia
Chiama
Contatta
Visita
Richiedi visita
Scopri subito quanto vale la tua casa per l'affitto o per la vendita!
Valuta gratis
Altri annunci simili
Annunci immobiliari nella stessa zona
Comune di Parma:
Affitto Attività/immobili commerciali Parma
|
Affitto Attività artigianali Parma
|
Agenzie immobiliari Parma
|
Provincia di Parma:
Affitto Attività/immobili commerciali Parma
|
Affitto Attività artigianali Parma
|
Agenzie immobiliari Parma
|
Email
Password
Ricordami
Registrati adesso
Sei una agenzia?
Password dimenticata?