ioaffitto.it TROVA casa. VIVI SEMPLICE.
Nuova ricerca
Pubblica annuncio
Annunci sponsorizzati
Agenzie
Valutazione-immobile
Servizi
Luce Gas Fibra
Mutui
Finanziamenti
Ricerca Internazionale
Servizi web
Servizio partecipazione asta
Pubblica annuncio
Accedi
Nuovo
1/12
2/12
3/12
4/12
5/12
6/12
7/12
8/12
9/12
10/12
11/12
12/12
12
Foto
0
planimetria
Attività artigianale in affitto in Via Meucci a Rubano
€ 9.000,00
al mese
10
locali
-
bagni
2800
mq
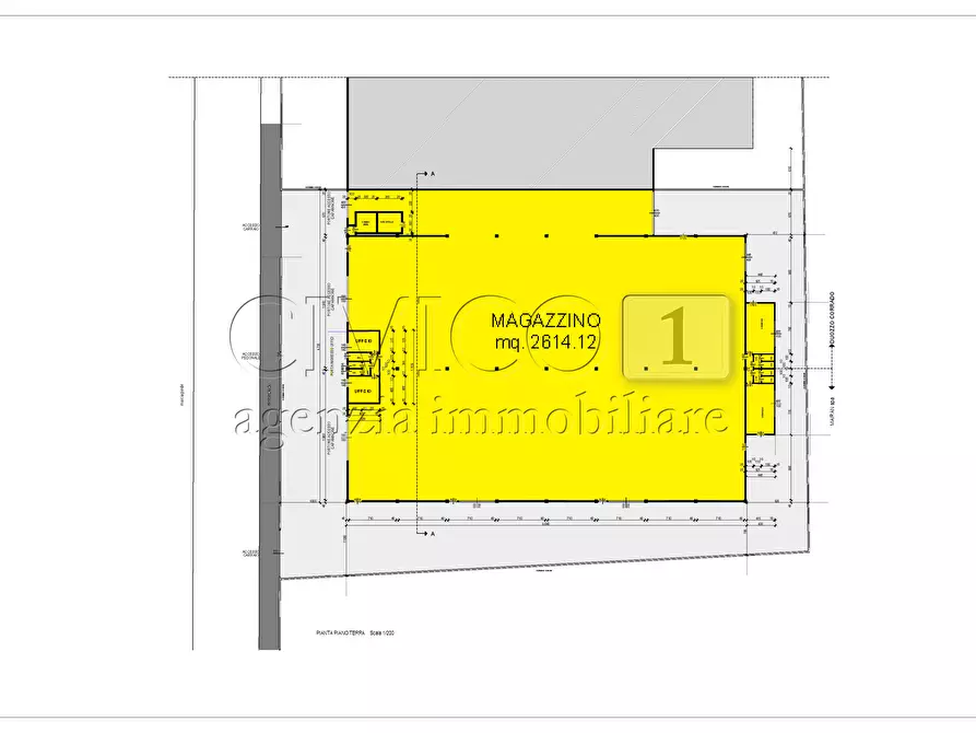
RU900 Capannone industriale – RUBANO (PD) – 2.300 mqProponiamo in locazione capannone industriale di 2.800 mq situato nella zona produttiva di Rubano, in posizione strategica e comoda ai principali collegamenti viari.Caratteristiche principali- Superficie totale: 2.874 di cui 100mq di uffici e 90 mq di spogliatoi.- Destinazione d’uso: industriale / artigianale / logistica leggera- Altezza interna: idonea per stoccaggio e attività produttive- Struttura: prefabbricato industriale, spazi regolari e facilmente adattabili- Accessi: portoni carrabili per mezzi pesanti- Petrinenza esterna: area di manovra e carico/scarico che consente la possibilità di giro a 360°.- Impiantistica: dotazioni base presenti, cabina enel interna, - Area esterna esclusiva di 1750mq dedicata al carico/scarico dei muletti, per operazioni sicure e veloci.- Carroponte presente .- Cabina Enel dedicata per garantire una potenza elettrica adeguata alle esigenze della tua attività.- Altezza utile fino a 9 metri, perfetta per ottimizzare lo stoccaggio e la movimentazione di merci, anche ingombranti.- Sistema di rete antincendio ad anello lungo il perimetro esterno, per la massima sicurezza dell'immobile e delle merci.Punti di forza- Posizione strategica vicino a tangenziale e A4- Spazio flessibile, adatto a molteplici attività- Contesto produttivo consolidato con servizi e infrastrutture- Ottimo rapporto superficie/prezzoIdeale per- Logistica leggera- Deposito e magazzino- Produzione artigianale/industriale- Laboratori con area operativa estesaClasse energetica: G – IPE 100.62 kWh/m³ annoCanone di locazione: € 9.000,00 al mese + imposte.Posizione ideale per aziende che operano nelle aree strategiche di Padova, Vicenza e Venezia, con facile accesso alle principali vie di comunicazione.Per maggiori informazioni e per prenotare una visita, contattaci al 338.1588333 o invia una mail all'indirizzo rubano@civico1.com
RIFERIMENTO ANNUNCIO
RU900
DATA ANNUNCIO
25 febbraio 2026
DATA ULTIMO AGGIORNAMENTO
25 febbraio 2026
CONTRATTO
Affitto
TIPOLOGIA
Attività artigianale
SUPERFICIE
2800 m²
locali
10
TIPO PROPRIETA'
Standard
ALTRE CARATTERISTICHE'
barriere architettoniche
posto auto
Costi
€ 9.000,00
al mese
Anno di costruzione
1985
Stato
buono
Classe energetica
G
a+
a
b
c
d
e
f
g
Mappa della zona dell'immobile
Ingrandisci mappa
Segnala un problema
Servizi per te
Inserzionista
CIVICO1 Agenzia Immobiliare
Vai al sito web
Codice annuncio:
1065222
Riferimento immobile:
RU900
Mostra numero
Tel: 049635135
Invia email
Motivo contatto
Appuntamento
Più informazioni
Richiesta di contatto
Più foto e materiali
Nome e cognome*
Email*
Cellulare
Messaggio*
ATTENZIONE ALLE TRUFFE
NON ANTICIPARE MAI denaro su carte ricaricabili, conti correnti esteri, money transfer o altri sistemi di pagamento
Accettazione*
Ho letto, sono maggiorenne e accetto
condizioni
,
privacy
e
Consigli antitruffa
Invia
Chiama
Contatta
Visita
Richiedi visita
Scopri subito quanto vale la tua casa per l'affitto o per la vendita!
Valuta gratis
Altri annunci simili
Annunci immobiliari nella stessa zona
Comune di Rubano:
Affitto Attività/immobili commerciali Rubano
|
Affitto Attività artigianali Rubano
|
Agenzie immobiliari Rubano
|
Provincia di Padova:
Affitto Attività/immobili commerciali Padova
|
Affitto Attività artigianali Padova
|
Agenzie immobiliari Padova
|
Email
Password
Ricordami
Registrati adesso
Sei una agenzia?
Password dimenticata?