ioaffitto.it TROVA casa. VIVI SEMPLICE.
Nuova ricerca
Pubblica annuncio
Annunci sponsorizzati
Agenzie
Valutazione-immobile
Servizi
Luce Gas Fibra
Mutui
Finanziamenti
Ricerca Internazionale
Servizi web
Pubblica annuncio
Accedi
1/2
2/2
2
Foto
0
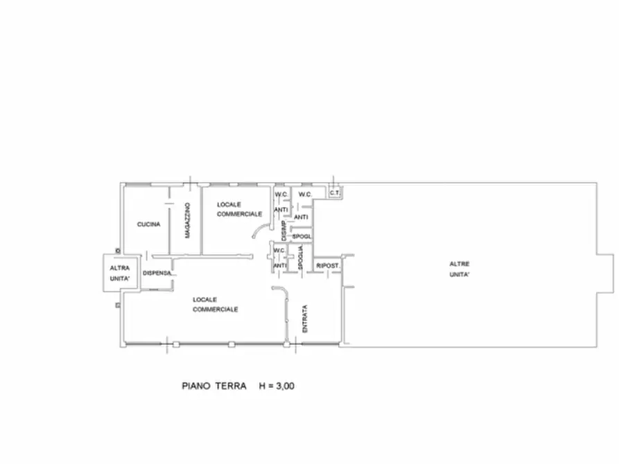
planimetria
Attività commerciale in affitto a Piove Di Sacco
Non specificato
al mese
-
locali
-
bagni
300
mq
Pizzeria Ristorante in affitto – Ampi spazi e ottima opportunità
Proponiamo in affitto pizzeria ristorante con ampi spazi, ideale per attività già avviate o nuove gestioni nel settore della ristorazione.
L’immobile si sviluppa su una superficie interna di 210 mq, ben distribuiti per accogliere sala clienti, zona bar e cucina. Completa la proprietà un’ampia area esterna coperta con tettoie per ulteriori 125 mq, perfetta per aumentare i coperti e sfruttabile in più stagioni.
La soluzione si presta perfettamente per attività di ristorazione, pizzeria o locale serale, grazie alla versatilità degli spazi e alla possibilità di personalizzazione.
Disponibile a partire da agosto.
Trattativa riservata.
Per ulteriori informazioni contatta:
-Elisa 366.9036619
☎ Agenzia Immobiliare PiazzAffari: 049/970 10 69
info@agenziapiazzaffari.net o visita il nostro sito www.agenziapiazzaffari.net
2 Punti Vendita a Piove di Sacco (PD)
- Via F.lli Sanguinazzi, 1 - Centro Commerciale Piazzagrande
- Via Roma, 29 - Centro Storico
Seguici anche su Facebook https://www.facebook.com/piazzaffarididalsantorenato/ --- annuncio pubblicato con GESTIONALEIMMOBILIARE.it
RIFERIMENTO ANNUNCIO
gestimm-4903087
DATA ANNUNCIO
23 marzo 2026
DATA ULTIMO AGGIORNAMENTO
23 marzo 2026
CONTRATTO
Affitto
TIPOLOGIA
Attività commerciale
SUPERFICIE
300 m²
PIANO
Non disponibile
TIPO PROPRIETA'
Standard
ALTRE CARATTERISTICHE'
soffitta / mansarda
cantina
garage
cucina presente
cucina abitabile
taverna
Costi
Non specificato
al mese
Classe energetica
IN CORSO DI VALUTAZIONE
a+
a
b
c
d
e
f
g
Mappa della zona dell'immobile
Ingrandisci mappa
Segnala un problema
Servizi per te
Richiedi visita
Scopri subito quanto vale la tua casa per l'affitto o per la vendita!
Valuta gratis
Altri annunci simili
a
a
a
a
a
a
Annunci immobiliari nella stessa zona
Comune di Piove Di Sacco:
Affitto Attività/immobili commerciali Piove Di Sacco
|
Affitto Attività commerciali Piove Di Sacco
|
Agenzie immobiliari Piove Di Sacco
|
Provincia di Padova:
Affitto Attività/immobili commerciali Padova
|
Affitto Attività commerciali Padova
|
Agenzie immobiliari Padova
|
Email
Password
Ricordami
Registrati adesso
Sei una agenzia?
Password dimenticata?