ioaffitto.it TROVA casa. VIVI SEMPLICE.
Nuova ricerca
Pubblica annuncio
Annunci sponsorizzati
Agenzie
Valutazione-immobile
Servizi
Luce Gas Fibra
Mutui
Finanziamenti
Ricerca Internazionale
Servizi web
Servizio partecipazione asta
Pubblica annuncio
Accedi
In affitto
/
Bar / Ristorante
/
Verona (VR)
1 di 0
Nuovo
1/7
2/7
3/7
4/7
5/7
6/7
7/7
7
Foto
0
planimetria
Bar / Ristorante in affitto in VIA MATTEOTTI a Verona
€ 2.500,00
al mese
7
locali
-
bagni
500
mq
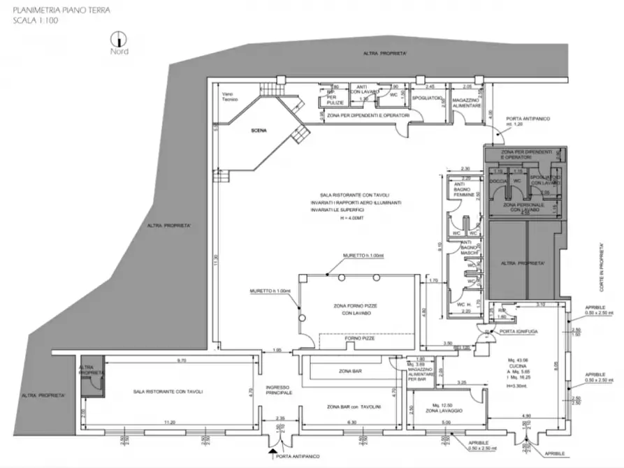
LOCALE RISTORAZIONE ZONA SAN GIOVANNI LUPATOTO (VR)
In posizione strategica su strada ad alto passaggio veicolare, si propone ampio locale commerciale ideale per ristorante, pizzeria o birreria.
Attualmente chiuso da agosto 2025, si presenta completamente vuoto e da arredare, pronto per una nuova impostazione e rilancio.
Posizione: nelle immediate vicinanze di San Giovanni Lupatoto (VR), in zona di grande visibilità, facilmente raggiungibile e con ampio parcheggio antistante.
Superficie: circa 500 mq complessivi al piano terra, disposti su un unico livello.
Distribuzione interna: due ampie sale ristorante con possibilità di oltre 150 coperti, zona bar e forno pizze centrale e ben visibile, cucina con magazzini e spogliatoi per il personale, servizi igienici separati per clienti e operatori, doppi accessi per clientela e fornitori.
Stato del locale: chiuso da agosto 2025, vuoto e privo di arredi, pronto per nuova personalizzazione e rilancio.
Canone di locazione: da definire in base al progetto gestionale proposto.
Contratto: locazione commerciale 6 + 6 anni.
Soluzione ideale per chi desidera riattivare un locale storico o avviare un nuovo format ristorativo in zona ad alta visibilità e con forte potenziale commerciale.
Riferimento annuncio: 2025187
Per informazioni e visite:
Gianfranco Passaia – GFP Consulenze Aziendali Strategiche
Tel. 331 744 5596
www.gfpvenditeaziendali.com
info@gfpvenditeaziendali.com
GFP – Consulenza strategica per chi vuole gestire o subentrare in un’attività.
RIFERIMENTO ANNUNCIO
p24-1092350-16792
DATA ANNUNCIO
6 dicembre 2025
DATA ULTIMO AGGIORNAMENTO
6 dicembre 2025
CONTRATTO
Affitto
TIPOLOGIA
Bar / Ristorante
SUPERFICIE
500 m²
locali
7
TIPO PROPRIETA'
Standard
ALTRE CARATTERISTICHE'
Costi
€ 2.500,00
al mese
Classe energetica
A4
a+
a
b
c
d
e
f
g
Mappa della zona dell'immobile
Ingrandisci mappa
Segnala un problema
Servizi per te
Inserzionista
GFP di Gianfranco Passaia
Vai al sito web
Codice annuncio:
1092350
Mostra numero
Tel: 3317445596
Invia email
Motivo contatto
Appuntamento
Più informazioni
Richiesta di contatto
Più foto e materiali
Nome e cognome*
Email*
Cellulare
Messaggio*
ATTENZIONE ALLE TRUFFE
NON ANTICIPARE MAI denaro su carte ricaricabili, conti correnti esteri, money transfer o altri sistemi di pagamento
Accettazione*
Ho letto, sono maggiorenne e accetto
condizioni
,
privacy
e
Consigli antitruffa
Invia
Chiama
Contatta
Visita
Richiedi visita
Scopri subito quanto vale la tua casa per l'affitto o per la vendita!
Valuta gratis
Altri annunci simili
Bar / Ristorante in affitto in VIA ROMA 1 a Verona
Entroterra del Lago di Garda nella splendida zona dei Colli Morenici proponiamo Storica Osteria P...
€ 2.500
7
locali
200 ㎡
superficie
Bar / Ristorante in affitto in VIA MATTEOTTI a Verona
LOCALE RISTORAZIONE ZONA SAN GIOVANNI LUPATOTO (VR) In posizione strategica su strada ad alto pas...
€ 2.500
7
locali
500 ㎡
superficie
Bar / Ristorante in affitto in VIA ROMA 1 a Verona
Entroterra del Lago di Garda nella splendida zona dei Colli Morenici proponiamo Storica Osteria P...
€ 2.500
7
locali
200 ㎡
superficie
Bar / Ristorante in affitto in VIA MATTEOTTI a Verona
LOCALE RISTORAZIONE ZONA SAN GIOVANNI LUPATOTO (VR) In posizione strategica su strada ad alto pas...
€ 2.500
7
locali
500 ㎡
superficie
Bar / Ristorante in affitto in VIA ROMA 1 a Verona
Entroterra del Lago di Garda nella splendida zona dei Colli Morenici proponiamo Storica Osteria P...
€ 2.500
7
locali
200 ㎡
superficie
Bar / Ristorante in affitto in VIA ROMA 1 a Verona
Entroterra del Lago di Garda nella splendida zona dei Colli Morenici proponiamo Storica Osteria P...
€ 2.500
7
locali
200 ㎡
superficie
Annunci immobiliari nella stessa zona
Comune di Verona:
Affitto Attività/immobili commerciali Verona
|
Agenzie immobiliari Verona
|
Provincia di Verona:
Affitto Attività/immobili commerciali Verona
|
Agenzie immobiliari Verona
|
Email
Password
Ricordami
Registrati adesso
Sei una agenzia?
Password dimenticata?