ioaffitto.it TROVA casa. VIVI SEMPLICE.
Nuova ricerca
Pubblica annuncio
Annunci sponsorizzati
Agenzie
Valutazione-immobile
Servizi
Luce Gas Fibra
Mutui
Finanziamenti
Ricerca Internazionale
Servizi web
Servizio partecipazione asta
Pubblica annuncio
Accedi
1/4
2/4
3/4
4/4
4
Foto
1
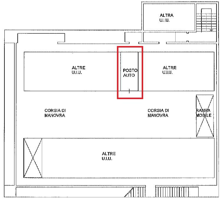
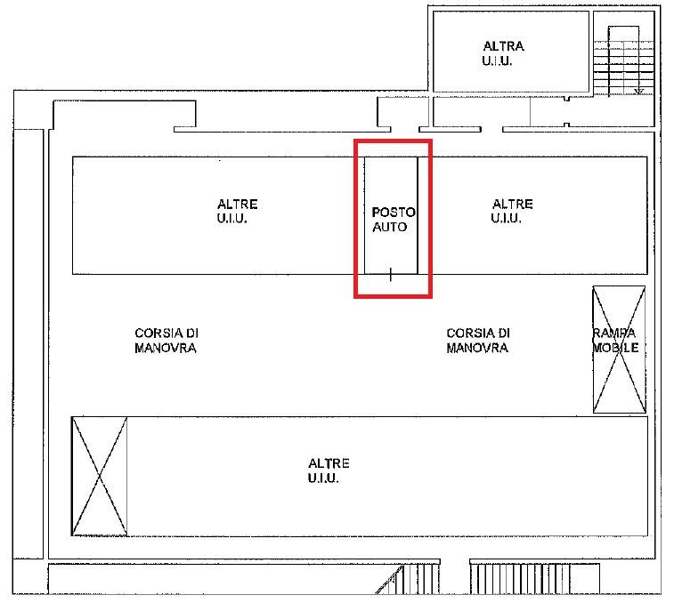
planimetria
Box auto in affitto in via niccolò piccinni 111 a Bari
€ 250,00
al mese
1
locali
-
bagni
11
mq
PLANIFIM - QUARTIERE MURAT
Disponiamo in locazione di n. 1 comodo posto auto coperto siti nel cuore del centro murattiano allinterno del tecnologico parcheggio automatizzato multipiano denominato Autopark Piccinni.
Ingresso da passo carrabile automatizzato, apertura con cancello elettrico, impianti in regola con le normative vigenti.
Disponibili subito per la locazione a conduttori referenziati al canone mensile di 250,00 oltre I. V. A. comprensivo degli oneri condominiali e di gestione.
Posto auto 1: mq. 10 c. a
Per ulteriori informazioni contattaci telefonicamente ai numeri 392.946. 79.74 - 080.502. 70.68" Planifim s. r. l.
I Vantaggi:
· Posti auto siti nel cuore del centro città
· Autosilo automatizzato multipiano, gestione semplificata degli accessi/uscite controllati
· Impianto di videosorveglianza
· Possibilità di accesso/uscita h 24
· Nessun ulteriore costo di gestione
Rifiniture:
· Ingresso da passo carrabile automatizzato
· Cancello elettrico
· Impianto automatizzato di sollevamento ed insilaggio delle auto costituito da due elevatori, quattro carrelli, due PLC che gestiscono le operazioni in automatico, tastierini touch-screen per la movimentazioni in remoto
· Impianto di gestione cassa presidiata di marca FAAC con tre colonnine operative
· Impianto di controllo accessi con lettori di cards
· Impianto di rilevazione fumi
· Impianto antincendio automatico Sprinkler
· Impianto antincendio ad idranti
· Impianto di videosorveglianza a circuito chiuso.
RIFERIMENTO ANNUNCIO
Piccinnipauto
DATA ANNUNCIO
18 luglio 2025
DATA ULTIMO AGGIORNAMENTO
18 luglio 2025
CONTRATTO
Affitto
TIPOLOGIA
Box auto
SUPERFICIE
11 m²
locali
1
TIPO PROPRIETA'
Standard
ALTRE CARATTERISTICHE'
accesso per disabili
riscaldamento assente
Costi
€ 250,00
al mese
Anno di costruzione
2002
Stato
Eccellenti
Mappa della zona dell'immobile
Ingrandisci mappa
Segnala un problema
Servizi per te
Inserzionista
Planifim S.r.l.
Vai al sito web
Codice annuncio:
1580
Riferimento immobile:
Piccinnipauto
Mostra numero
Tel: 0805027068
Invia email
Motivo contatto
Appuntamento
Più informazioni
Richiesta di contatto
Più foto e materiali
Nome e cognome*
Email*
Cellulare
Messaggio*
ATTENZIONE ALLE TRUFFE
NON ANTICIPARE MAI denaro su carte ricaricabili, conti correnti esteri, money transfer o altri sistemi di pagamento
Accettazione*
Ho letto, sono maggiorenne e accetto
condizioni
,
privacy
e
Consigli antitruffa
Invia
Chiama
Contatta
Visita
Richiedi visita
Scopri subito quanto vale la tua casa per l'affitto o per la vendita!
Valuta gratis
Altri annunci simili
Box auto in affitto in Via L. Protospata - a Matera
Fittasi garage ad uso tavernetta/cantina di 30 m2 situato in via L. Protospata a 160€ mensili
€ 160
1
locali
30 ㎡
superficie
1
bagni
Annunci immobiliari nella stessa zona
Comune di Bari:
Affitto Garage / posto auto Bari
|
Affitto Box auto Bari
|
Agenzie immobiliari Bari
|
Provincia di Bari:
Affitto Garage / posto auto Bari
|
Affitto Box auto Bari
|
Agenzie immobiliari Bari
|
Email
Password
Ricordami
Registrati adesso
Sei una agenzia?
Password dimenticata?