ioaffitto.it TROVA casa. VIVI SEMPLICE.
Nuova ricerca
Pubblica annuncio
Annunci sponsorizzati
Agenzie
Valutazione-immobile
Servizi
Luce Gas Fibra
Mutui
Finanziamenti
Ricerca Internazionale
Servizi web
Servizio partecipazione asta
Pubblica annuncio
Accedi
Nuovo
1/10
2/10
3/10
4/10
5/10
6/10
7/10
8/10
9/10
10/10
10
Foto
1
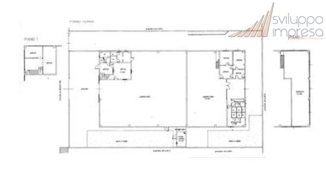
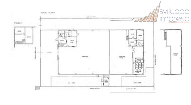
planimetria
Capannone industriale in affitto a Bellusco
€ 5.500,00
al mese
-
locali
4
bagni
1245
mq
Nelle vicinanze di Bellusco, inserito in zona industriale, proponiamo immobile industriale indipendente su quattro lati così composto: capannone piano terra mq. 782, altezza 6,00 metri sotto trave e due portoni per carico e scarico : uffici e servizi su due livelli per un totale di mq. 312, di cui parte sul fronte e parte sul retro; soppalco in muratura di mq. 151 con portata 500 kg/mq. L'area esterna, su quattro lati è di circa mq. 1.000 con doppio cancello carraio. Nell'immobile sono presenti impianto elettrico (da rivedere) e impianto di riscaldamento con caldaia a GPL. Libero subito. AFFITTASI
RIFERIMENTO ANNUNCIO
20522
DATA ANNUNCIO
5 febbraio 2026
DATA ULTIMO AGGIORNAMENTO
5 febbraio 2026
CONTRATTO
Affitto
TIPOLOGIA
Capannone industriale
SUPERFICIE
1245 m²
PIANO
Terra
TIPO PROPRIETA'
Standard
ALTRE CARATTERISTICHE'
riscaldamento autonomo
cucina assente
Costi
€ 5.500,00
al mese
Mappa della zona dell'immobile
Ingrandisci mappa
Segnala un problema
Servizi per te
Inserzionista
Sviluppo Impresa Srl
Vai al sito web
Codice annuncio:
20522
Riferimento immobile:
20522
Mostra numero
Tel: 0224412650
Invia email
Motivo contatto
Appuntamento
Più informazioni
Richiesta di contatto
Più foto e materiali
Nome e cognome*
Email*
Cellulare
Messaggio*
ATTENZIONE ALLE TRUFFE
NON ANTICIPARE MAI denaro su carte ricaricabili, conti correnti esteri, money transfer o altri sistemi di pagamento
Accettazione*
Ho letto, sono maggiorenne e accetto
condizioni
,
privacy
e
Consigli antitruffa
Invia
Chiama
Contatta
Visita
Richiedi visita
Scopri subito quanto vale la tua casa per l'affitto o per la vendita!
Valuta gratis
Altri annunci simili
a
a
a
a
Annunci immobiliari nella stessa zona
Comune di Bellusco:
Affitto Attività/immobili commerciali Bellusco
|
Affitto Capannoni industriali Bellusco
|
Agenzie immobiliari Bellusco
|
Provincia di Milano:
Affitto Attività/immobili commerciali Milano
|
Affitto Capannoni industriali Milano
|
Agenzie immobiliari Milano
|
Email
Password
Ricordami
Registrati adesso
Sei una agenzia?
Password dimenticata?