ioaffitto.it TROVA casa. VIVI SEMPLICE.
Logo
1/3
Immagine 1 di Capannone industriale in affitto  a Capannori
2/3
Immagine 2 di Capannone industriale in affitto  a Capannori
3/3
Immagine 3 di Capannone industriale in affitto  a Capannori
Icona foto3 Foto     Icona planimetrie 0 planimetria

Capannone industriale in affitto a Capannori

€ 4.000,00
al mese
1
locali
-
bagni
1000
mq
F650K - COMUNE DI CAPANNORI – In ottima posizione, proponiamo in affitto un interessante compendio immobiliare risalente agli anni '70, ben conservato e funzionale.
La proprietà è composta da:

Capannone ad uso industriale (categoria D/1), a pianta rettangolare, perfetto anche come magazzino o deposito, costituito da un ampio ambiente open space con servizi igienici, per una superficie complessiva di circa 800 mq - Il capannone ha la copertura a volta e l'altezz ainterna sottotrave è di ml. 5,10.

In aderenza al capannone, con ingresso indipendente, si trova una palazzina su due livelli fuori terra ad uso ufficio (categoria A/10), per una superficie totale di circa 200 mq.
Il capannone è privo di immpianto di riscaldamento - Gli uffici sono invece dotati di riscaldamento e raffreddamento indipendenti -

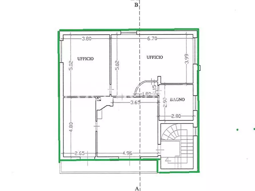
Il tutto è dettagliatamente rappresentato nella planimetria allegata.
La proprietà perimetralmente recintata è dotada di cancello scorrevole elettrico dove un ampio piazzale accessibile da strada a doppio senso di marcia, garantisce facilità di manovra anche ai mezzi pesanti.
Efidicio in classe energetica G - Kwh/mq annuo 246,80 - Uffici classe G -kwh/mq annuo 345, 67

Sono richieste referenze dimostrabili.
Il capannone è subito disponile, gli uffici dal 1 Dicembre 2025
RIFERIMENTO ANNUNCIO
1339990/1299/F650K
DATA ANNUNCIO
29 agosto 2025
DATA ULTIMO AGGIORNAMENTO
31 ottobre 2025
CONTRATTO
Affitto
TIPOLOGIA
Capannone industriale
SUPERFICIE
1000 m²
locali
1
TIPO PROPRIETA'
Standard
ALTRE CARATTERISTICHE'
Costi
€ 4.000,00
al mese
Anno di costruzione
1870
Stato
buono
Classe energetica G 246 kwm2
a+ a b c d e f g
Mappa della zona dell'immobile
Servizi per te
Inserzionista
LuccaCase Agenzia Immobiliare
Sonia Ramiggi

Codice annuncio: 1339990
Riferimento immobile: 1339990/1299/F650K

Invia email
ATTENZIONE ALLE TRUFFE
 
NON ANTICIPARE MAI denaro su carte ricaricabili, conti correnti esteri, money transfer o altri sistemi di pagamento

Scopri subito quanto vale la tua casa per l'affitto o per la vendita!

   

Altri annunci simili

Capannone industriale in affitto in Via Santa Lucia 15 a Lucca
Centro storico a pochi metri da via fillungo affittasi fondo commerciale di mq. 100 in perfette c...
€ 4.000
3
locali
100 ㎡
superficie
1
bagni
Capannone industriale in affitto in marlia a Capannori
Capannone a Marlia in zona di intenso passaggio, libero su quattro lati con laboratorio di circa ...
€ 4.000
4
locali
520 ㎡
superficie
1
bagni
Capannone industriale in affitto in viale europa a Lucca
San Concordio - in zona di forte passaggio fondo commerciale predisposto per ristorazione dispost...
€ 4.000
3
locali
200 ㎡
superficie
3
bagni
Capannone industriale in affitto in Viale G. Puccini a Lucca
S.Anna in ottima zona fondo commerciale posto al piano terreno di mq 420 costituito da vani 11 co...
€ 4.200
11
locali
420 ㎡
superficie
3
bagni
Capannone industriale in affitto a Viareggio
Viareggio - Capannone commerciale ristrutturato in affitto - 6 vani e 1 bagno - 300 mq - disposto...
€ 4.000
6
locali
300 ㎡
superficie
Capannone industriale in affitto in Via Nicola Sacco e Bartolomeo Vanzetti a Collesalvetti
STAGNO ZONA INDUSTRIALE AFFITTASI CAPANNONE DI CIRCA MQ. 1000 CON UFFICI MQ. 60 E PIAZZALE DI C...
€ 4.000
1000 ㎡
superficie
1
bagni