ioaffitto.it TROVA casa. VIVI SEMPLICE.
Logo
Nuovo
1/1
Immagine 1 di Capannone industriale in vendita  in CERVIA a Cervia
Icona foto1 Foto     Icona planimetrie 0 planimetria

Capannone industriale in vendita in CERVIA a Cervia

Non specificato
prezzo di vendita
4
locali
3
bagni
600
mq
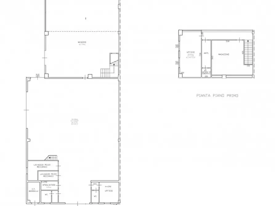
A Cervia adiacenze centro, vendiamo capannone commerciale D8 di 600 mq in complesso artigianale moderno con 2 corti recintate di totali 300 mq e comodo parcheggio.

Si presenta in ottime condizioni, con una porzione predisposta alla vendita e il restante magazzino, con tutti impianti a norma .

per info Roberto 3486440700


SONO SPECIALIZZATO IN IMMOBILI COMMERCIALI
--- capannoni, uffici, negozi ma anche attività attive o inattive ---
Chiamatemi direttamente per sottoporvi panoramica di immobili idonei.

Oppure scrivetemi a info@passeriniimmobiliare.com le seguenti informazioni:
- attività o uso che si intende svolgere
- tipologia di immobile
- mq necessari di interno specificando quanti uffici e altri vani
- mq di esterno se necessari (corte privata o fronte strada di passaggio..)
- zona ideale
- budget massimo disponibile

Vi contatterò quanto prima con una panoramica di proposte
Grazie

Ape D --- annuncio pubblicato con GESTIONALEIMMOBILIARE.it
RIFERIMENTO ANNUNCIO
gestimm-4830069
DATA ANNUNCIO
16 gennaio 2026
DATA ULTIMO AGGIORNAMENTO
16 gennaio 2026
CONTRATTO
Vendita
TIPOLOGIA
Capannone industriale
SUPERFICIE
600 m²
locali
4
PIANO
Non disponibile
TIPO PROPRIETA'
Standard
ALTRE CARATTERISTICHE'
aria condizionata soffitta / mansarda cantina garage riscaldamento autonomo cucina presente cucina abitabile stato di manutenzione ottimo taverna
Costi
Non specificato
prezzo di vendita
Classe energetica D
a+ a b c d e f g
Mappa della zona dell'immobile

Calcola il mutuo

Inserisci i dati mutuo

Rata del mutuo
Al mese
Anticipo
Mutuo
Richiedi consulenza gratuita mutuo

Servizio erogato tramite  

Servizi per te
Inserzionista
Logo PASSERINI IMMOBILIARE
PASSERINI IMMOBILIARE
Gabriele Passerini

Codice annuncio: 4830069

Invia email
ATTENZIONE ALLE TRUFFE
 
NON ANTICIPARE MAI denaro su carte ricaricabili, conti correnti esteri, money transfer o altri sistemi di pagamento

Scopri subito quanto vale la tua casa per l'affitto o per la vendita!

   

Altri annunci simili