ioaffitto.it TROVA casa. VIVI SEMPLICE.
Logo
Nuovo
1/1
Immagine 1 di Capannone industriale in vendita  in via romagna a Cesena
Icona foto1 Foto     Icona planimetrie 0 planimetria

Capannone industriale in vendita in via romagna a Cesena

Non specificato
prezzo di vendita
4
locali
3
bagni
1600
mq
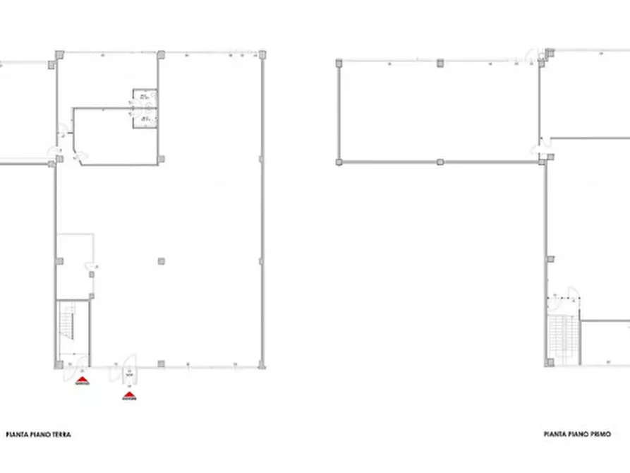
A Cesena zona Sant'Egidio vendiamo capannone di totali circa 1.600 mq commerciali su 2 piani con uffici/servizi su entrambe i piani e 2 corti private di totali 500 mq.

L'immobile si presenta in ottime condizioni con riscaldamento e aria condizionata.

per info Roberto 3486440700


SONO SPECIALIZZATO IN IMMOBILI COMMERCIALI
--- capannoni, uffici, negozi ma anche attività attive o inattive ---
Chiamatemi direttamente per sottoporvi panoramica di immobili idonei.

Oppure scrivetemi a info@passeriniimmobiliare.com le seguenti informazioni:
- attività o uso che si intende svolgere
- tipologia di immobile
- mq necessari di interno specificando quanti uffici e altri vani
- mq di esterno se necessari (corte privata o fronte strada di passaggio..)
- zona ideale
- budget massimo disponibile

Vi contatterò quanto prima con una panoramica di proposte
Grazie

Ape D --- annuncio pubblicato con GESTIONALEIMMOBILIARE.it
RIFERIMENTO ANNUNCIO
gestimm-4693806
DATA ANNUNCIO
8 novembre 2025
DATA ULTIMO AGGIORNAMENTO
8 novembre 2025
CONTRATTO
Vendita
TIPOLOGIA
Capannone industriale
SUPERFICIE
1600 m²
locali
4
PIANO
Non disponibile
TIPO PROPRIETA'
Standard
ALTRE CARATTERISTICHE'
aria condizionata soffitta / mansarda cantina garage riscaldamento autonomo cucina presente cucina abitabile stato di manutenzione ottimo taverna
Costi
Non specificato
prezzo di vendita
Classe energetica D
a+ a b c d e f g
Mappa della zona dell'immobile

Calcola il mutuo

Inserisci i dati mutuo

Rata del mutuo
Al mese
Anticipo
Mutuo
Richiedi consulenza gratuita mutuo

Servizio erogato tramite  

Servizi per te
Inserzionista
Logo PASSERINI IMMOBILIARE
PASSERINI IMMOBILIARE
Gabriele Passerini

Codice annuncio: 4693806

Invia email
ATTENZIONE ALLE TRUFFE
 
NON ANTICIPARE MAI denaro su carte ricaricabili, conti correnti esteri, money transfer o altri sistemi di pagamento

Scopri subito quanto vale la tua casa per l'affitto o per la vendita!

   

Altri annunci simili

Capannone industriale in affitto in via romagna a Cesena
A Cesena zona Sant'Egidio affittiamo capannone di totali circa 1.600 mq commerciali su 2 piani co...
4
locali
1600 ㎡
superficie
3
bagni
Capannone industriale in vendita in VIA ROMAGNA a Cesena
A Cesena zona Sant'Egidio, vendiamo capannone di 1.400 mq di cui uffici e servizi di circa 200 mq...
4
locali
1400 ㎡
superficie
2
bagni
Capannone industriale in vendita in VIA ROMAGNA a Cesena
A Cesena zona Sant'Egidio vendiamo capannone di totali circa 1.280 mq su 2 piani di cui uffici su...
4
locali
1280 ㎡
superficie
3
bagni
Capannone industriale in affitto in via romagna a Cesena
A Cesena zona Sant'Egidio affittiamo capannone di 800 mq accatastato D8 altezza 7,50 mt, di cui u...
4
locali
800 ㎡
superficie
3
bagni
Capannone industriale in vendita a Cesena
CESAENA LATO SUD - Affittasi CAPANNONE di mq 8.000 CON AREA ESTERNA di mq 16.000. LIBERO DA SUBI...
8000 ㎡
superficie
Capannone industriale in vendita a Cesena
CESENA LATO SUD - Affittasi CAPANNONE di mq 8.000 CON AREA ESTERNA di mq 16.000 adatto per logist...
8000 ㎡
superficie