ioaffitto.it TROVA casa. VIVI SEMPLICE.
Nuova ricerca
Pubblica annuncio
Annunci sponsorizzati
Agenzie
Valutazione-immobile
Servizi
Luce Gas Fibra
Mutui
Finanziamenti
Ricerca Internazionale
Servizi web
Servizio partecipazione asta
Pubblica annuncio
Accedi
1/11
2/11
3/11
4/11
5/11
6/11
7/11
8/11
9/11
10/11
11/11
11
Foto
2
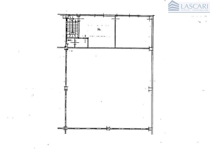
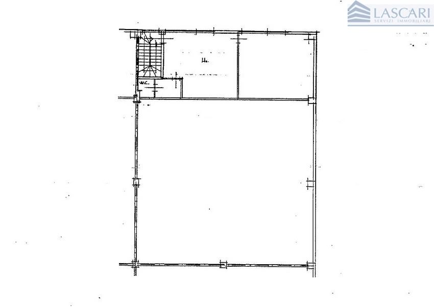
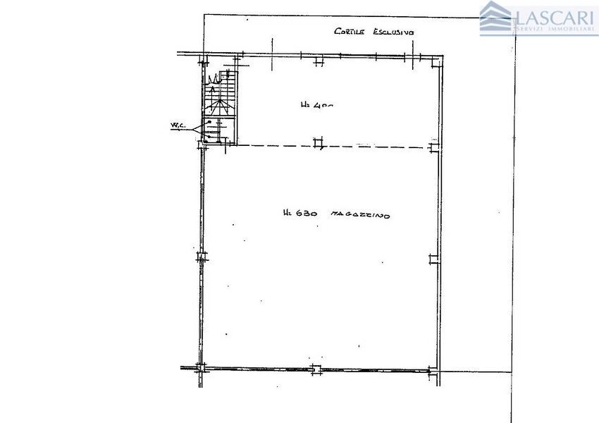
planimetria
Capannone industriale in affitto in Via Orio al Serio 5 a Grassobbio
€ 2.500,00
al mese
-
locali
-
bagni
424
mq
Posizione strategica per la vicinanza all'Aeroporto e per l'ottimo collegamento alla viabilità principale. In contesto artigianale recintato si propone in locazione capannone di complessivi mq. 424 con comodo accesso carrale, altezza utile di mt. 6,30. L'immobile è in buono stato di manutenzione ed è appena stato rifatto il manto di copertura. Superficie capannone mq. 340 è dotato di bagno, impianto elettrico base, impianto di riscaldamento ad aria con moduli robur. Con ingresso indipendente, al piano impalcato, uffici con servizi di mq. 84 dotati di impianto di riscaldamento a metano e impianto di raffrescamento. Area esterna esclusiva di mq. 165.
RIFERIMENTO ANNUNCIO
2661
DATA ANNUNCIO
22 gennaio 2026
DATA ULTIMO AGGIORNAMENTO
22 gennaio 2026
CONTRATTO
Affitto
TIPOLOGIA
Capannone industriale
SUPERFICIE
424 m²
PIANO
Terra
TIPO PROPRIETA'
Standard
ALTRE CARATTERISTICHE'
riscaldamento autonomo
Costi
€ 2.500,00
al mese
Mappa della zona dell'immobile
Ingrandisci mappa
Segnala un problema
Servizi per te
Inserzionista
Lascari Servizi Immobiliari
Vai al sito web
Codice annuncio:
2661
Riferimento immobile:
2661
Mostra numero
Tel: 035 234162
Invia email
Motivo contatto
Appuntamento
Più informazioni
Richiesta di contatto
Più foto e materiali
Nome e cognome*
Email*
Cellulare
Messaggio*
ATTENZIONE ALLE TRUFFE
NON ANTICIPARE MAI denaro su carte ricaricabili, conti correnti esteri, money transfer o altri sistemi di pagamento
Accettazione*
Ho letto, sono maggiorenne e accetto
condizioni
,
privacy
e
Consigli antitruffa
Invia
Chiama
Contatta
Visita
Richiedi visita
Scopri subito quanto vale la tua casa per l'affitto o per la vendita!
Valuta gratis
Altri annunci simili
Capannone industriale in affitto a Bonate Sopra
Bonate Sopra e nella provincia e isola Bergamasca disponiamo di capannoni/laboratori, di varie me...
€ 2.500
600 ㎡
superficie
Capannone industriale in affitto in via giuseppe di vittorio a Inzago
Capannone con uffici in locazione a Inzago (MI) Capannone industriale di mq.500 con uffici Prop...
€ 2.700
500 ㎡
superficie
Capannone industriale in affitto 2 a Galbiate
CAPANNONE in affitto a Galbiate \nRecente complesso artigianale a due passi dalle principali dire...
€ 2.350
1
locali
400 ㎡
superficie
1
bagni
Capannone industriale in affitto 2 a Galbiate
CAPANNONE in affitto a Galbiate \nRecente complesso artigianale a due passi dalle principali dire...
€ 2.350
1
locali
400 ㎡
superficie
1
bagni
Capannone industriale in affitto in Via Fratelli Bandiera 17 a Carugate
Carugate (Mi), Via Fratelli Bandiera, adiacenze Centro Commerciale Carosello/Ikea, proponiamo in ...
€ 2.667
430 ㎡
superficie
1
bagni
Capannone industriale in affitto in Via dell'artgianato a Muggiò
Capannone in locazione a Muggiò Capannone di mq 500 in locazione a Muggiò Proponiamo in locazion...
€ 2.700
500 ㎡
superficie
Annunci immobiliari nella stessa zona
Comune di Grassobbio:
Affitto Attività/immobili commerciali Grassobbio
|
Affitto Capannoni industriali Grassobbio
|
Agenzie immobiliari Grassobbio
|
Provincia di Bergamo:
Affitto Attività/immobili commerciali Bergamo
|
Affitto Capannoni industriali Bergamo
|
Agenzie immobiliari Bergamo
|
Email
Password
Ricordami
Registrati adesso
Sei una agenzia?
Password dimenticata?