ioaffitto.it TROVA casa. VIVI SEMPLICE.
Nuova ricerca
Pubblica annuncio
Annunci sponsorizzati
Agenzie
Valutazione-immobile
Servizi
Luce Gas Fibra
Mutui
Finanziamenti
Ricerca Internazionale
Servizi web
Servizio partecipazione asta
Pubblica annuncio
Accedi
1/10
2/10
3/10
4/10
5/10
6/10
7/10
8/10
9/10
10/10
10
Foto
1
planimetria
Capannone industriale in affitto in via delle Industrie 9 a Mezzago
€ 24.166,00
al mese
-
locali
8
bagni
3963
mq
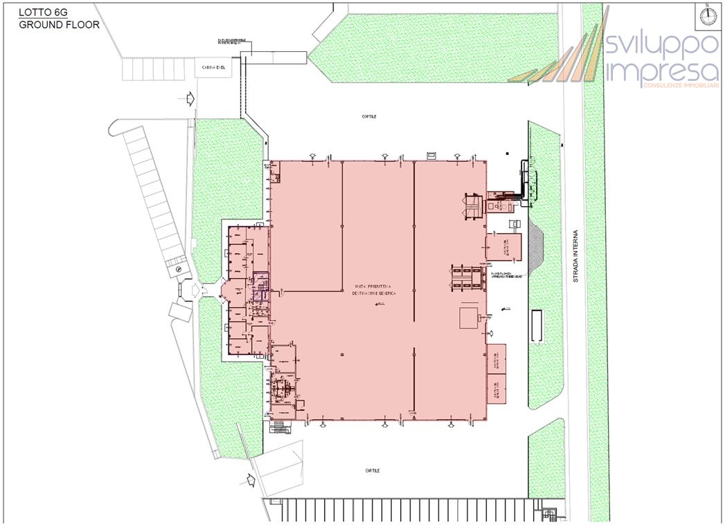
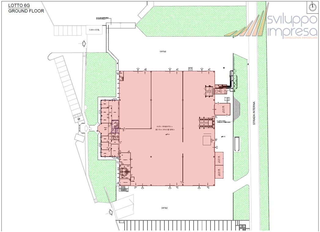
Mezzago (MB) - A ridosso della SP Monza-Trezzo, proponiamo immobile industriale indipendente così composto: capannone con spogliatoi e servizi per mq. 3.193, altezza 7,50 metri, dotato di 7 portoni a terra per facilitare carico e scarico; palazzina uffici e servizi su due livelli per mq. 770 totali, suddivisa in locali di diversa metratura. L'immobile è dotato di impianto elettrico completo ed impianto di riscaldamento e condizionamento oltre ad ascensore negli uffici. Completa la proposta un'area esterna di mq. 6.000 circa suddivisa tra fronte e retro oltre ad ampia aree verdi. L'immobile è di sicura rappresentanza ed è libero subito. AFFITTASI
RIFERIMENTO ANNUNCIO
5401
DATA ANNUNCIO
30 settembre 2025
DATA ULTIMO AGGIORNAMENTO
30 settembre 2025
CONTRATTO
Affitto
TIPOLOGIA
Capannone industriale
SUPERFICIE
3963 m²
PIANO
Terra
TIPO PROPRIETA'
Standard
ALTRE CARATTERISTICHE'
balcone disponibile
giardino comunale
riscaldamento autonomo
cucina assente
terrazzo disponibile
Costi
€ 24.166,00
al mese
Mappa della zona dell'immobile
Ingrandisci mappa
Segnala un problema
Servizi per te
Inserzionista
Sviluppo Impresa Srl
Vai al sito web
Codice annuncio:
5401
Riferimento immobile:
5401
Mostra numero
Tel: 0224412650
Invia email
Motivo contatto
Appuntamento
Più informazioni
Richiesta di contatto
Più foto e materiali
Nome e cognome*
Email*
Cellulare
Messaggio*
ATTENZIONE ALLE TRUFFE
NON ANTICIPARE MAI denaro su carte ricaricabili, conti correnti esteri, money transfer o altri sistemi di pagamento
Accettazione*
Ho letto, sono maggiorenne e accetto
condizioni
,
privacy
e
Consigli antitruffa
Invia
Chiama
Contatta
Visita
Richiedi visita
Scopri subito quanto vale la tua casa per l'affitto o per la vendita!
Valuta gratis
Altri annunci simili
a
Annunci immobiliari nella stessa zona
Comune di Mezzago:
Affitto Attività/immobili commerciali Mezzago
|
Affitto Capannoni industriali Mezzago
|
Agenzie immobiliari Mezzago
|
Provincia di Milano:
Affitto Attività/immobili commerciali Milano
|
Affitto Capannoni industriali Milano
|
Agenzie immobiliari Milano
|
Email
Password
Ricordami
Registrati adesso
Sei una agenzia?
Password dimenticata?