ioaffitto.it TROVA casa. VIVI SEMPLICE.
Nuova ricerca
Pubblica annuncio
Annunci sponsorizzati
Agenzie
Valutazione-immobile
Servizi
Luce Gas Fibra
Mutui
Finanziamenti
Ricerca Internazionale
Servizi web
Servizio partecipazione asta
Pubblica annuncio
Accedi
1/10
2/10
3/10
4/10
5/10
6/10
7/10
8/10
9/10
10/10
10
Foto
1
planimetria
Capannone industriale in affitto in Via Grazia Deledda snc a Pioltello
---
Prezzo riservato
-
locali
2
bagni
550
mq
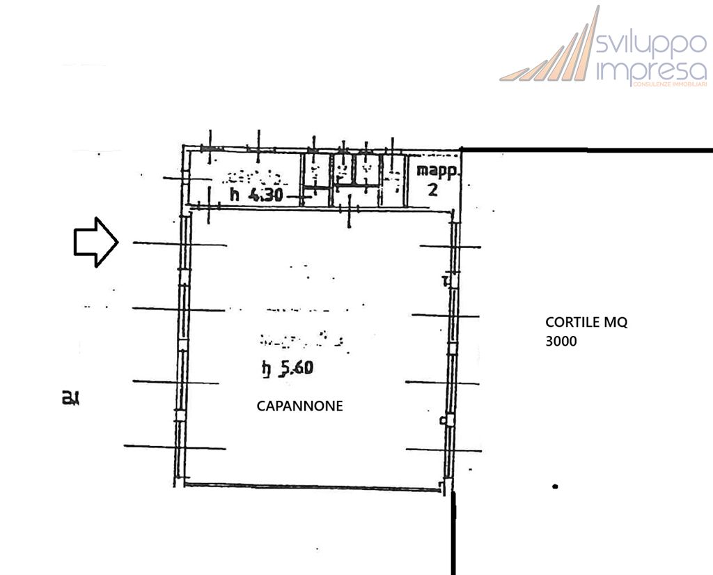
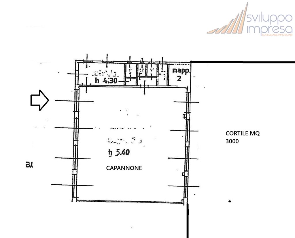
Pioltello (Mi), adiacenze Rivoltana, proponiamo in locazione capannone di circa 550 mq complessivi. L’immobile è composto da due locali ad uso ufficio, tre servizi igienici e area produttiva ben distribuita. con altezza di 5.5 mt sotto catena. A completamento della proprietà è presente un cortile privato di circa 3.000 mq, che assicura ampi spazi di manovra e parcheggio anche per mezzi pesanti. Le caratteristiche strutturali e la disposizione degli spazi rendono l’immobile particolarmente adatto ad attività che prevedono una forte movimentazione di mezzi pesanti e necessitano di aree esterne funzionali. Libero subito. AFFITTASI.
RIFERIMENTO ANNUNCIO
20243
DATA ANNUNCIO
6 ottobre 2025
DATA ULTIMO AGGIORNAMENTO
6 ottobre 2025
CONTRATTO
Affitto
TIPOLOGIA
Capannone industriale
SUPERFICIE
550 m²
PIANO
Terra
TIPO PROPRIETA'
Standard
ALTRE CARATTERISTICHE'
balcone disponibile
giardino comunale
riscaldamento assente
cucina assente
posto auto non presente
trattativa riservata
terrazzo disponibile
Costi
---
Prezzo riservato
Mappa della zona dell'immobile
Ingrandisci mappa
Segnala un problema
Servizi per te
Inserzionista
Sviluppo Impresa Srl
Vai al sito web
Codice annuncio:
20243
Riferimento immobile:
20243
Mostra numero
Tel: 0224412650
Invia email
Motivo contatto
Appuntamento
Più informazioni
Richiesta di contatto
Più foto e materiali
Nome e cognome*
Email*
Cellulare
Messaggio*
ATTENZIONE ALLE TRUFFE
NON ANTICIPARE MAI denaro su carte ricaricabili, conti correnti esteri, money transfer o altri sistemi di pagamento
Accettazione*
Ho letto, sono maggiorenne e accetto
condizioni
,
privacy
e
Consigli antitruffa
Invia
Chiama
Contatta
Visita
Richiedi visita
Scopri subito quanto vale la tua casa per l'affitto o per la vendita!
Valuta gratis
Altri annunci simili
a
a
a
a
a
a
Annunci immobiliari nella stessa zona
Comune di Pioltello:
Affitto Attività/immobili commerciali Pioltello
|
Affitto Capannoni industriali Pioltello
|
Agenzie immobiliari Pioltello
|
Provincia di Milano:
Affitto Attività/immobili commerciali Milano
|
Affitto Capannoni industriali Milano
|
Agenzie immobiliari Milano
|
Email
Password
Ricordami
Registrati adesso
Sei una agenzia?
Password dimenticata?