ioaffitto.it TROVA casa. VIVI SEMPLICE.
Nuova ricerca
Pubblica annuncio
Annunci sponsorizzati
Agenzie
Valutazione-immobile
Servizi
Luce Gas Fibra
Mutui
Finanziamenti
Ricerca Internazionale
Servizi web
Servizio partecipazione asta
Pubblica annuncio
Accedi
1/11
2/11
3/11
4/11
5/11
6/11
7/11
8/11
9/11
10/11
11/11
11
Foto
2
planimetria
Capannone industriale in affitto in Via Elorina snc a Siracusa
€ 3.000,00
al mese
5
locali
2
bagni
511
mq
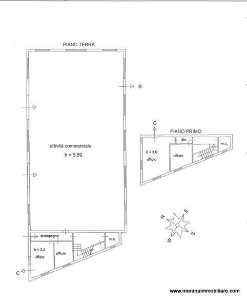
CAPANNONE IN LOCAZIONE
In affitto in Via Elorina, vi proponiamo un capannone su due livelli.
L'immobile si sviluppa al piano terra ed ha una superficie di mq. 510, con un'altezza di mt. 5,69. I tetti si presenano in perfetto stato, con travi in legno a vista, garantendo un ottimo isolamento termico.
Si presenta come un unico ambiente senza pilastri, dove troviamo anche due vani con servizio. Al primo piano, ci sono altri 55 mq., distribuiti in due vani e servizio.
Dotatto di comode entrate, per consentire l'accesso di operazioni di carico e di scarico. E altresì dotato di impianto di allarme e videosorveglianza di ultima generazione.
A completamento della proprietà, troviamo un'area esclusiva di 2.500 mq. L'immobile è collegato alle principali arterie stradali ed è facilmente accessibile.
Euro 3.000 MENSILI. Cod. Rif. AF80375
RIFERIMENTO ANNUNCIO
AF80375
DATA ANNUNCIO
25 novembre 2025
DATA ULTIMO AGGIORNAMENTO
25 novembre 2025
CONTRATTO
Affitto
TIPOLOGIA
Capannone industriale
SUPERFICIE
511 m²
locali
5
TOTALE PIANI EDIFICIO
1
TIPO PROPRIETA'
Standard
ALTRE CARATTERISTICHE'
accesso per disabili
arredata
giardino terreno
riscaldamento assente
cucina assente
impianto di antincendio
Costi
€ 3.000,00
al mese
Stato
Eccellenti
Classe energetica
F
a+
a
b
c
d
e
f
g
Mappa della zona dell'immobile
Ingrandisci mappa
Segnala un problema
Servizi per te
Inserzionista
Morana immobiliare
Vai al sito web
Codice annuncio:
8057
Riferimento immobile:
AF80375
Mostra numero
Tel: 093161076
Invia email
Motivo contatto
Appuntamento
Più informazioni
Richiesta di contatto
Più foto e materiali
Nome e cognome*
Email*
Cellulare
Messaggio*
ATTENZIONE ALLE TRUFFE
NON ANTICIPARE MAI denaro su carte ricaricabili, conti correnti esteri, money transfer o altri sistemi di pagamento
Accettazione*
Ho letto, sono maggiorenne e accetto
condizioni
,
privacy
e
Consigli antitruffa
Invia
Chiama
Contatta
Visita
Richiedi visita
Scopri subito quanto vale la tua casa per l'affitto o per la vendita!
Valuta gratis
Altri annunci simili
a
Annunci immobiliari nella stessa zona
Comune di Siracusa:
Affitto Attività/immobili commerciali Siracusa
|
Affitto Capannoni industriali Siracusa
|
Agenzie immobiliari Siracusa
|
Provincia di Siracusa:
Affitto Attività/immobili commerciali Siracusa
|
Affitto Capannoni industriali Siracusa
|
Agenzie immobiliari Siracusa
|
Email
Password
Ricordami
Registrati adesso
Sei una agenzia?
Password dimenticata?