ioaffitto.it TROVA casa. VIVI SEMPLICE.
Nuova ricerca
Pubblica annuncio
Annunci sponsorizzati
Agenzie
Valutazione-immobile
Servizi
Luce Gas Fibra
Mutui
Finanziamenti
Ricerca Internazionale
Servizi web
Pubblica annuncio
Accedi
Nuovo
1/10
2/10
3/10
4/10
5/10
6/10
7/10
8/10
9/10
10/10
10
Foto
0
planimetria
Capannone industriale in affitto in via della Tecnica a Velo D'astico
€ 10.500,00
al mese
-
locali
-
bagni
2000
mq
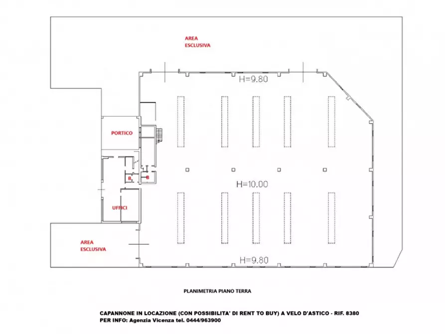
VELO D'ASTICO: CAPANNONE INDUSTRIALE DI 2000 IN AFFITTO - RIF. 8380
AMPIA AREA DI MANOVRA - DUE CARROPONTI
Proponiamo in affitto con possibilità di RENT TO BUY un moderno capannone industriale di circa 2000 mq situato nel comune di Velo d'Astico, punto strategico tra le province di Vicenza e Trento.
L'immobile si trova in una zona produttiva ben servita e facilmente accessibile anche da mezzi pesanti, ideale per attività industriali o logistiche grazie agli ampi spazi esterni asfaltati che facilitano la movimentazione delle merci.
La struttura è moderna ed elegante, con facciate curate e aree verdi circostanti che valorizzano ulteriormente l’immagine aziendale. Il capannone dispone di grandi portoni carrai adatti all’ingresso dei camion, oltre a numerosi parcheggi privati. Gli uffici interni sono luminosi e spaziosi, dotati di pavimentazione nuova effetto marmo/granito e impianto illuminotecnico recente; gli ambienti open space consentono massima flessibilità nella gestione degli spazi amministrativi o tecnici.
L’area operativa del magazzino ha altezza di 9,90 mt, luminosa grazie alle finestre verticali continue lungo i lati dell’edificio ed equipaggiata con 2 carroponti da 20 e 30 Ton, perfetto per chi necessita soluzioni pronte all’uso nell’ambito della produzione o dello stoccaggio materiali ingombranti.
Contattaci per maggiori informazioni e per prenotare un sopralluogo:
Referente: Marco cell. 3479546399.
AGENZIA VICENZA Sede di Andrea Marchetti
via Legione Antonini, 146 Vicenza - 0444/963900
www.agenziavicenza.it - marchetti@agenziavicenza.it
Aderente alla Borsa Immobiliare della C.C.I.A.A. di Vicenza --- annuncio pubblicato con GESTIONALEIMMOBILIARE.it
RIFERIMENTO ANNUNCIO
gestimm-4984812
DATA ANNUNCIO
21 aprile 2026
DATA ULTIMO AGGIORNAMENTO
21 aprile 2026
CONTRATTO
Affitto
TIPOLOGIA
Capannone industriale
SUPERFICIE
2000 m²
TIPO PROPRIETA'
Standard
ALTRE CARATTERISTICHE'
aria condizionata
soffitta / mansarda
cantina
impianto elettrico presente e a norma
garage
riscaldamento autonomo
cucina presente
cucina abitabile
stato di manutenzione ottimo
antifurto
taverna
Costi
€ 10.500,00
al mese
Anno di costruzione
2000
Classe energetica
G
469.75 kWh/m3anno
a+
a
b
c
d
e
f
g
Mappa della zona dell'immobile
Ingrandisci mappa
Segnala un problema
Servizi per te
Inserzionista
AGENZIA VICENZA sas di Marchetti Andrea
Andrea Marchetti
Vai al sito web
Codice annuncio:
4984812
Mostra numero
Tel: 0444963900
Invia email
Motivo contatto
Appuntamento
Più informazioni
Richiesta di contatto
Più foto e materiali
Nome e cognome*
Email*
Cellulare
Messaggio*
ATTENZIONE ALLE TRUFFE
NON ANTICIPARE MAI denaro su carte ricaricabili, conti correnti esteri, money transfer o altri sistemi di pagamento
Accettazione*
Ho letto, sono maggiorenne e accetto
condizioni
,
privacy
e
Consigli antitruffa
Invia
Chiama
Contatta
Visita
Richiedi visita
Scopri subito quanto vale la tua casa per l'affitto o per la vendita!
Valuta gratis
Altri annunci simili
a
a
Annunci immobiliari nella stessa zona
Comune di Velo D'astico:
Affitto Attività/immobili commerciali Velo D'astico
|
Affitto Capannoni industriali Velo D'astico
|
Agenzie immobiliari Velo D'astico
|
Provincia di Vicenza:
Affitto Attività/immobili commerciali Vicenza
|
Affitto Capannoni industriali Vicenza
|
Agenzie immobiliari Vicenza
|
Email
Password
Ricordami
Registrati adesso
Sei una agenzia?
Password dimenticata?