ioaffitto.it TROVA casa. VIVI SEMPLICE.
Logo
1/5
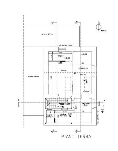
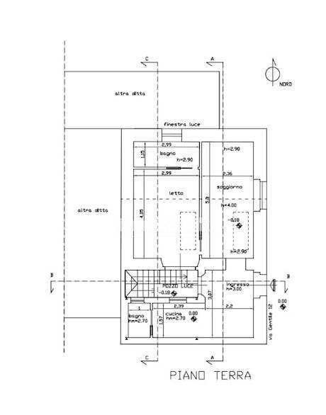
Immagine 1 di Casa indipendente in vendita  in Via Gentile a Giarre
2/5
Immagine 2 di Casa indipendente in vendita  in Via Gentile a Giarre
3/5
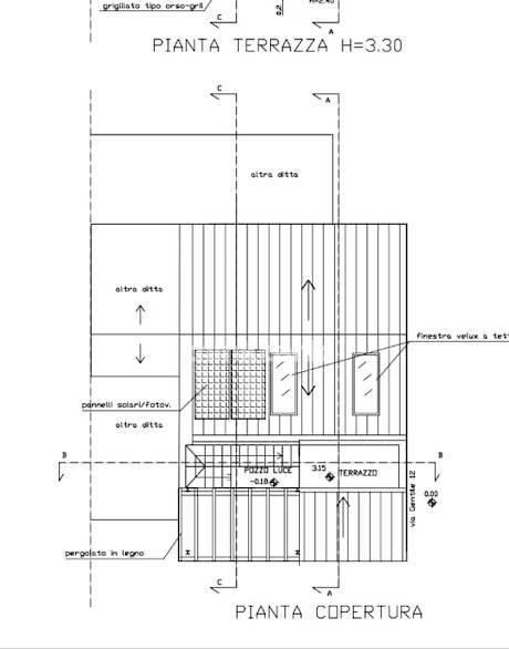
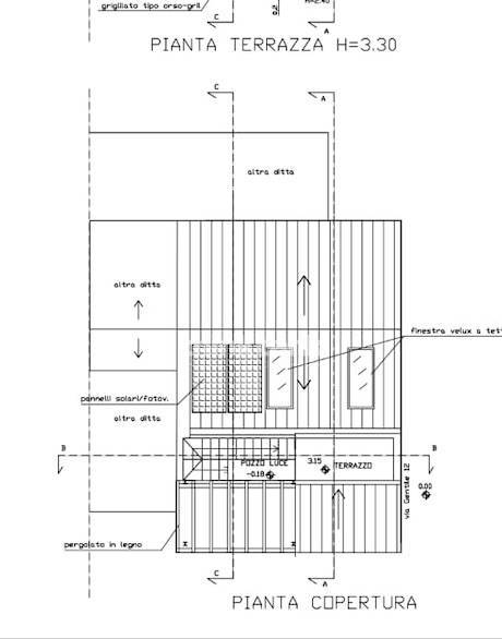
Immagine 3 di Casa indipendente in vendita  in Via Gentile a Giarre
4/5
Immagine 4 di Casa indipendente in vendita  in Via Gentile a Giarre
5/5
Immagine 5 di Casa indipendente in vendita  in Via Gentile a Giarre
Icona foto5 Foto     Icona planimetrie 3 planimetria

Casa indipendente in vendita in Via Gentile a Giarre

€ 39.000,00
prezzo di vendita
4
locali
2
bagni
60
mq
Casa singola con progetto approvato – Centro di Giarre

Nel cuore del centro di Giarre proponiamo in vendita una casa singola che rappresenta una vera occasione di investimento. L’immobile, attualmente da ristrutturare, viene venduto con un progetto già approvato che ne valorizza appieno le potenzialità, permettendo al futuro proprietario di dare nuova vita a questa dimora.

La posizione centrale garantisce la massima comodità ai servizi e alle attività commerciali, rendendo questa soluzione ideale sia come abitazione principale, sia come investimento da destinare al mercato residenziale o turistico.

Un’opportunità unica per chi desidera personalizzare la propria casa in città, con il vantaggio di avere già tutte le autorizzazioni pronte per iniziare i lavori.
RIFERIMENTO ANNUNCIO
TTR101-1623
DATA ANNUNCIO
7 settembre 2025
DATA ULTIMO AGGIORNAMENTO
7 settembre 2025
CONTRATTO
Vendita
TIPOLOGIA
Casa indipendente
SUPERFICIE
60 m²
locali
4
TOTALE PIANI EDIFICIO
2
TIPO PROPRIETA'
Standard
ALTRE CARATTERISTICHE'
balcone disponibile giardino privato riscaldamento assente cucina assente
Costi
€ 39.000,00
prezzo di vendita
Anno di costruzione
1940
Stato
Necessita ristrutturazione
Mappa della zona dell'immobile

Calcola il mutuo

Inserisci i dati mutuo

Rata del mutuo
Al mese
Anticipo
Mutuo
Richiedi consulenza gratuita mutuo

Servizio erogato tramite  

Servizi per te
Inserzionista
Logo Think Tank Realtor
Think Tank Realtor

Codice annuncio: 7861
Riferimento immobile: TTR101-1623

Invia email
ATTENZIONE ALLE TRUFFE
 
NON ANTICIPARE MAI denaro su carte ricaricabili, conti correnti esteri, money transfer o altri sistemi di pagamento

Scopri subito quanto vale la tua casa per l'affitto o per la vendita!

   

Altri annunci simili

Casa indipendente in vendita in Via Ruggero I 191 a Giarre
Casa indipendente da ristrutturare in vendita a Giarre – Santa Maria La StradaIn zona Santa Maria...
€ 55.000
4
locali
100 ㎡
superficie
1
bagni
Casa indipendente in vendita in via dei paoli 55 a Giarre
In vendita a Giarre, (S. Giovanni Montebello) proponiamo casa indipendente di 70 metri quadrati c...
€ 24.000
3
locali
70 ㎡
superficie
1
bagni
Casa indipendente in vendita in Via Piedimonte a Mascali
Nel territorio del Comune di Mascali, in zona Santa Venera, esattamente in via Piedimonte, l'Agen...
€ 35.000
3
locali
60 ㎡
superficie
1
bagni
Casa indipendente in vendita in Via Piedimonte a Mascali
Nel territorio del Comune di Mascali, in zona Santa Venera, esattamente in via Piedimonte, l'Agen...
€ 35.000
3
locali
60 ㎡
superficie
1
bagni
Casa indipendente in vendita in via domenico nicolosi snc a Mascali
A Mascali, si trova questo affascinante rustico panoramico su due livelli, perfetto per chi desid...
€ 59.000
1
locali
80 ㎡
superficie
1
bagni
Casa indipendente in vendita in via Lapide Nuova a Calatabiano
CREACASA GROUP propone in vendita a Pasteria frazione di Calatabiano, più precisamente in via Lap...
€ 28.000
5
locali
180 ㎡
superficie
1
bagni