ioaffitto.it TROVA casa. VIVI SEMPLICE.
Logo
1/5
Immagine 1 di Casa indipendente in vendita  in Via Montanara e Curtatone a Mantova
2/5
Immagine 2 di Casa indipendente in vendita  in Via Montanara e Curtatone a Mantova
3/5
Immagine 3 di Casa indipendente in vendita  in Via Montanara e Curtatone a Mantova
4/5
Immagine 4 di Casa indipendente in vendita  in Via Montanara e Curtatone a Mantova
5/5
Immagine 5 di Casa indipendente in vendita  in Via Montanara e Curtatone a Mantova
Icona foto5 Foto     Icona planimetrie 2 planimetria

Casa indipendente in vendita in Via Montanara e Curtatone a Mantova

€ 600.000,00
prezzo di vendita
4
locali
3
bagni
300
mq
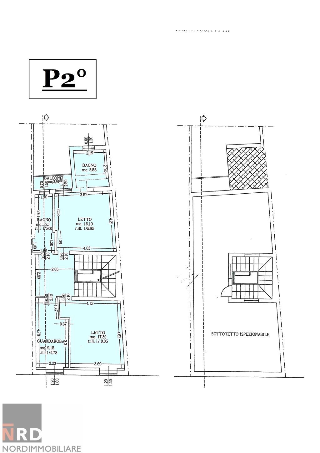
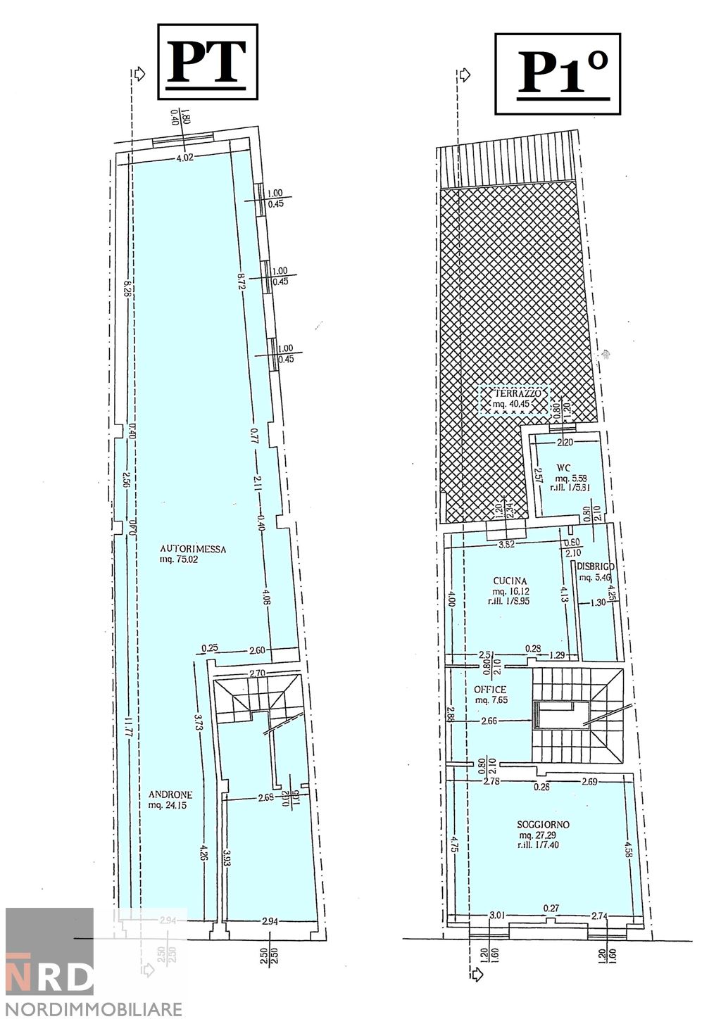
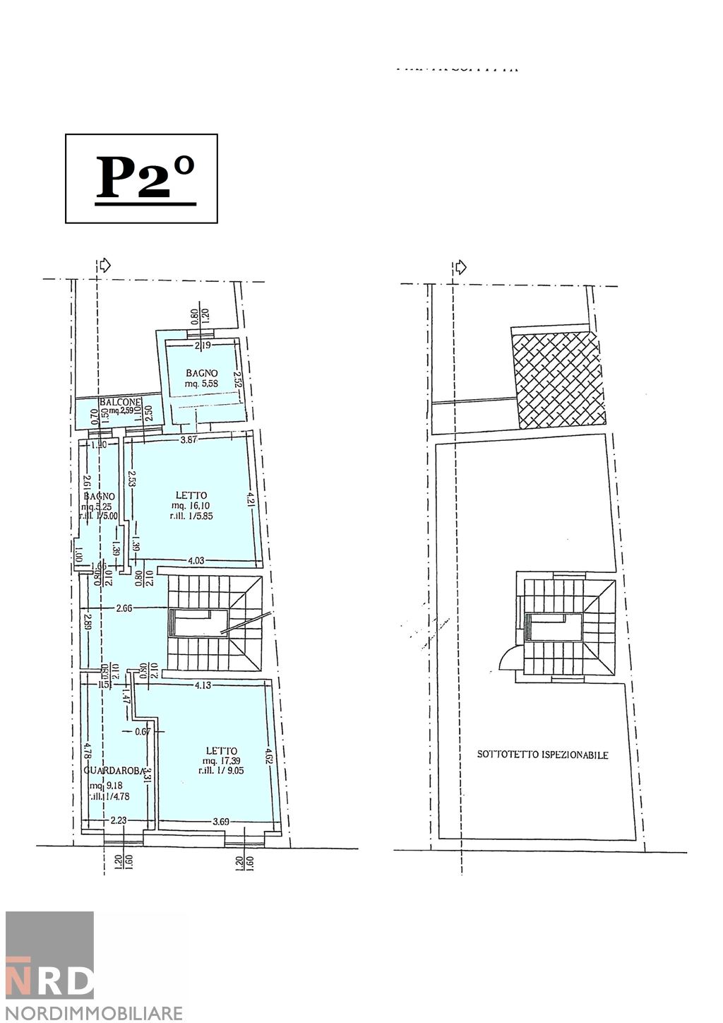
Rif 7025 Ad. Pradella: in posizione centralissima, proponiamo in vendita l'esclusiva casa mantovana di 300 mq. Di nuova costruzione, la proprietà si compone di TRE piani abitativi e n. 5 garage. Entrando dall'accesso carraio su strada la scala interna porta al PIANO PRIMO dove risiede la zona giorno composta dal soggiorno/living, dalla cucina abitabile con l'esclusivo terrazzo, dal ripostiglio e dalla lavanderia.
Salendo al PIANO SECONDO si arriva alla zona notte composta di due camere da letto matrimoniali di cui una con bagno en suite, una camera singola ed un secondo bagno con doccia. Salendo al PIANO TERZO mansardato troviamo un ulteriore ambiente open multifunzionale. L'abitazione presenta finiture sobrie, ambienti spaziosi e luminosi.
Per Informazioni/ appuntamenti SCRIVETECI ad, lasciateci il vostro Recapito telefonico vi ricontatteremo noi quanto prima per organizzarvi una Visita. NORDIMMOBILIARE MANTOVA sas C. so Vittorio Emanuele 33- 46100 Mantova - Tel: I Nostri Uffici sono aperti ad Lun - Ven 9/12 - 15/19.
RIFERIMENTO ANNUNCIO
7025
DATA ANNUNCIO
21 dicembre 2023
DATA ULTIMO AGGIORNAMENTO
21 dicembre 2023
CONTRATTO
Vendita
TIPOLOGIA
Casa indipendente
SUPERFICIE
300 m²
locali
4
PIANO
Intero edificio
TIPO PROPRIETA'
Standard
ALTRE CARATTERISTICHE'
balcone disponibile quadruplo garage giardino comunale riscaldamento autonomo cucina abitabile
Costi
€ 600.000,00
prezzo di vendita
Mappa della zona dell'immobile

Calcola il mutuo

Inserisci i dati mutuo

Rata del mutuo
Al mese
Anticipo
Mutuo
Richiedi consulenza gratuita mutuo

Servizio erogato tramite  

Servizi per te
Inserzionista
Nordimmobiliare Mantova Sas

Codice annuncio: 7025
Riferimento immobile: 7025

Invia email
ATTENZIONE ALLE TRUFFE
 
NON ANTICIPARE MAI denaro su carte ricaricabili, conti correnti esteri, money transfer o altri sistemi di pagamento

Scopri subito quanto vale la tua casa per l'affitto o per la vendita!

   

Altri annunci simili

Casa indipendente in vendita in Via R. Jozzino a Caldiero
Nella splendida zona delle Bambare di Caldiero, il nostro ufficio propone villa indipendente sui ...
€ 590.000
5
locali
230 ㎡
superficie
2
bagni
Casa indipendente in vendita in Via Bacchi a Brescello
Proponiamo in vendita splendida soluzione disposta su due piani ideale per chi cerca un ambiente ...
€ 598.000
8
locali
310 ㎡
superficie
4
bagni
Casa indipendente in vendita in Via Garibaldi a Calvagese Della Riviera
Soluzione abitativa totalmente indipendente in zona residenziale e tranquilla, la villa è stata o...
€ 595.000
202 ㎡
superficie
Casa indipendente in vendita a Lonigo
Situata nel prestigioso comune di Lonigo, nella zona centrale del paese, questa elegante e spazio...
€ 580.000
7
locali
543 ㎡
superficie
3
bagni
Casa indipendente in vendita in Via Bucci a Parma
"Ensemble Immobiliare Srl" propone in vendita generoso terratetto completamente indipendente, dot...
€ 580.000
7
locali
346 ㎡
superficie
4
bagni
Casa indipendente in vendita in Strada Imbriani, 60 a Parma
Via Costituente, vendesi elegante e luminosa casa semi-indipendente su due piani di circa 150 mq,...
€ 580.000
4
locali
150 ㎡
superficie
2
bagni