ioaffitto.it TROVA casa. VIVI SEMPLICE.
Nuova ricerca
Pubblica annuncio
Annunci sponsorizzati
Agenzie
Valutazione-immobile
Servizi
Luce Gas Fibra
Mutui
Finanziamenti
Ricerca Internazionale
Servizi web
Pubblica annuncio
Accedi
1/4
2/4
3/4
4/4
4
Foto
0
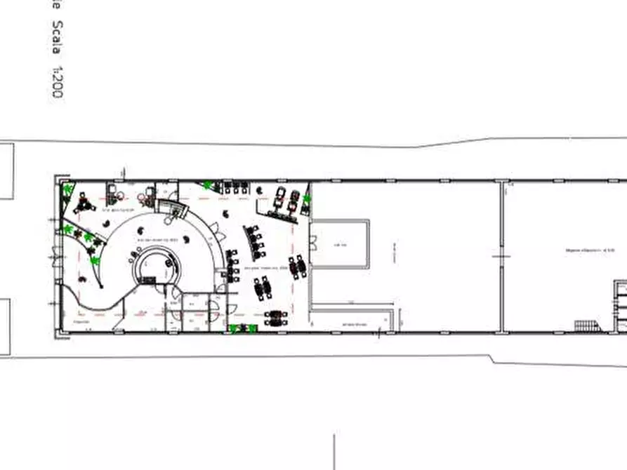
planimetria
Locale commerciale in affitto a Porcari
€ 4.500,00
al mese
3
locali
-
bagni
800
mq
In ottimo contesto di visibilità, proponiamo in affitto questo immobile, All'interno attualmente è diviso da pareti ed impostato a sala scommesse, doppio ingresso, uno da strada principale ed uno da strada interna.
800m2. OTTIMO PER ATTIVITA' DI VENDITA AL DETTAGLIO O INGROSSO.
Per richiedere ulteriori informazioni o concordare una visita chiamateci al numero 3490590631 o inviate una email a info@immobiliareilcastellaccio.it
PROPOSTA CON INCARICO DI MEDIAZIONE FORMALMENTE ASSEGNATO ALL’AGENZIA.
RIFERIMENTO ANNUNCIO
1241118/1715/EK-100930739
DATA ANNUNCIO
5 febbraio 2024
DATA ULTIMO AGGIORNAMENTO
6 febbraio 2024
CONTRATTO
Affitto
TIPOLOGIA
Locale commerciale
SUPERFICIE
800 m²
locali
3
PIANO
nd° piano
TIPO PROPRIETA'
Standard
ALTRE CARATTERISTICHE'
ascensore
Costi
€ 4.500,00
al mese
Anno di costruzione
2000
Stato
ottimo
Classe energetica
G
175 kwm2
a+
a
b
c
d
e
f
g
Mappa della zona dell'immobile
Ingrandisci mappa
Segnala un problema
Servizi per te
Richiedi visita
Scopri subito quanto vale la tua casa per l'affitto o per la vendita!
Valuta gratis
Altri annunci simili
a
Locale commerciale in affitto a Pisa
Prestigioso fondo commerciale in zona di forte passaggio pedonale e veicolare , l'immobile si svi...
€ 4.500
8
locali
200 ㎡
superficie
Locale commerciale in affitto a Pisa
SANT'ANTONIO: In posizione di forte passaggio pedonale e carrabile, fondo di 200 mq su due livell...
€ 4.500
5
locali
200 ㎡
superficie
Locale commerciale in affitto a Pisa
Locale comm.le/Fondo di 305.5 mq - Ideale per attività di UFFICI e ATTIVITA' COMMERCIALI. Classe ...
€ 4.300
3
locali
306 ㎡
superficie
Locale commerciale in affitto a Empoli
EMPOLI SU PIAZZA PRINCIPALE, fondo di circa 300 metri quadri con ampie vetrine e possibilità di f...
€ 4.500
5
locali
300 ㎡
superficie
Annunci immobiliari nella stessa zona
Comune di Porcari:
Affitto Attività/immobili commerciali Porcari
|
Affitto Locali commerciali Porcari
|
Agenzie immobiliari Porcari
|
Provincia di Lucca:
Affitto Attività/immobili commerciali Lucca
|
Affitto Locali commerciali Lucca
|
Agenzie immobiliari Lucca
|
Email
Password
Ricordami
Registrati adesso
Sei una agenzia?
Password dimenticata?