ioaffitto.it TROVA casa. VIVI SEMPLICE.
Logo
1/1
Immagine 1 di Attività artigianale in affitto  a Capannori
Icona foto1 Foto     Icona planimetrie 0 planimetria

Attività artigianale in affitto a Capannori

€ 2.500,00
al mese
1
locali
-
bagni
500
mq
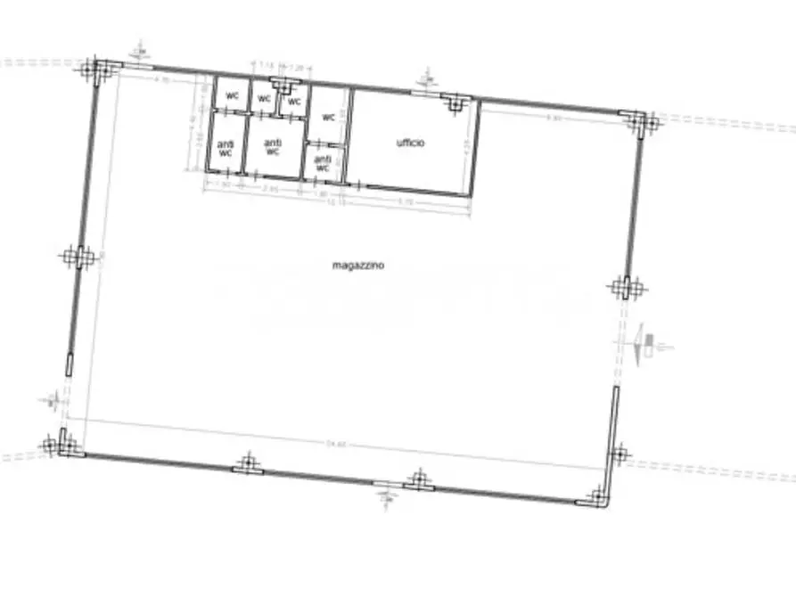
F420K - COMUNE DI CAPANNORI zona sud - In complesso commerciale con accesso indipendente proponiamo in affitto capannone attualmente ad artigianale ( ma ideale anche per farne un uos magazzino /deposito) allo stato grezzo avanzato ma già dotato di impianto elettrico di base , l'immobile a pianta quadrata misura 500 mq è composto da unico vano open space con portellone elettrico e secondo accesso tramite porta per entrare a piedi , antibagno, quattro servizi igienici, vano uso ufficio e la possibilità data la conformazione dell’immobile di poterne realizzare un altro.
L'altezza interna sotto trave è di mt 5.00 - La porzione di callare che lo divide da un’altra unità immobiliare, è idonea ad uso di parcheggio, sosta per il carico e lo scarico dei mezzi anche pesanti è da considerarsi pertinenza esclusiva - Non è presente l'impianto di risaldamento – Ape in fase di rilascio.

La struttura è stata realizzata in cemento armato.
Attualmente l'ape è esente perché trattasi da immobile da completare -
Sono richieste referenze documentabili - Al canone va aggiunta l'iva - E' visionabile dal 1 agosto 2025 - Consegna prevista ottobre 2025.
RIFERIMENTO ANNUNCIO
1276572/1299/F420K
DATA ANNUNCIO
8 luglio 2024
DATA ULTIMO AGGIORNAMENTO
2 novembre 2025
CONTRATTO
Affitto
TIPOLOGIA
Attività artigianale
SUPERFICIE
500 m²
locali
1
TIPO PROPRIETA'
Standard
ALTRE CARATTERISTICHE'
Costi
€ 2.500,00
al mese
Stato
nuovo/in costruzione
Classe energetica F 150 kwm2
a+ a b c d e f g
Mappa della zona dell'immobile
Servizi per te
Inserzionista
LuccaCase Agenzia Immobiliare
Sonia Ramiggi

Codice annuncio: 1276572
Riferimento immobile: 1276572/1299/F420K

Invia email
ATTENZIONE ALLE TRUFFE
 
NON ANTICIPARE MAI denaro su carte ricaricabili, conti correnti esteri, money transfer o altri sistemi di pagamento

Scopri subito quanto vale la tua casa per l'affitto o per la vendita!

   

Altri annunci simili