ioaffitto.it TROVA casa. VIVI SEMPLICE.
Logo
1/5
Immagine 1 di Villa in vendita  a Fosdinovo
2/5
Immagine 2 di Villa in vendita  a Fosdinovo
3/5
Immagine 3 di Villa in vendita  a Fosdinovo
4/5
Immagine 4 di Villa in vendita  a Fosdinovo
5/5
Immagine 5 di Villa in vendita  a Fosdinovo
Icona foto5 Foto     Icona planimetrie 0 planimetria

Villa in vendita a Fosdinovo

€ 178.000,00
prezzo di vendita
4
locali
2
bagni
105
mq
Fosdinovo
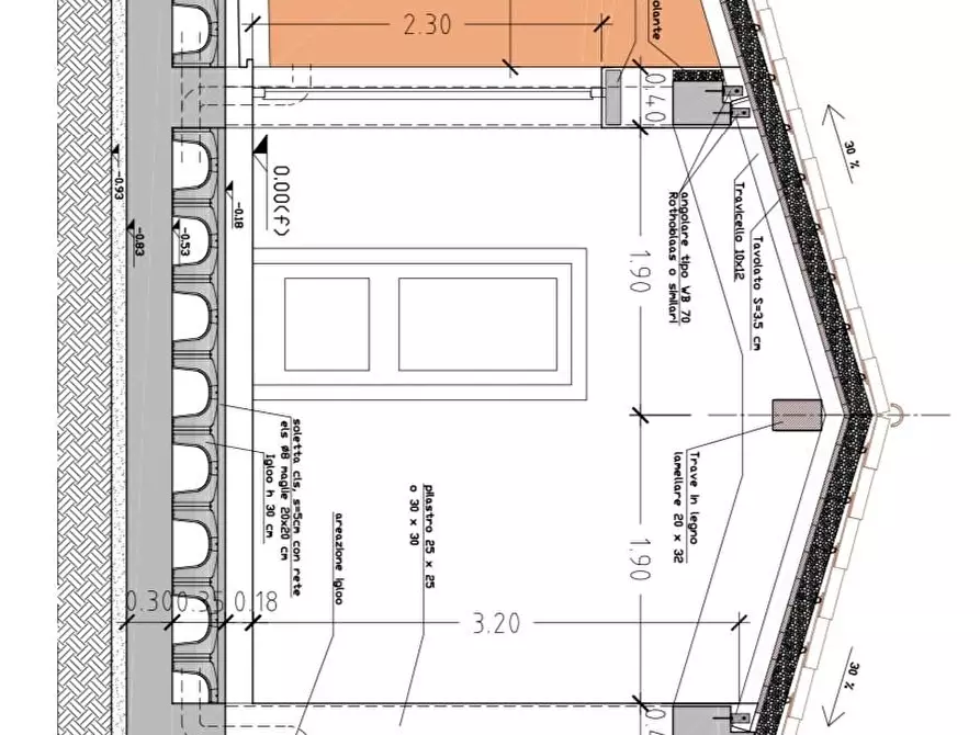
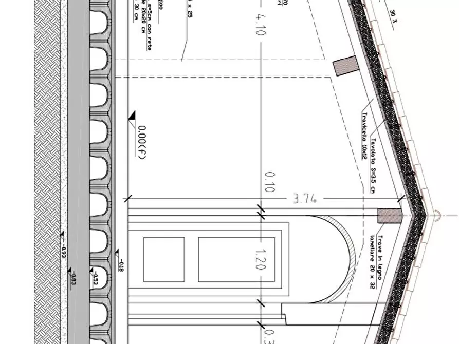
Nella campagna in posizione soleggiata con vista suggestiva aperta sui vigneti ,sorge Villa indipendente con giardino privato sviluppato su un unico piano composta da: soggiorno con ampio portico ,cucina con veranda, camera matrimoniale con bagno padronale, camera doppia e bagno. A completare la proprietà due posti auto. Attualmente è in corso di realizzazione la platea come da foto . Il prezzo indicato si riferisce all'acquisto del terreno con platea . La Platea è stata predisposta in modo da prevedere che la villa possa essere ultimata sia con l'edilizia tradizionale che con Bio edilizia .
Classe energetica: Non disponibile - Rif. 875
RIFERIMENTO ANNUNCIO
1288609/1698/1000
DATA ANNUNCIO
11 ottobre 2024
DATA ULTIMO AGGIORNAMENTO
30 settembre 2025
CONTRATTO
Vendita
TIPOLOGIA
Villa
SUPERFICIE
105 m²
locali
4
TIPO PROPRIETA'
Standard
ALTRE CARATTERISTICHE'
non arredato
Costi
€ 178.000,00
prezzo di vendita
Anno di costruzione
2024
Stato
nuovo/in costruzione
Classe energetica NON DISPONIBILE
a+ a b c d e f g
Mappa della zona dell'immobile

Calcola il mutuo

Inserisci i dati mutuo

Rata del mutuo
Al mese
Anticipo
Mutuo
Richiedi consulenza gratuita mutuo

Servizio erogato tramite  

Servizi per te
Inserzionista
Agenzia Malaspina
Sabrina Peonia

Codice annuncio: 1288609
Riferimento immobile: 1288609/1698/1000

Invia email
ATTENZIONE ALLE TRUFFE
 
NON ANTICIPARE MAI denaro su carte ricaricabili, conti correnti esteri, money transfer o altri sistemi di pagamento

Scopri subito quanto vale la tua casa per l'affitto o per la vendita!

   

Altri annunci simili

Villa in vendita a Sarzana
SARZANA – FALCINELLO In posizione tranquilla e riservata, casa indipendente composta da due appar...
€ 165.000
10
locali
250 ㎡
superficie
2
bagni
Villa in vendita in Via Falcinello 300 a Sarzana
NEL COMUNE DI FALCINELLO, IN POSIZIONE TRANQUILLA E RISERVATA MA COMODA A TUTTI I SERVIZI, VILLA ...
€ 165.000
10
locali
250 ㎡
superficie
2
bagni
Villa in vendita a Carrara
VILLA INDIPENDENTE in costruzione con vista mare e monti venduta al grezzo. L'immobile è così ...
€ 180.000
10
locali
230 ㎡
superficie
3
bagni
Villa in vendita a Carrara
VILLA INDIPENDENTE in costruzione con vista mare e monti venduta al grezzo. L'immobile è così ...
€ 180.000
10
locali
230 ㎡
superficie
3
bagni
Villa in vendita a Carrara
A Carrara, in località Fontia, vendesi villa indipendente di nuova costruzione, immersa nel verde...
€ 180.000
5
locali
230 ㎡
superficie
2
bagni
Villa in vendita 31 a Aulla
A325 In località Malacosta, nel comune di Aulla, proponiamo questa splendida casa indipendente su...
€ 180.000
9
locali
188 ㎡
superficie
2
bagni