ioaffitto.it TROVA casa. VIVI SEMPLICE.
Logo
1/8
Immagine 1 di Terratetto in vendita  a Massa
2/8
Immagine 2 di Terratetto in vendita  a Massa
3/8
Immagine 3 di Terratetto in vendita  a Massa
4/8
Immagine 4 di Terratetto in vendita  a Massa
5/8
Immagine 5 di Terratetto in vendita  a Massa
6/8
Immagine 6 di Terratetto in vendita  a Massa
7/8
Immagine 7 di Terratetto in vendita  a Massa
8/8
Immagine 8 di Terratetto in vendita  a Massa
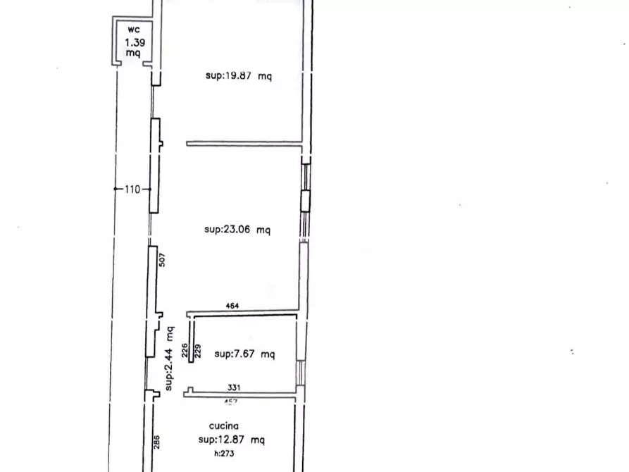
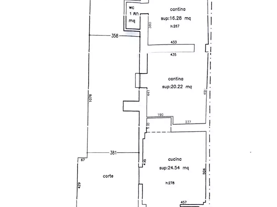
Icona foto8 Foto     Icona planimetrie 0 planimetria

Terratetto in vendita a Massa

€ 150.000,00
prezzo di vendita
6
locali
2
bagni
148
mq
Quercioli, Vendesi Terratetto Semindipendente Libero su 3 Lati, Completamente da Ristrutturare. L'immobile ha un Giardino Pertinenziale Privato di circa 100mq e si Sviluppa su 2 Livelli. Attualmente Suddiviso in 3 Subalterni : Piano Terra Civile Abitazione, Sempre al Piano Terra Cantina e Piano Primo Civile Abitazione.

I Subalterni si Possono Fondere per Realizzare una Villetta Semindipendente con Cucina, Salone e Camera Matrimoniale oltre al Bagno al Piano Terra e 3 Camere Matrimoniali oltre al Bagno al Piano Primo.

Nel Caso si Volesse Mantenere i Subalterni Divisi per Realizzare 2 Nuovi Appartamenti è Possibile Realizzare 2 Trilocali con Cucina Open Space, 2 Camere da Letto e Bagno o in Alternativa Cucina, Sala, una Camera da Letto e Bagno.

Consigliata Demolizione/Ricostruzione del Fabbricato per Realizzare un Immobile (o 2 Immobili) più Performanti, Dato che vi è la Necessità di Rifare Tetto e Solai.
RIFERIMENTO ANNUNCIO
1322746/618/3403
DATA ANNUNCIO
24 aprile 2025
DATA ULTIMO AGGIORNAMENTO
24 aprile 2025
CONTRATTO
Vendita
TIPOLOGIA
Terratetto
SUPERFICIE
148 m²
locali
6
TIPO PROPRIETA'
Standard
ALTRE CARATTERISTICHE'
non arredato
Costi
€ 150.000,00
prezzo di vendita
Anno di costruzione
1930
Stato
da ristrutturare
Classe energetica G 100 kwm2
a+ a b c d e f g
Mappa della zona dell'immobile

Calcola il mutuo

Inserisci i dati mutuo

Rata del mutuo
Al mese
Anticipo
Mutuo
Richiedi consulenza gratuita mutuo

Servizio erogato tramite  

Servizi per te
Inserzionista
Rossella Immobiliare
Giuseppina Manucci

Codice annuncio: 1322746
Riferimento immobile: 1322746/618/3403

Invia email
ATTENZIONE ALLE TRUFFE
 
NON ANTICIPARE MAI denaro su carte ricaricabili, conti correnti esteri, money transfer o altri sistemi di pagamento

Scopri subito quanto vale la tua casa per l'affitto o per la vendita!

   

Altri annunci simili

Terratetto in vendita a Massa
Antona - Massa- Nella soleggiata frazione collinare di Massa, Antona, proponiamo in vendita quest...
€ 135.000
4
locali
101 ㎡
superficie
3
bagni
Terratetto in vendita a Massa
Massa, località Castagnola, in zona servita e tranquilla vendesi terratetto da ristrutturare. Ing...
€ 160.000
4
locali
100 ㎡
superficie
1
bagni
Terratetto in vendita a Massa
Massa, località Castagnola, in zona servita e tranquilla vendesi terratetto da ristrutturare. Ing...
€ 160.000
4
locali
100 ㎡
superficie
1
bagni
Terratetto in vendita a Massa
In vendita a Massa, nel cuore della zona di Altagnana, proponiamo un incantevole terratetto compl...
€ 148.000
6
locali
110 ㎡
superficie
2
bagni
Terratetto in vendita a Massa
Quercioli, Vendesi Terratetto Semindipendente Libero su 3 Lati, Completamente da Ristrutturare. L...
€ 150.000
6
locali
148 ㎡
superficie
2
bagni
Terratetto in vendita a Massa
Si propone in vendita nel paese di Altagnana, a 10 minuti dal centro di Massa delizioso terratett...
€ 148.000
4
locali
100 ㎡
superficie
2
bagni