ioaffitto.it TROVA casa. VIVI SEMPLICE.
Logo
1/1
Immagine 1 di Attività artigianale in vendita  a San Miniato
Icona foto1 Foto     Icona planimetrie 0 planimetria

Attività artigianale in vendita a San Miniato

€ 620.000,00
prezzo di vendita
2
locali
-
bagni
1170
mq
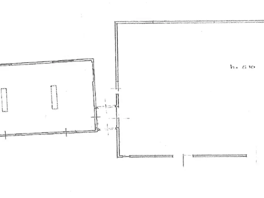
Complesso composto da due capannoni tra loro collegati, per una superficie di 1170 mq. circa. il primo è un unico ambiente rettangolare di circa 5 metri di altezza, della superficie di 725 mq. circa. Il secondo ha una altezza che varia dai 4 metri e mezzo sui lati ai 6 metri al centro della copertura (sono presenti dei tiranti) è più stretto e più lungo, per una superficie di 445 mq. circa. Ampio resede antistante e laterale, con accesso dalla strada pubblica. Vicinanza con l'ingresso della FI-PUI-LI.
RIFERIMENTO ANNUNCIO
1334484/195/2646
DATA ANNUNCIO
15 luglio 2025
DATA ULTIMO AGGIORNAMENTO
18 luglio 2025
CONTRATTO
Vendita
TIPOLOGIA
Attività artigianale
SUPERFICIE
1170 m²
locali
2
TIPO PROPRIETA'
Standard
ALTRE CARATTERISTICHE'
Costi
€ 620.000,00
prezzo di vendita
Stato
discreto
Classe energetica G 190.3 kwm2
a+ a b c d e f g
Mappa della zona dell'immobile

Calcola il mutuo

Inserisci i dati mutuo

Rata del mutuo
Al mese
Anticipo
Mutuo
Richiedi consulenza gratuita mutuo

Servizio erogato tramite  

Servizi per te
Inserzionista
CIULLI Agenzia Immobiliare
Roberto Ciulli

Codice annuncio: 1334484
Riferimento immobile: 1334484/195/2646

Invia email
ATTENZIONE ALLE TRUFFE
 
NON ANTICIPARE MAI denaro su carte ricaricabili, conti correnti esteri, money transfer o altri sistemi di pagamento

Scopri subito quanto vale la tua casa per l'affitto o per la vendita!

   

Altri annunci simili

Attività artigianale in vendita a San Miniato
SAN MINIATO - PONTE A EGOLA - CAPANNONE LIBERO SU QUATTRO LATI - Rif. 4/0053 - Ponte a Egola zona...
€ 600.000
2
locali
1800 ㎡
superficie
Attività artigianale in vendita a Bientina
Bientina: In zona industriale/commerciale, bel capannone artigianale con uffici magazzino e appar...
€ 600.000
2
locali
1200 ㎡
superficie
Attività artigianale in vendita a Vicopisano
VICOPISANO – CAPANNONE INDUSTRIALE INDIPENDENTE CON PIAZZALE! Proponiamo in vendita un Capannone...
€ 600.000
4
locali
1400 ㎡
superficie
Attività artigianale in vendita a San Giuliano Terme
San Martino a Ulmiano (S. Giuliano T.) - VENDITA di un complesso di laboratori artigianali, super...
€ 600.000
5
locali
1500 ㎡
superficie
Attività artigianale in vendita a San Giuliano Terme
San Martino a Ulmiano (S. Giuliano T.) - VENDITA di un complesso di laboratori artigianali, super...
€ 600.000
5
locali
1500 ㎡
superficie