ioaffitto.it TROVA casa. VIVI SEMPLICE.
Logo
1/1
Immagine 1 di Appartamento in vendita  a Prato
Icona foto1 Foto     Icona planimetrie 0 planimetria

Appartamento in vendita a Prato

€ 425.000,00
prezzo di vendita
3
locali
1
bagni
139
mq
RIF. 3884
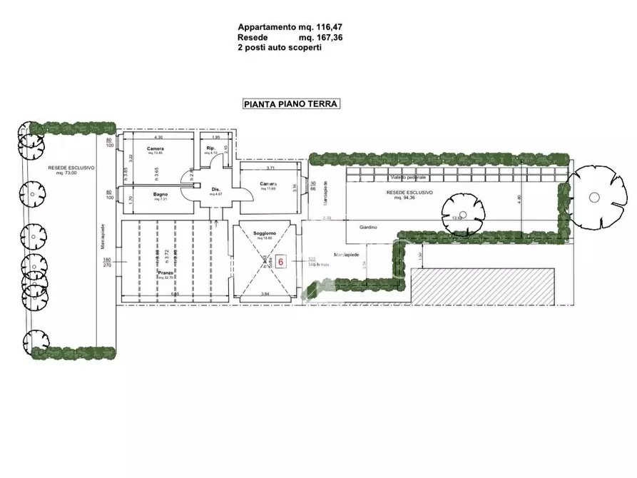
Prato zona il Rosi: In bel contesto residenziale, proponiamo in vendita APPARTAMENTI E TERRATETTI di varie metrature con giardini e posti auto scoperti.
L'immobile in questione è un APPARTAMENTO situato al piano terra di bel contesto colonico rivisitato in chiave signorile con le finiture tipiche toscane ma allo stesso tempo con un elevata prestazione energetica. L'appartamento è cosi composto: ampia zona giorno, cucina abitabile con accesso al giardino di proprietà esclusiva, due camere da letto di cui una matrimoniale e l'altra singola, bagno finestrato e ripostiglio. Ottima opportunità di detrazioni fiscali a euro 48.000,00 in 10 anni.
Classe energetica B
RIF. 3884
RIFERIMENTO ANNUNCIO
1336487/2112/3884
DATA ANNUNCIO
19 maggio 2025
DATA ULTIMO AGGIORNAMENTO
29 settembre 2025
CONTRATTO
Vendita
TIPOLOGIA
Appartamento
SUPERFICIE
139 m²
locali
3
TIPO PROPRIETA'
Standard
ALTRE CARATTERISTICHE'
non arredato
Costi
€ 425.000,00
prezzo di vendita
Anno di costruzione
2025
Stato
nuovo/in costruzione
Classe energetica B 3 kwm2
a+ a b c d e f g
Mappa della zona dell'immobile

Calcola il mutuo

Inserisci i dati mutuo

Rata del mutuo
Al mese
Anticipo
Mutuo
Richiedi consulenza gratuita mutuo

Servizio erogato tramite  

Servizi per te
Inserzionista
IL FARO Immobiliare
Jacopo Vigiani

Codice annuncio: 1336487
Riferimento immobile: 1336487/2112/3884

Invia email
ATTENZIONE ALLE TRUFFE
 
NON ANTICIPARE MAI denaro su carte ricaricabili, conti correnti esteri, money transfer o altri sistemi di pagamento

Scopri subito quanto vale la tua casa per l'affitto o per la vendita!

   

Altri annunci simili

Appartamento in vendita in via del palco a Prato
In una delle zone più prestigiose di Prato all’interno di in piccolo contesto condominale di soli...
€ 430.000
4
locali
199 ㎡
superficie
Appartamento in vendita a Prato
Montegrappa. In zona centrale, disponiamo di appartamento di 6 vani. L'immobile, posto al terzo ...
€ 409.000
6
locali
160 ㎡
superficie
2
bagni
Appartamento in vendita in Via San Martino per Galceti a Prato
Coiano. NOSTRA ESCLUSIVA In zona residenziale , disponiamo di appartamento cinque vani , in pal...
€ 410.000
5
locali
117 ㎡
superficie
2
bagni
Appartamento in vendita a Prato
San Giusto. In una zona tranquilla, ben collegata e comoda a tutti i principali servizi, disponi...
€ 420.000
3
locali
115 ㎡
superficie
1
bagni
Appartamento in vendita in MONTEMURLO a Montemurlo
Montemurlo. In zona residenziale , disponiamo di appartamento trilocale in colonica di nuova ris...
€ 434.000
4
locali
136 ㎡
superficie
2
bagni
Appartamento in vendita in Viale Niccolò Machiavelli 62 a Sesto Fiorentino
Nelle immediate vicinanze di una delle piazze principali del centro cittadino, si propone luminos...
€ 430.000
5
locali
100 ㎡
superficie
2
bagni
Annunci immobiliari nella stessa zona