ioaffitto.it TROVA casa. VIVI SEMPLICE.
Nuova ricerca
Pubblica annuncio
Annunci sponsorizzati
Agenzie
Valutazione-immobile
Servizi
Luce Gas Fibra
Mutui
Finanziamenti
Ricerca Internazionale
Servizi web
Pubblica annuncio
Accedi
1/2
2/2
2
Foto
0
planimetria
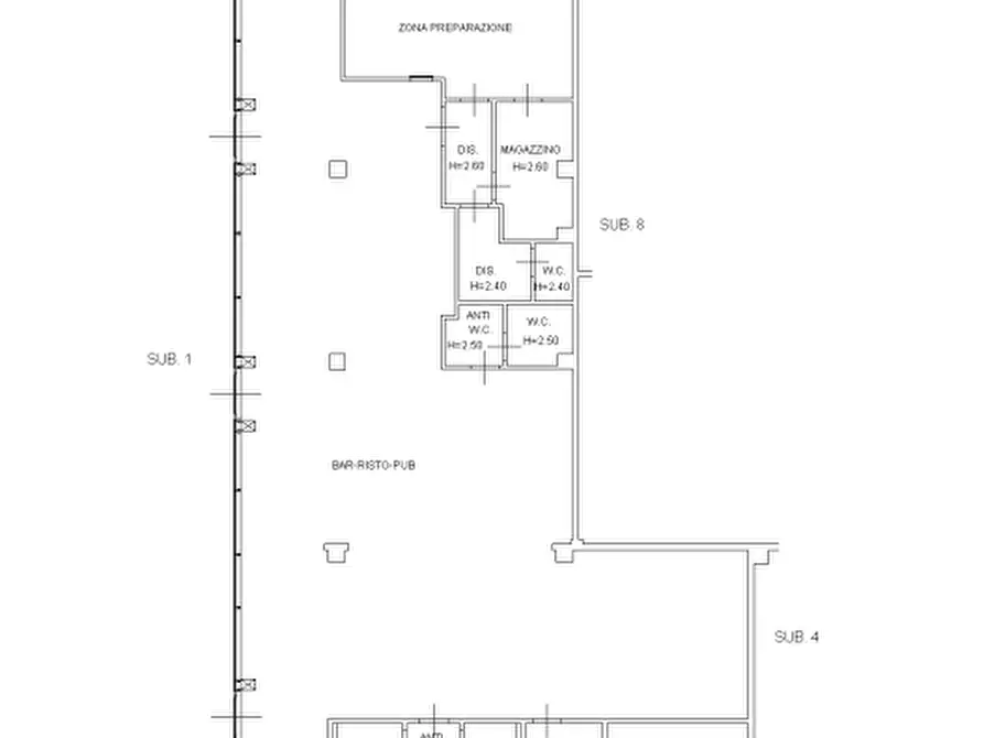
Locale commerciale in affitto a Ponsacco
€ 2.700,00
al mese
6
locali
-
bagni
265
mq
!!!!!SUPER OCCASIONE PONSACCO!!!!!!
Vi presentiamo questo stupendo locale commerciale OTTIMO PER ATTIVITA' DI BAR/RISTORANTE/PIZZERIA.
Questo spazio con una superficie di 265 Mq, si presenta in uno stato eccellente, pronto ad accogliere la vostra attività con tutti i comfort necessari.
Con la sua posizione strategica fronte strada, 5 ampie vetrine, e senza alcun problema di parcheggio, questo locale offre un'opportunità unica da non lasciarsi scappare per chi cerca un ambiente ben mantenuto e funzionale.
Per qualsiasi informazione non esitate a contattarci!
Chiamaci ora al 3396115079
Capannoni&co
RIFERIMENTO ANNUNCIO
1394335/1520/CM585
DATA ANNUNCIO
12 febbraio 2026
DATA ULTIMO AGGIORNAMENTO
12 febbraio 2026
CONTRATTO
Affitto
TIPOLOGIA
Locale commerciale
SUPERFICIE
265 m²
locali
6
TIPO PROPRIETA'
Standard
ALTRE CARATTERISTICHE'
Costi
€ 2.700,00
al mese
Stato
ottimo
Classe energetica
IN ATTESA DI CERTIFICAZIONE
a+
a
b
c
d
e
f
g
Mappa della zona dell'immobile
Ingrandisci mappa
Segnala un problema
Servizi per te
Inserzionista
Case & co
Elisa Cantini
Codice annuncio:
1394335
Riferimento immobile:
1394335/1520/CM585
Mostra numero
Tel: 3276975913
Invia email
Motivo contatto
Appuntamento
Più informazioni
Richiesta di contatto
Più foto e materiali
Nome e cognome*
Email*
Cellulare
Messaggio*
ATTENZIONE ALLE TRUFFE
NON ANTICIPARE MAI denaro su carte ricaricabili, conti correnti esteri, money transfer o altri sistemi di pagamento
Accettazione*
Ho letto, sono maggiorenne e accetto
condizioni
,
privacy
e
Consigli antitruffa
Invia
Chiama
Contatta
Visita
Richiedi visita
Scopri subito quanto vale la tua casa per l'affitto o per la vendita!
Valuta gratis
Altri annunci simili
a
a
a
a
a
a
Annunci immobiliari nella stessa zona
Comune di Ponsacco:
Affitto Attività/immobili commerciali Ponsacco
|
Affitto Locali commerciali Ponsacco
|
Agenzie immobiliari Ponsacco
|
Provincia di Pisa:
Affitto Attività/immobili commerciali Pisa
|
Affitto Locali commerciali Pisa
|
Agenzie immobiliari Pisa
|
Email
Password
Ricordami
Registrati adesso
Sei una agenzia?
Password dimenticata?