ioaffitto.it TROVA casa. VIVI SEMPLICE.
Nuova ricerca
Pubblica annuncio
Annunci sponsorizzati
Agenzie
Valutazione-immobile
Servizi
Luce Gas Fibra
Mutui
Finanziamenti
Ricerca Internazionale
Servizi web
Servizio partecipazione asta
Pubblica annuncio
Accedi
Nuovo
1/6
2/6
3/6
4/6
5/6
6/6
6
Foto
1
planimetria
Capannone industriale in affitto in via MONTE PASUBIO 7 a Monza
€ 1.583,00
al mese
2
locali
2
bagni
240
mq
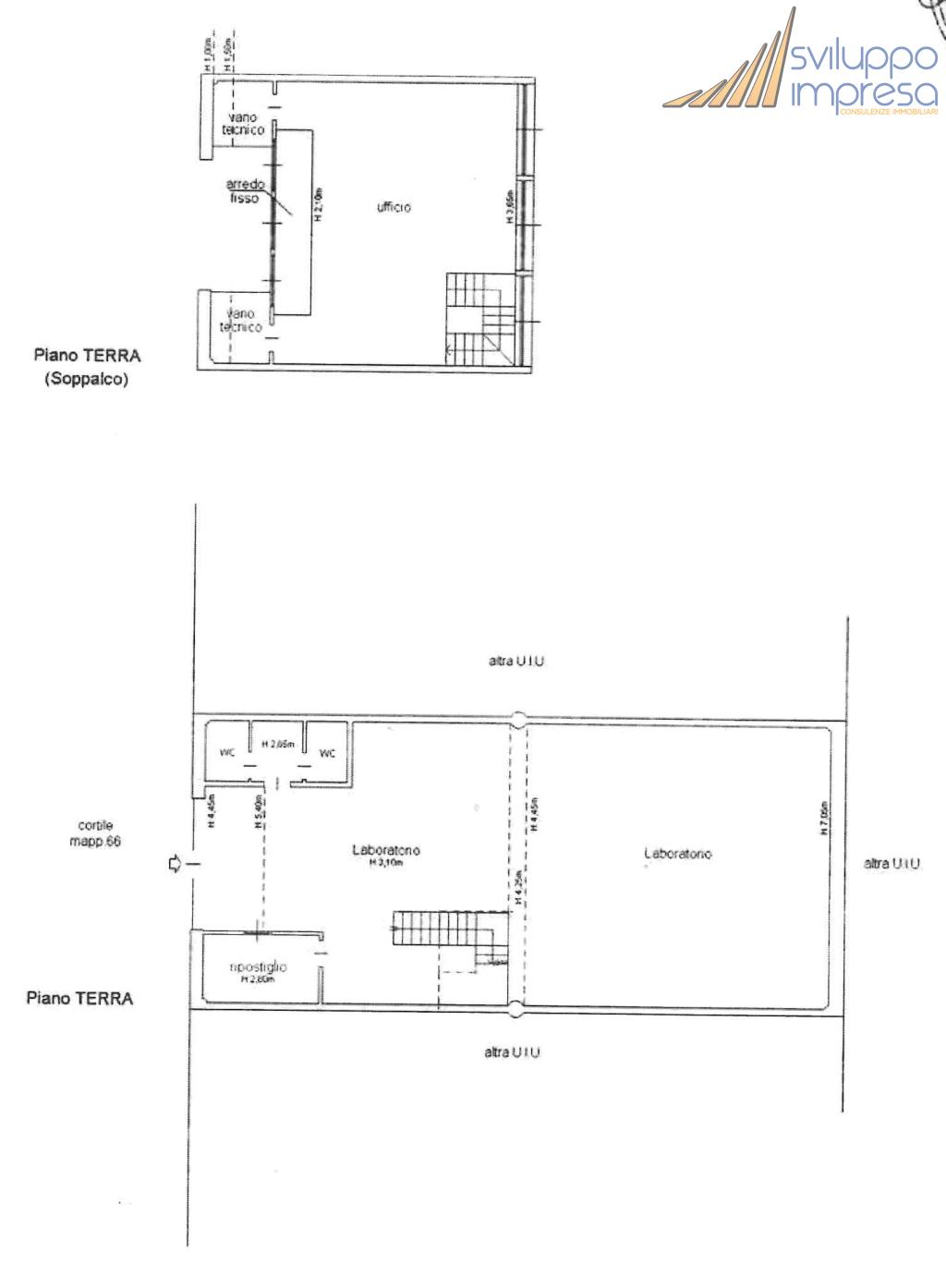
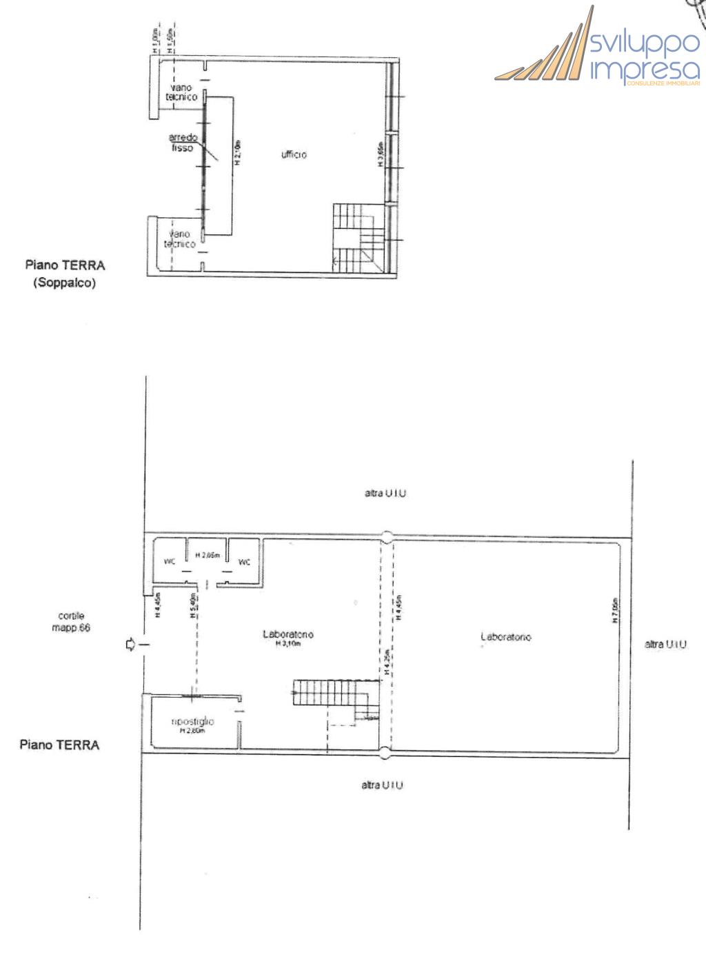
Monza (MB), traversa di via Borgazzi, all'interno di un complesso artigianale proponiamo in esclusiva capannone della metratura complessiva di mq 240 così composto: area laboratorio/magazzino al piano terra di mq 180 con h. max di mt 7, dotato di doppi servizi, impianto elettrico/illuminazione certificato e riscaldamento a mezzo aerotermi; ufficio di mq 60 posto al piano primo e disposto in open space anch'esso dotato di impianto elettrico/illuminazione, riscaldamento e condizionamento oltre al bagno dedicato. Completa la soluzione 2 posti auto ad uso esclusivo. In buone condizioni generali. Libero da giugno 2026. AFFITTASI
RIFERIMENTO ANNUNCIO
11453
DATA ANNUNCIO
18 dicembre 2025
DATA ULTIMO AGGIORNAMENTO
18 dicembre 2025
CONTRATTO
Affitto
TIPOLOGIA
Capannone industriale
SUPERFICIE
240 m²
locali
2
PIANO
Terra
TIPO PROPRIETA'
Standard
ALTRE CARATTERISTICHE'
balcone disponibile
giardino comunale
giardino privato
riscaldamento autonomo
cucina assente
posto auto scoperto
terrazzo disponibile
Costi
€ 1.583,00
al mese
Mappa della zona dell'immobile
Ingrandisci mappa
Segnala un problema
Servizi per te
Inserzionista
Sviluppo Impresa Srl
Vai al sito web
Codice annuncio:
11453
Riferimento immobile:
11453
Mostra numero
Tel: 0224412650
Invia email
Motivo contatto
Appuntamento
Più informazioni
Richiesta di contatto
Più foto e materiali
Nome e cognome*
Email*
Cellulare
Messaggio*
ATTENZIONE ALLE TRUFFE
NON ANTICIPARE MAI denaro su carte ricaricabili, conti correnti esteri, money transfer o altri sistemi di pagamento
Accettazione*
Ho letto, sono maggiorenne e accetto
condizioni
,
privacy
e
Consigli antitruffa
Invia
Chiama
Contatta
Visita
Richiedi visita
Scopri subito quanto vale la tua casa per l'affitto o per la vendita!
Valuta gratis
Altri annunci simili
a
a
Annunci immobiliari nella stessa zona
Comune di Monza:
Agenzie immobiliari Monza
|
Provincia di Monza e della Brianza:
Agenzie immobiliari Monza e della Brianza
|
Email
Password
Ricordami
Registrati adesso
Sei una agenzia?
Password dimenticata?