ioaffitto.it TROVA casa. VIVI SEMPLICE.
Nuova ricerca
Pubblica annuncio
Annunci sponsorizzati
Agenzie
Valutazione-immobile
Servizi
Luce Gas Fibra
Mutui
Finanziamenti
Ricerca Internazionale
Servizi web
Servizio partecipazione asta
Pubblica annuncio
Accedi
In affitto
/
Ufficio
/
Brugherio (MI)
1 di 0
1/3
2/3
3/3
3
Foto
1
planimetria
Ufficio in affitto in Via Talamoni 56 a Brugherio
€ 1.000,00
al mese
2
locali
2
bagni
110
mq
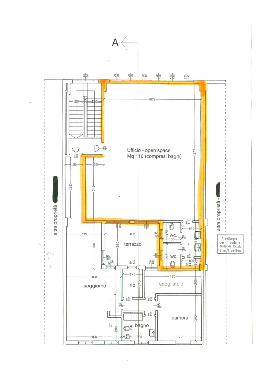
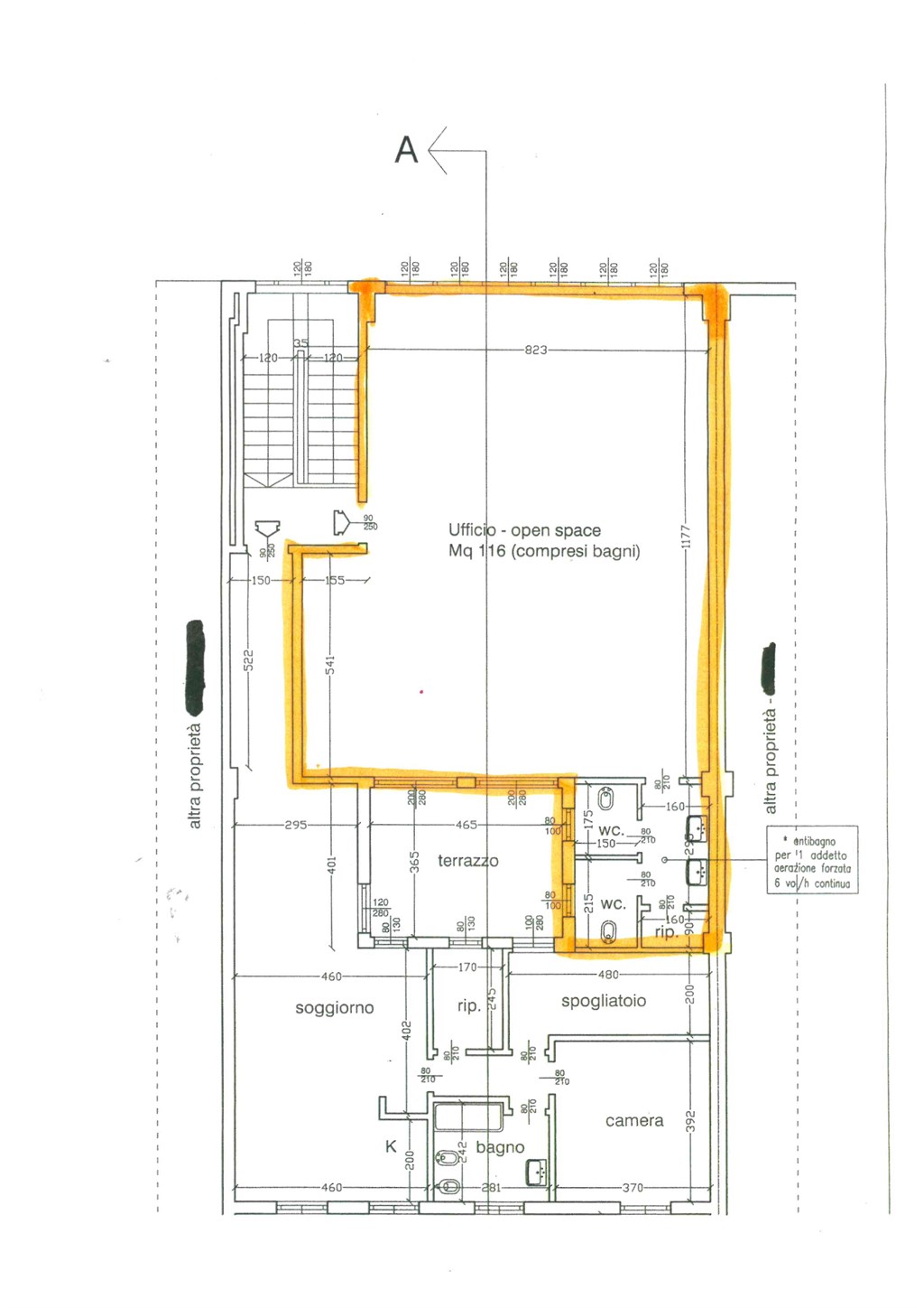
Brugherio (MB) – Via Talamoni, a pochi passi da Viale delle Industrie, proponiamo in affitto ufficio situato al primo piano, con una superficie di circa 110 mq. L’immobile, in perfette condizioni manutentive, è composto da un ampio open space e una sala riunioni separata. L'ufficio è dotato di pavimentazione galleggiante, controsoffitto, impianto di illuminazione, rete dati, impianto elettrico e climatizzazione autonoma, che consente una gestione separata del riscaldamento e del raffrescamento. Completano la proprietà i doppi servizi. L'immobile è privo di spese condominiali ed è disponibile da subito. AFFITTASI.
RIFERIMENTO ANNUNCIO
19384
DATA ANNUNCIO
7 marzo 2025
DATA ULTIMO AGGIORNAMENTO
7 marzo 2025
CONTRATTO
Affitto
TIPOLOGIA
Ufficio
SUPERFICIE
110 m²
locali
2
PIANO
1°
TIPO PROPRIETA'
Standard
ALTRE CARATTERISTICHE'
balcone disponibile
giardino comunale
giardino privato
riscaldamento autonomo
cucina assente
posto auto non presente
terrazzo disponibile
Costi
€ 1.000,00
al mese
Mappa della zona dell'immobile
Ingrandisci mappa
Segnala un problema
Servizi per te
Inserzionista
Sviluppo Impresa Srl
Vai al sito web
Codice annuncio:
19384
Riferimento immobile:
19384
Mostra numero
Tel: 0224412650
Invia email
Motivo contatto
Appuntamento
Più informazioni
Richiesta di contatto
Più foto e materiali
Nome e cognome*
Email*
Cellulare
Messaggio*
ATTENZIONE ALLE TRUFFE
NON ANTICIPARE MAI denaro su carte ricaricabili, conti correnti esteri, money transfer o altri sistemi di pagamento
Accettazione*
Ho letto, sono maggiorenne e accetto
condizioni
,
privacy
e
Consigli antitruffa
Invia
Chiama
Contatta
Visita
Richiedi visita
Scopri subito quanto vale la tua casa per l'affitto o per la vendita!
Valuta gratis
Altri annunci simili
a
Ufficio in affitto in Via Massimo D'azeglio 8 a Monza
MONZA CENTRO - A soli 50 metri dall'Isola pedonale, in casa d'epoca ristrutturata, proponiamo in...
€ 800
3
locali
75 ㎡
superficie
2
bagni
Ufficio in affitto in Via Monte Pasubio 7 a Monza
Monza (MB), all'interno di uno storico complesso artigianale, proponiamo spazio ad uso ufficio po...
€ 1.000
2
locali
135 ㎡
superficie
a
Ufficio in affitto in Via Lomellina 8 a Cernusco Sul Naviglio
Cernusco sul Naviglio (Mi), Via Lomellina, proponiamo ufficio di 90 mq situato al piano primo di ...
€ 900
90 ㎡
superficie
2
bagni
a
Annunci immobiliari nella stessa zona
Comune di Brugherio:
Affitto Attività/immobili commerciali Brugherio
|
Affitto Uffici Brugherio
|
Agenzie immobiliari Brugherio
|
Provincia di Milano:
Affitto Attività/immobili commerciali Milano
|
Affitto Uffici Milano
|
Agenzie immobiliari Milano
|
Email
Password
Ricordami
Registrati adesso
Sei una agenzia?
Password dimenticata?