ioaffitto.it TROVA casa. VIVI SEMPLICE.
Nuova ricerca
Pubblica annuncio
Annunci sponsorizzati
Agenzie
Valutazione-immobile
Servizi
Luce Gas Fibra
Mutui
Finanziamenti
Ricerca Internazionale
Servizi web
Servizio partecipazione asta
Pubblica annuncio
Accedi
1/10
2/10
3/10
4/10
5/10
6/10
7/10
8/10
9/10
10/10
10
Foto
1
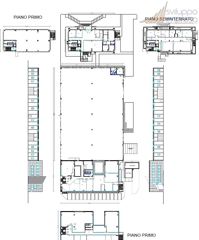
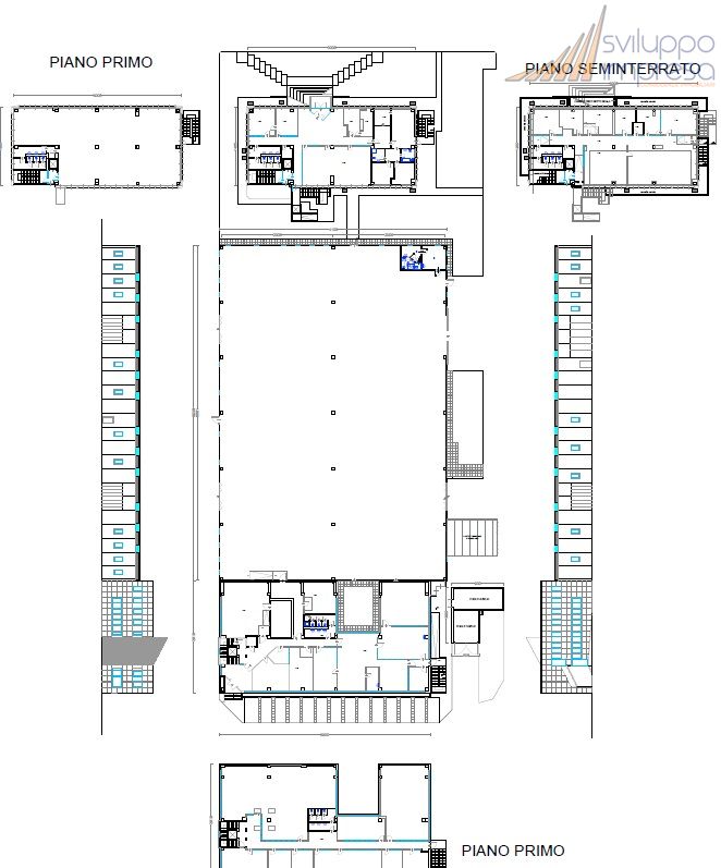
planimetria
Capannone industriale in affitto in via Guido Rossa 18/20 a Cornate D'adda
€ 16.500,00
al mese
-
locali
10
bagni
3950
mq
Cornate d'Adda (MB) - Nella principale zona industriale del comune proponiamo immobile industriale indipendente così composto: capannone, con doppio blocco servizi di nuova costruzione e locali tecnici, per mq. 2.550, con altezza sotto trave di 5,00 metri; in adiacenza palazzina uffici/laboratori con servizi su due livelli per un totale di mq. 1.400. L'area esterna privata è di circa 3.000 mq con doppio cancello carraio e cabina elettrica di media tensione inclusa ed anello antincendio. La copertura del capannone è stata completamente rifatta e l'interno verrà consegnato imbiancato con lucidatura pavimento industriale con trattamento corticale e con quattro ampi portoni per carico e scarico di nuova installazione. La palazzina uffici verrà consegnate nello stato di fatto. Libero subito. AFFITTASI
RIFERIMENTO ANNUNCIO
20063
DATA ANNUNCIO
30 maggio 2025
DATA ULTIMO AGGIORNAMENTO
30 maggio 2025
CONTRATTO
Affitto
TIPOLOGIA
Capannone industriale
SUPERFICIE
3950 m²
PIANO
Terra
TIPO PROPRIETA'
Standard
ALTRE CARATTERISTICHE'
balcone disponibile
giardino comunale
giardino privato
cucina assente
terrazzo disponibile
Costi
€ 16.500,00
al mese
Mappa della zona dell'immobile
Ingrandisci mappa
Segnala un problema
Servizi per te
Inserzionista
Sviluppo Impresa Srl
Vai al sito web
Codice annuncio:
20063
Riferimento immobile:
20063
Mostra numero
Tel: 0224412650
Invia email
Motivo contatto
Appuntamento
Più informazioni
Richiesta di contatto
Più foto e materiali
Nome e cognome*
Email*
Cellulare
Messaggio*
ATTENZIONE ALLE TRUFFE
NON ANTICIPARE MAI denaro su carte ricaricabili, conti correnti esteri, money transfer o altri sistemi di pagamento
Accettazione*
Ho letto, sono maggiorenne e accetto
condizioni
,
privacy
e
Consigli antitruffa
Invia
Chiama
Contatta
Visita
Richiedi visita
Scopri subito quanto vale la tua casa per l'affitto o per la vendita!
Valuta gratis
Altri annunci simili
Capannone industriale in affitto in via delle industrie a Mezzago
Mezzago (MB) - A ridosso della statale Monza Trezzo, nelle vicinanze dello svincolo A4 e della ...
€ 16.417
5
locali
2698 ㎡
superficie
2
bagni
Capannone industriale in affitto in VIA CAMPANIA a Monza
Affitta a Monza, Capannone con uffici, mq. 2.500 ca., Canone annuo Euro. 200.000,00 ( pari a ca....
€ 16.666
4
locali
2500 ㎡
superficie
3
bagni
Capannone industriale in affitto a Cinisello Balsamo
Capannone in locazione a Cinisello Balsamo Capannone in locazione di 3000mq a Cinisello Balsamo ...
€ 16.667
3000 ㎡
superficie
Capannone industriale in affitto in via Cantù 8 a Cinisello Balsamo
Cinisello Balsamo (MI), immediate vicinanze viale Fulvio Testi e uscita A4, in piccolo quartiere ...
€ 16.667
1
locali
3000 ㎡
superficie
6
bagni
Annunci immobiliari nella stessa zona
Comune di Cornate D'adda:
Affitto Attività/immobili commerciali Cornate D'adda
|
Affitto Capannoni industriali Cornate D'adda
|
Agenzie immobiliari Cornate D'adda
|
Provincia di Milano:
Affitto Attività/immobili commerciali Milano
|
Affitto Capannoni industriali Milano
|
Agenzie immobiliari Milano
|
Email
Password
Ricordami
Registrati adesso
Sei una agenzia?
Password dimenticata?