ioaffitto.it TROVA casa. VIVI SEMPLICE.
Nuova ricerca
Pubblica annuncio
Annunci sponsorizzati
Agenzie
Valutazione-immobile
Servizi
Luce Gas Fibra
Mutui
Finanziamenti
Ricerca Internazionale
Servizi web
Servizio partecipazione asta
Pubblica annuncio
Accedi
In affitto
/
Ufficio
/
Grassobbio (BG)
1 di 0
1/10
2/10
3/10
4/10
5/10
6/10
7/10
8/10
9/10
10/10
10
Foto
1
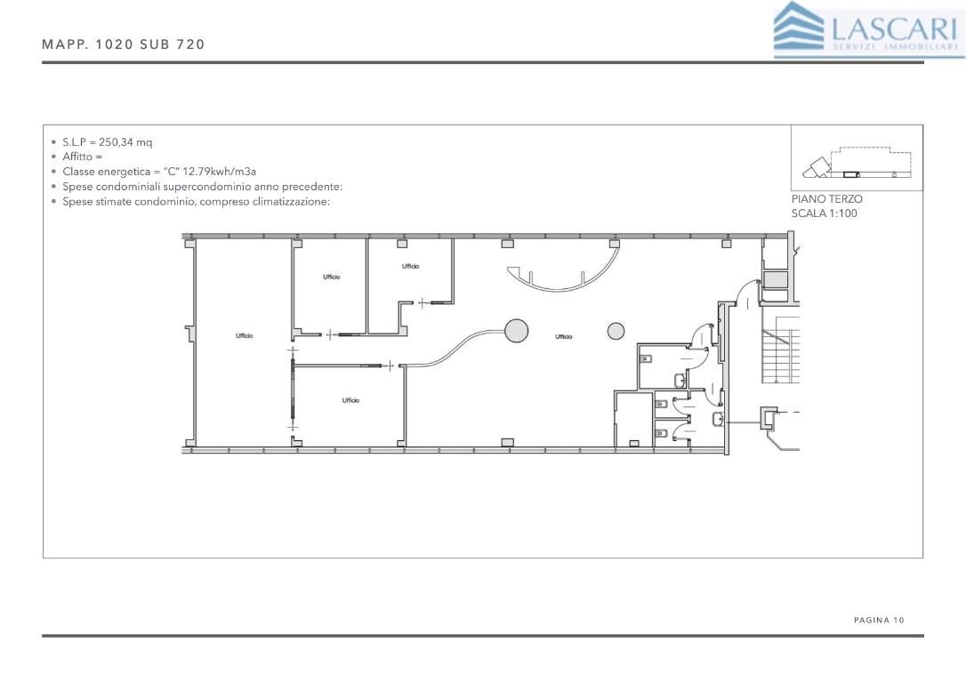
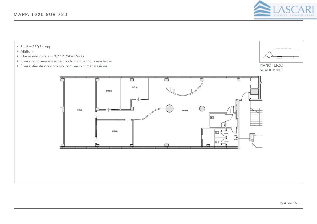
planimetria
Ufficio in affitto in Via Orio al Serio 29 a Grassobbio
€ 2.500,00
al mese
5
locali
3
bagni
250
mq
Posizione interessante, in prossimità dell'aeroporto di Orio al Serio, fronte autostrada, all'interno di tre distinti edifici direzionali disposti su più livelli, è disponibile al 3° piano, scala A, un ufficio arredato di 250 mq. L'ufficio è composto da un ampio open space e quattro vani separati, blocco servizi comprensivo di accesso per disabili. Viene consegnato con pavimento flottante, cablaggio, impianto elettrico-luci, impianto di riscaldamento-raffrescamento con rilevatori di consumo e trattamento dell'aria primaria. Sono disponibili posti auto coperti riservati e un'ampia area di parcheggio privato ad uso pubblico.
RIFERIMENTO ANNUNCIO
2344
DATA ANNUNCIO
26 febbraio 2025
DATA ULTIMO AGGIORNAMENTO
26 febbraio 2025
CONTRATTO
Affitto
TIPOLOGIA
Ufficio
SUPERFICIE
250 m²
locali
5
PIANO
3°
TIPO PROPRIETA'
Standard
ALTRE CARATTERISTICHE'
riscaldamento centralizzato
Costi
€ 2.500,00
al mese
Mappa della zona dell'immobile
Ingrandisci mappa
Segnala un problema
Servizi per te
Inserzionista
Lascari Servizi Immobiliari
Vai al sito web
Codice annuncio:
2344
Riferimento immobile:
2344
Mostra numero
Tel: 035 234162
Invia email
Motivo contatto
Appuntamento
Più informazioni
Richiesta di contatto
Più foto e materiali
Nome e cognome*
Email*
Cellulare
Messaggio*
ATTENZIONE ALLE TRUFFE
NON ANTICIPARE MAI denaro su carte ricaricabili, conti correnti esteri, money transfer o altri sistemi di pagamento
Accettazione*
Ho letto, sono maggiorenne e accetto
condizioni
,
privacy
e
Consigli antitruffa
Invia
Chiama
Contatta
Visita
Richiedi visita
Scopri subito quanto vale la tua casa per l'affitto o per la vendita!
Valuta gratis
Altri annunci simili
a
a
a
a
a
a
Annunci immobiliari nella stessa zona
Comune di Grassobbio:
Affitto Attività/immobili commerciali Grassobbio
|
Affitto Uffici Grassobbio
|
Agenzie immobiliari Grassobbio
|
Provincia di Bergamo:
Affitto Attività/immobili commerciali Bergamo
|
Affitto Uffici Bergamo
|
Agenzie immobiliari Bergamo
|
Email
Password
Ricordami
Registrati adesso
Sei una agenzia?
Password dimenticata?