ioaffitto.it TROVA casa. VIVI SEMPLICE.
Nuova ricerca
Pubblica annuncio
Annunci sponsorizzati
Agenzie
Valutazione-immobile
Servizi
Luce Gas Fibra
Mutui
Finanziamenti
Ricerca Internazionale
Servizi web
Servizio partecipazione asta
Pubblica annuncio
Accedi
Nuovo
1/3
2/3
3/3
3
Foto
1
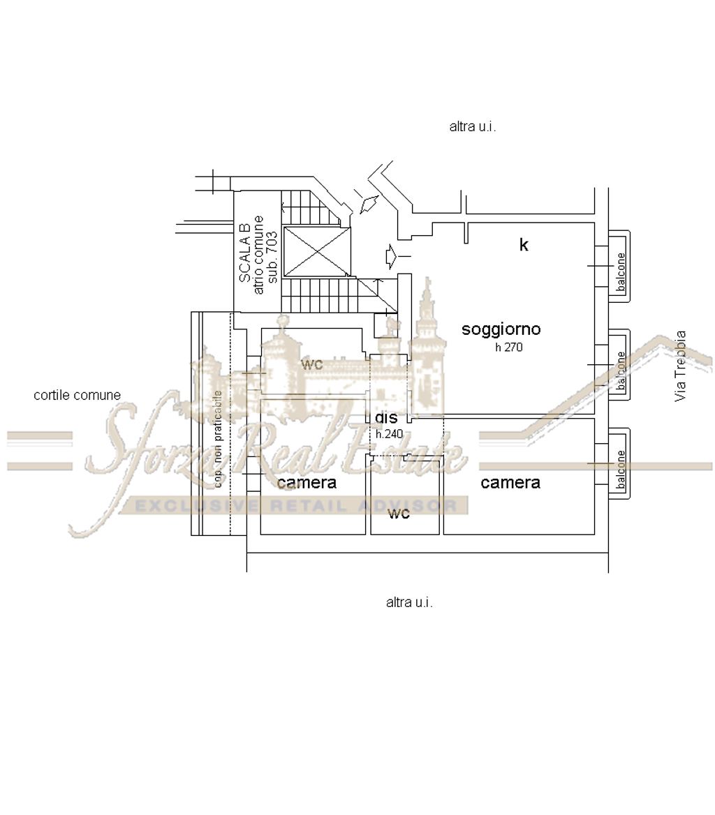
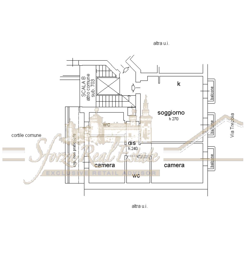
planimetria
Appartamento in affitto in Via Crema 25 a Milano
€ 2.450,00
al mese
3
locali
2
bagni
100
mq
Zona P.ta Romana Via Crema, in elegante palazzo d'Epoca/Vecchia Milano, Affittasi elegante appartamento di 100 mq. ristrutturato al uarto piano, composto da ingresso, soggiorno con cucina a vista, due camere da letto matrimoniali con armadi, due bagni arredati, 3 balconi, canone mensile €2.450 + 120 spese. Si applica la Cedolare Secca, possibile a Società con supplemento. LIBERO SUBITO!!. Sforza Real Estate è un'agenzia immobiliare specializzata nella locazione e compravendita di immobili residenziali, vanta una clientela consolidata e referenziata. Per inviarci Le Vostre richieste o per offrirci appartamenti, previo accurata valutazione, potete scrivere a info@sforzarealestate.com, oppure visitare il nostro sito www.sforzarealestate.com Uff: 02.39680197
RIFERIMENTO ANNUNCIO
3086
DATA ANNUNCIO
9 dicembre 2025
DATA ULTIMO AGGIORNAMENTO
9 dicembre 2025
CONTRATTO
Affitto
TIPOLOGIA
Appartamento
SUPERFICIE
100 m²
locali
3
PIANO
4°
TIPO PROPRIETA'
Standard
ALTRE CARATTERISTICHE'
riscaldamento autonomo
cucina a vista
terrazzo disponibile
Costi
€ 2.450,00
al mese
Mappa della zona dell'immobile
Ingrandisci mappa
Segnala un problema
Servizi per te
Inserzionista
SFORZA REAL ESTATE DI GIANLUCA FRIGO
Vai al sito web
Codice annuncio:
3086
Riferimento immobile:
3086
Mostra numero
Tel: 0239680197
Invia email
Motivo contatto
Appuntamento
Più informazioni
Richiesta di contatto
Più foto e materiali
Nome e cognome*
Email*
Cellulare
Messaggio*
ATTENZIONE ALLE TRUFFE
NON ANTICIPARE MAI denaro su carte ricaricabili, conti correnti esteri, money transfer o altri sistemi di pagamento
Accettazione*
Ho letto, sono maggiorenne e accetto
condizioni
,
privacy
e
Consigli antitruffa
Invia
Chiama
Contatta
Visita
Richiedi visita
Scopri subito quanto vale la tua casa per l'affitto o per la vendita!
Valuta gratis
Altri annunci simili
Appartamento in affitto in Viale Piave 29 a Milano
Viale Piave 29, in un palazzo vecchia Milano completamente ristrutturato, appartamento di mq. 105...
€ 2.500
3
locali
105 ㎡
superficie
2
bagni
a
a
a
a
a
Annunci immobiliari nella stessa zona
Comune di Milano:
Affitto Appartamenti Milano
|
Agenzie immobiliari Milano
|
Provincia di Milano:
Affitto Appartamenti Milano
|
Agenzie immobiliari Milano
|
Email
Password
Ricordami
Registrati adesso
Sei una agenzia?
Password dimenticata?