ioaffitto.it TROVA casa. VIVI SEMPLICE.
Nuova ricerca
Pubblica annuncio
Annunci sponsorizzati
Agenzie
Valutazione-immobile
Servizi
Luce Gas Fibra
Mutui
Finanziamenti
Ricerca Internazionale
Servizi web
Servizio partecipazione asta
Pubblica annuncio
Accedi
Nuovo
1/10
2/10
3/10
4/10
5/10
6/10
7/10
8/10
9/10
10/10
10
Foto
1
planimetria
Appartamento in affitto in Via Calvi a Mantova
€ 1.000,00
al mese
4
locali
2
bagni
160
mq
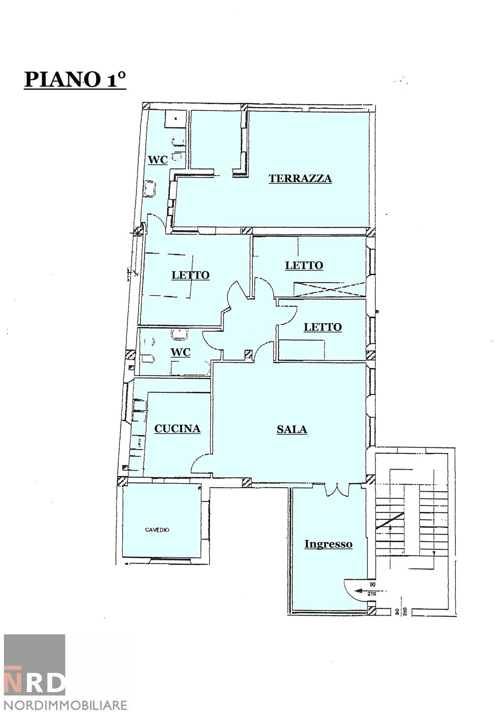
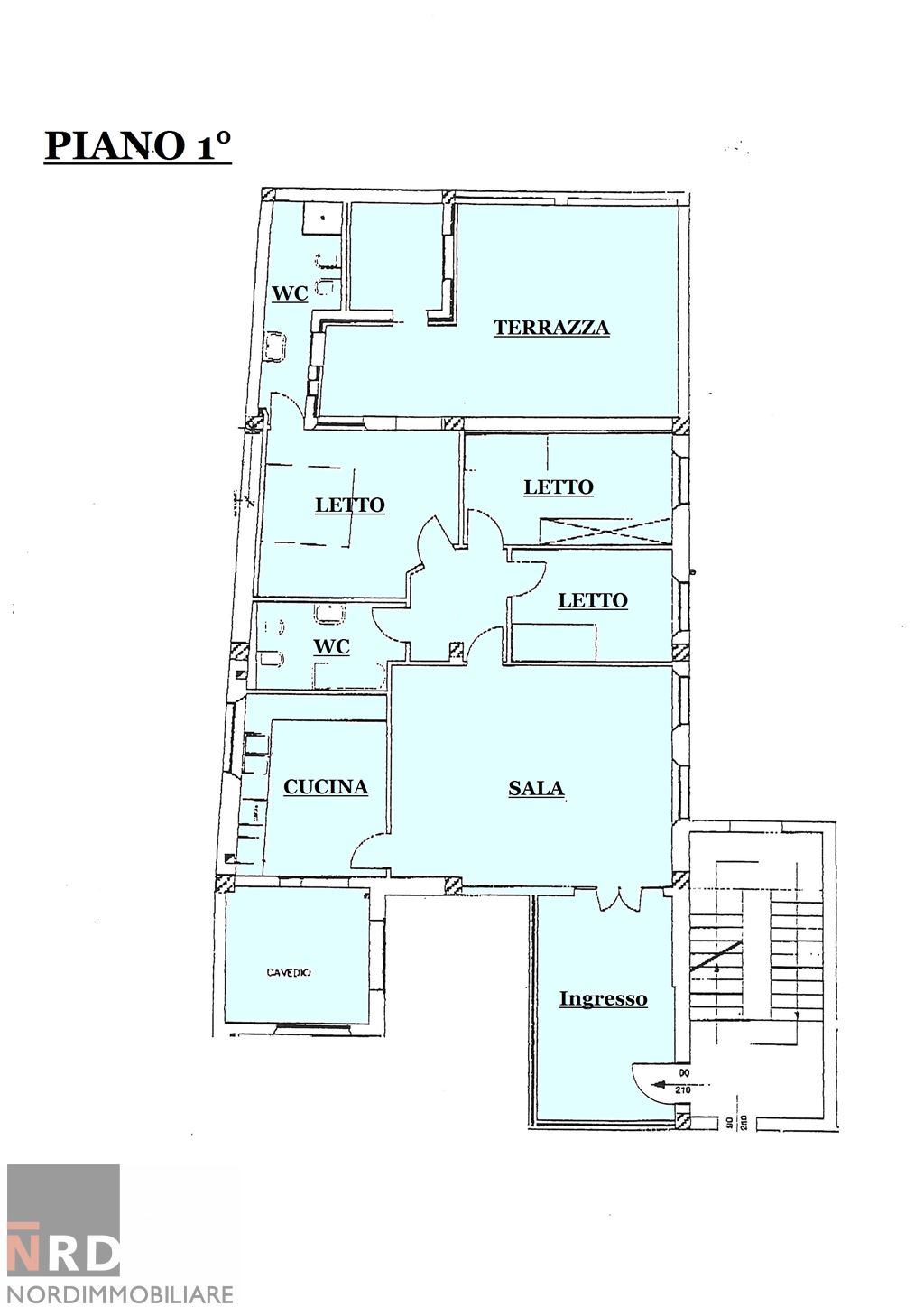
Elegante Quadrilocale NON Arredato
Rif 7516 Centro Storico: all'Interno di un elegante contesto condominiale proponiamo in affitto l'ampio quadrilocale NON arredato. L'appartamento presenza ampi spazi abitativi divisi tra ZONA GIORNO con l'ingresso, l'ampio soggiorno /zona pranzo, la cucina abitabile con piccolo cavedio esterno, bagno con vasca e ZONA NOTTE avente una camera singola, una camera 3/4, la camera padronale con bagno privato e terrazzo abitabile. In ogni ambiente serramenti e porte dai toni chiari, pavimenti in parquet. Tutte le utenze sono autonome e gli ambienti climatizzati. A completare l'immobile è il garage privato.
SOLO REFERENZIATISSIMI Richiesti contratti di Lavoro a Tempo Indeterminato (o contratti aziendali). NO Contratti Brevi /Transitori.
Si precisa che le foto con gli arredi sono state create con AI solo come esempio
Per Informazioni/ appuntamenti lasciateci il vostro Recapito telefonico vi ricontatteremo noi quanto prima per organizzarvi una Visita. NORDIMMOBILIARE MANTOVA sas C. so Vittorio Emanuele 33- 46100 Mantova - Tel:0376329977 I Nostri Uffici sono aperti ad Lun - Ven 9/12.30 - 15/19 - Sabato: solo su Appuntamento.
RIFERIMENTO ANNUNCIO
7516
DATA ANNUNCIO
27 novembre 2025
DATA ULTIMO AGGIORNAMENTO
27 novembre 2025
CONTRATTO
Affitto
TIPOLOGIA
Appartamento
SUPERFICIE
160 m²
locali
4
PIANO
1°
TIPO PROPRIETA'
Standard
ALTRE CARATTERISTICHE'
balcone disponibile
garage
giardino comunale
giardino privato
riscaldamento autonomo
cucina abitabile
Costi
€ 1.000,00
al mese
Mappa della zona dell'immobile
Ingrandisci mappa
Segnala un problema
Servizi per te
Inserzionista
Nordimmobiliare Mantova Sas
Vai al sito web
Codice annuncio:
7516
Riferimento immobile:
7516
Mostra numero
Tel: 0376329977
Invia email
Motivo contatto
Appuntamento
Più informazioni
Richiesta di contatto
Più foto e materiali
Nome e cognome*
Email*
Cellulare
Messaggio*
ATTENZIONE ALLE TRUFFE
NON ANTICIPARE MAI denaro su carte ricaricabili, conti correnti esteri, money transfer o altri sistemi di pagamento
Accettazione*
Ho letto, sono maggiorenne e accetto
condizioni
,
privacy
e
Consigli antitruffa
Invia
Chiama
Contatta
Visita
Richiedi visita
Scopri subito quanto vale la tua casa per l'affitto o per la vendita!
Valuta gratis
Altri annunci simili
Appartamento in affitto a Mantova
???? Annuncio per conto di un' amica..???? Offro in affitto appartamento signorile, non arreda...
€ 900
6
locali
115 ㎡
superficie
2
bagni
Appartamento in affitto in Piazza L.B.Alberti 000 a Mantova
Nella prestigiosa P.zza L.B.Alberti a Mantova, in un contesto condominiale di poche unità, la nos...
€ 1.000
5
locali
90 ㎡
superficie
1
bagni
a
a
Appartamento in affitto in Via Piave 2 a Mantova
Per dipendenti pubblici Zona Esselunga ospedale Temporaneo Cauzione Busta paga
€ 800
3
locali
80 ㎡
superficie
1
bagni
a
Annunci immobiliari nella stessa zona
Comune di Mantova:
Affitto Case Mantova
|
Affitto Appartamenti Mantova
|
Agenzie immobiliari Mantova
|
Provincia di Mantova:
Affitto Case Mantova
|
Affitto Appartamenti Mantova
|
Agenzie immobiliari Mantova
|
Email
Password
Ricordami
Registrati adesso
Sei una agenzia?
Password dimenticata?