ioaffitto.it TROVA casa. VIVI SEMPLICE.
Nuova ricerca
Pubblica annuncio
Annunci sponsorizzati
Agenzie
Valutazione-immobile
Servizi
Luce Gas Fibra
Mutui
Finanziamenti
Ricerca Internazionale
Servizi web
Servizio partecipazione asta
Pubblica annuncio
Accedi
Nuovo
1/9
2/9
3/9
4/9
5/9
6/9
7/9
8/9
9/9
9
Foto
1
planimetria
Appartamento in affitto in via Quaranta 40 a Milano
€ 1.250,00
al mese
2
locali
1
bagni
55
mq
Gentilmente inviaci la tua richiesta in forma scritta attraverso il portale immobiliare, dal quale stai visualizzando questo annuncio: in questo modo, potremo risponderti prima ed offrirti un servizio più efficiente. Grazie per la comprensione.
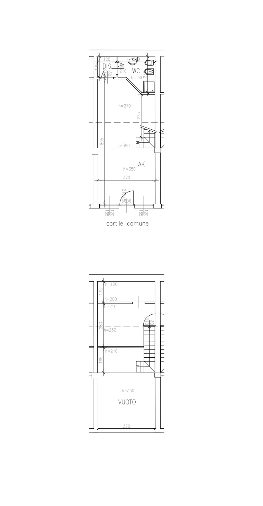
In Via Bernardo Quaranta 40, in zona Ripamonti - Fondazione Prada, proponiamo in affitto un bilocale ristrutturato di 55 mq, posto al primo terra di uno stabile di recente costruzione (circa 2008), ben mantenuto.
L’appartamento è così distribuito:
- soggiorno con cucina a vista
- bagno cieco con box doccia e angolo lavanderia
- scalinata interna che conduce alla zona notte
- camera con cabina armadio
- Possibilità di prendere in locazione anche un box di 15m2 ad un prezzo supplementare di € 100
- L’immobile è disponibile dal 20 marzo in poi. Il canone mensile esposto è comprensivo di spese condominiali. Il deposito cauzionale richiesto è di circa 2.800€ (3 mesi di solo canone).
Immobile completamente ristrutturato, con ambienti funzionali e ben organizzati.
Riscaldamento centralizzato ad aria.
Posizione strategica: la zona Ripamonti / Fondazione Prada è oggi una delle aree più dinamiche e in crescita di Milano, apprezzata per il perfetto equilibrio tra contesto residenziale e servizi urbani. La vicinanza alla Fondazione Prada, all’Università Bocconi e a importanti progetti di riqualificazione rende l’immobile particolarmente interessante sia come abitazione principale sia come investimento.
Collegamenti e servizi:
Ottimi collegamenti con tram e autobus verso il centro città (Duomo) e le principali linee metropolitane. Nelle immediate vicinanze si trovano supermercati, negozi di quartiere, bar e ristoranti. A breve distanza l’area del Villaggio Olimpico in fase di sviluppo, che porterà nuovi servizi, infrastrutture e spazi verdi.
RIFERIMENTO ANNUNCIO
AF40
DATA ANNUNCIO
25 febbraio 2026
DATA ULTIMO AGGIORNAMENTO
25 febbraio 2026
CONTRATTO
Affitto
TIPOLOGIA
Appartamento
SUPERFICIE
55 m²
locali
2
PIANO
Terra
TIPO PROPRIETA'
Standard
ALTRE CARATTERISTICHE'
balcone disponibile
garage
giardino comunale
giardino privato
riscaldamento centralizzato
cucina a vista
terrazzo disponibile
Costi
€ 1.250,00
al mese
Mappa della zona dell'immobile
Ingrandisci mappa
Segnala un problema
Servizi per te
Inserzionista
META IMMOBILIARE Srl
Vai al sito web
Codice annuncio:
af40
Riferimento immobile:
AF40
Mostra numero
Tel: 025278343
Invia email
Motivo contatto
Appuntamento
Più informazioni
Richiesta di contatto
Più foto e materiali
Nome e cognome*
Email*
Cellulare
Messaggio*
ATTENZIONE ALLE TRUFFE
NON ANTICIPARE MAI denaro su carte ricaricabili, conti correnti esteri, money transfer o altri sistemi di pagamento
Accettazione*
Ho letto, sono maggiorenne e accetto
condizioni
,
privacy
e
Consigli antitruffa
Invia
Chiama
Contatta
Visita
Richiedi visita
Scopri subito quanto vale la tua casa per l'affitto o per la vendita!
Valuta gratis
Altri annunci simili
Appartamento in affitto in Via Tertulliano 57 a Milano
AFFITTO TRILOCALE ZONA TERTULLIANO DISPONIBILE DA SUBITO PER STUDENTI E LAVORATORI (NO AGENZIE) ...
€ 1.300
3
locali
60 ㎡
superficie
1
bagni
Appartamento in affitto in piazzale bacone 7a a Milano
LIBERO E VISIONABILE DA SUBITO - AFFITTI TRANSITORI MAX 18 MESI In una delle zone più ricerca...
€ 1.400
2
locali
40 ㎡
superficie
1
bagni
Appartamento in affitto in Via Polibio 3 a Milano
In affitto in via Polibio 3, nel cuore del quartiere Washington a Milano, un appartamento di 67 m...
€ 1.350
2
locali
67 ㎡
superficie
1
bagni
Appartamento in affitto in via Ripa di Porta Ticinese 97 a Milano
Milano, Ripa di Porta Ticinese. Proponiamo in affitto appartamento arredato di 2 locali (56mq) si...
€ 1.200
2
locali
56 ㎡
superficie
1
bagni
Appartamento in affitto in Via Muzio Attendolo detto Sforza 11 a Milano
Gentilmente inviaci la tua richiesta in forma scritta attraverso il portale dal quale stai visual...
€ 1.200
2
locali
51 ㎡
superficie
1
bagni
Appartamento in affitto 3 a Milano
Benvenuti nel cuore di Milano!\nIl nostro accogliente appartamento gode di una posizione senza pa...
€ 1.200
2
locali
56 ㎡
superficie
1
bagni
Annunci immobiliari nella stessa zona
Comune di Milano:
Affitto Case Milano
|
Affitto Appartamenti Milano
|
Agenzie immobiliari Milano
|
Provincia di Milano:
Affitto Case Milano
|
Affitto Appartamenti Milano
|
Agenzie immobiliari Milano
|
Email
Password
Ricordami
Registrati adesso
Sei una agenzia?
Password dimenticata?