ioaffitto.it TROVA casa. VIVI SEMPLICE.
Nuova ricerca
Pubblica annuncio
Annunci sponsorizzati
Agenzie
Valutazione-immobile
Servizi
Luce Gas Fibra
Mutui
Finanziamenti
Ricerca Internazionale
Servizi web
Servizio partecipazione asta
Pubblica annuncio
Accedi
Nuovo
1/5
2/5
3/5
4/5
5/5
5
Foto
0
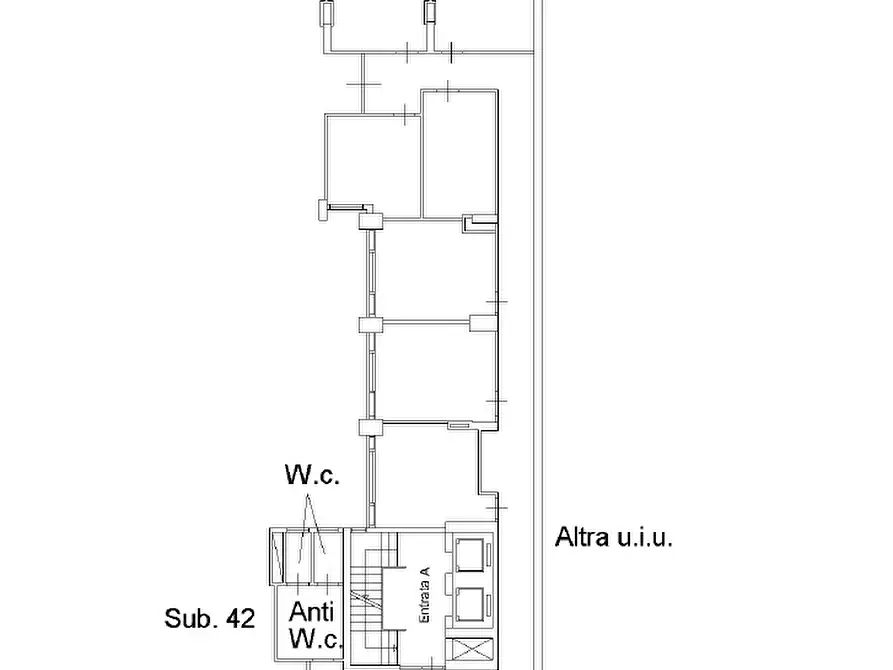
planimetria
Ufficio in affitto in Via Mariano Stabile a Palermo
€ 5.400,00
al mese
19
locali
5
bagni
550
mq
In Via Mariano Stabile, a due passi da Via Ruggero Settimo ,Situato in una delle vie più prestigiose e centrali di Palermo, proponiamo in locazione un ampio ufficio di rappresentanza di 550 mq circa, l’immobile è dotato di accesso senza barriere architettoniche, con ascensore a norma e servizi adeguati per garantire l’ingresso e l’utilizzo a persone con mobilità ridotta; più precisamente l'ufficio è composto da diciannove stanze spaziose, 5 bagni con antibagni e tre ripostigli; è dotato inoltre di ampie vetrine che garantiscono una notevole luminosità naturale e un'ottima visibilità sulla strada. Questo ufficio offre un ambiente moderno e funzionale, ideale per attività aziendali che richiedono visibilità, comodità e accesso a tutti i principali servizi della città. L'immobile, posto al piano 4°di un elegante edificio con servizio di portineria, due scale e 4 ascensori, oltre 3 posti auto coperti di pertinenza esclusiva.
L'immobile si presenta in ottimo stato di manutenzione.
L'ufficio si trova in una zona altamente commerciale e ben servita da negozi, ristoranti e mezzi pubblici, a pochi passi dal centro storico di Palermo. L’ubicazione è ideale per aziende che desiderano essere nel cuore pulsante della città, con un comodo accesso alla rete viaria e alle principali attrazioni.
Per informazioni e/o fissare un appuntamento contattaci allo 091*78*28* 123 anche tramite Whatsapp.
RIFERIMENTO ANNUNCIO
P059/25
DATA ANNUNCIO
22 gennaio 2026
DATA ULTIMO AGGIORNAMENTO
22 gennaio 2026
CONTRATTO
Affitto
TIPOLOGIA
Ufficio
SUPERFICIE
550 m²
locali
19
PIANO
4°
TIPO PROPRIETA'
Standard
ALTRE CARATTERISTICHE'
riscaldamento autonomo
Costi
€ 5.400,00
al mese
Mappa della zona dell'immobile
Ingrandisci mappa
Segnala un problema
Servizi per te
Inserzionista
Punto Casa e Arco Immobiliare
Vai al sito web
Codice annuncio:
p059
Riferimento immobile:
P059/25
Mostra numero
Tel: 0917828123 / 091332280
Invia email
Motivo contatto
Appuntamento
Più informazioni
Richiesta di contatto
Più foto e materiali
Nome e cognome*
Email*
Cellulare
Messaggio*
ATTENZIONE ALLE TRUFFE
NON ANTICIPARE MAI denaro su carte ricaricabili, conti correnti esteri, money transfer o altri sistemi di pagamento
Accettazione*
Ho letto, sono maggiorenne e accetto
condizioni
,
privacy
e
Consigli antitruffa
Invia
Chiama
Contatta
Visita
Richiedi visita
Scopri subito quanto vale la tua casa per l'affitto o per la vendita!
Valuta gratis
Altri annunci simili
Annunci immobiliari nella stessa zona
Comune di Palermo:
Affitto Attività/immobili commerciali Palermo
|
Affitto Uffici Palermo
|
Agenzie immobiliari Palermo
|
Provincia di Palermo:
Affitto Attività/immobili commerciali Palermo
|
Affitto Uffici Palermo
|
Agenzie immobiliari Palermo
|
Email
Password
Ricordami
Registrati adesso
Sei una agenzia?
Password dimenticata?