Villa in vendita in Via C. Armellini 11 a Pantigliate
€ 590.000,00
prezzo di vendita
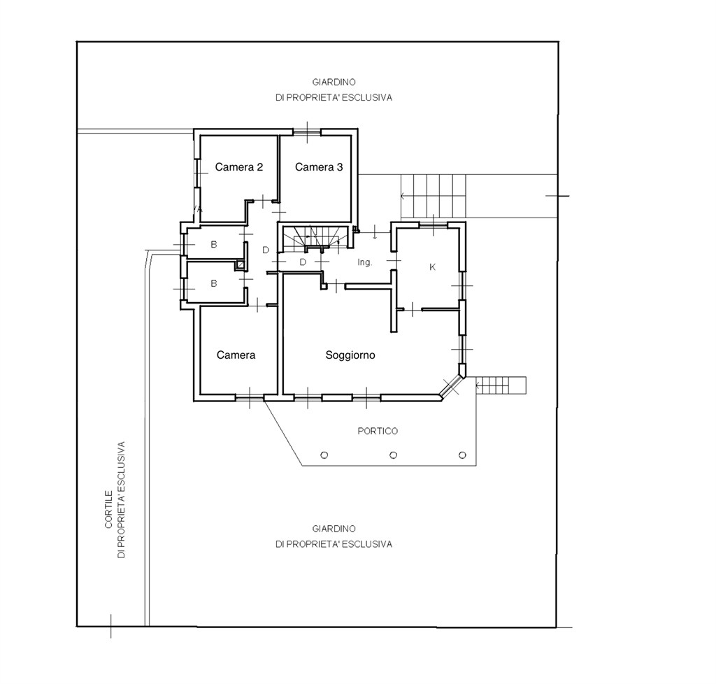
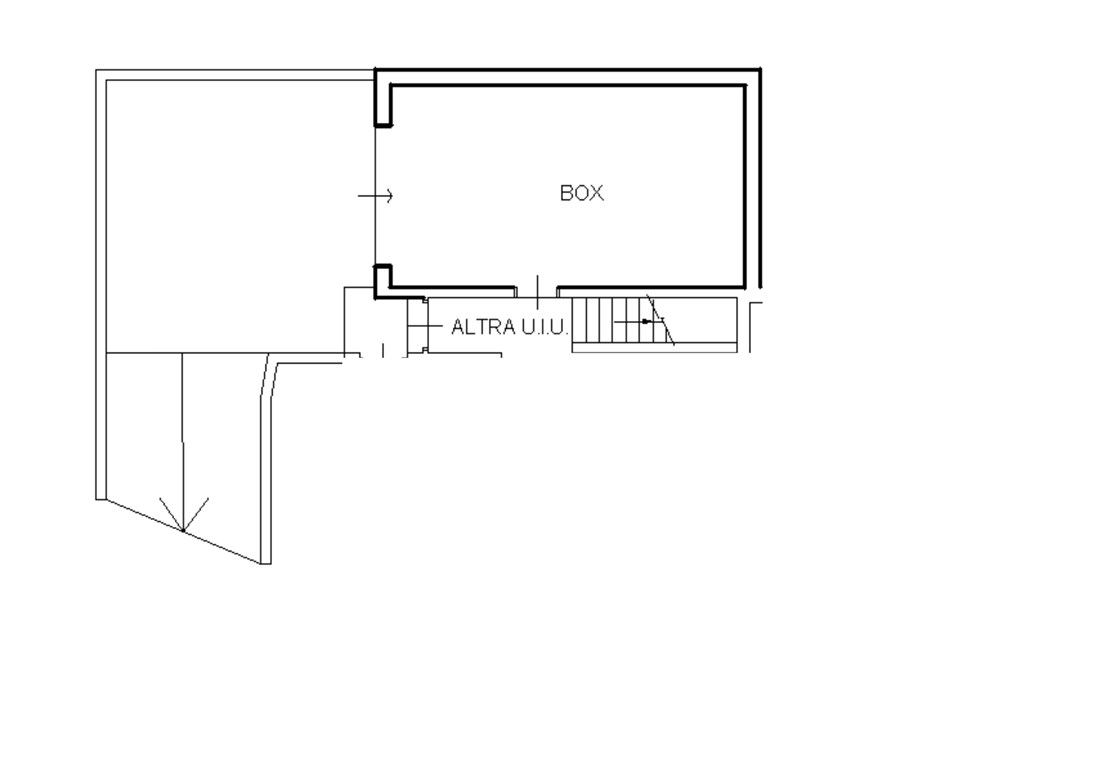
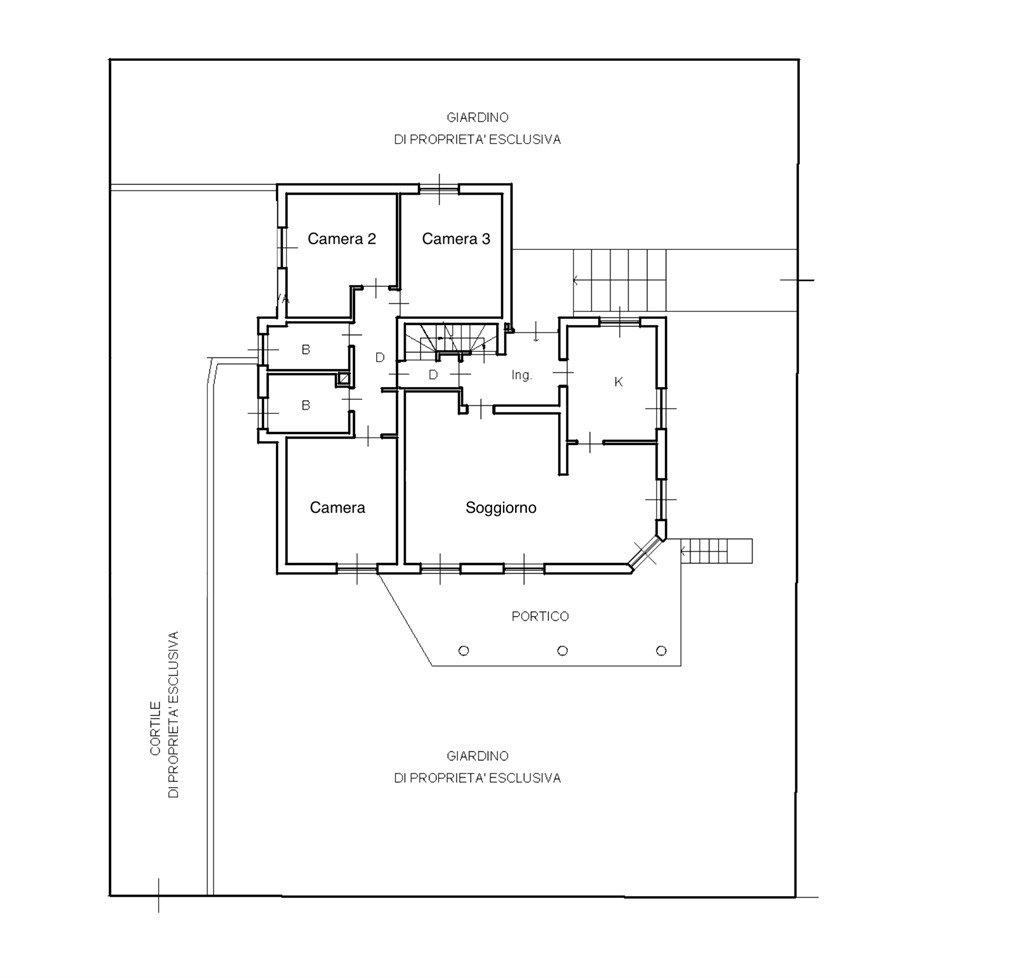
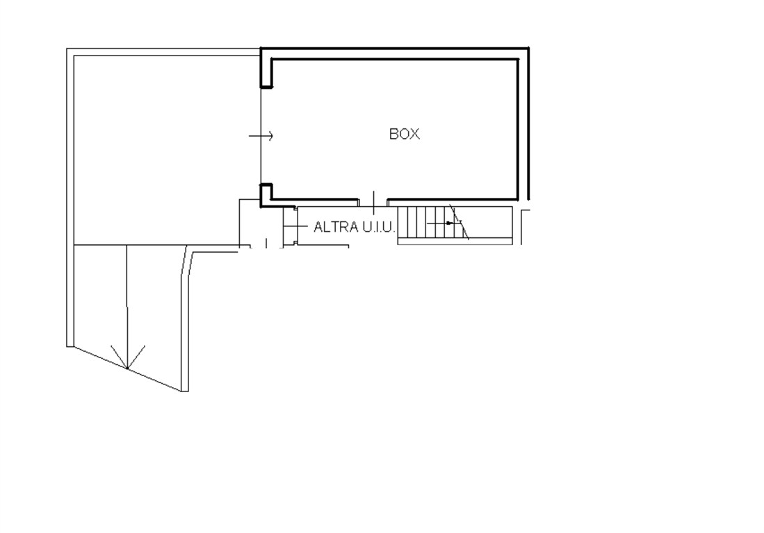
In via Armellini 11 a Pantigliate proponiamo in vendita una villa singola di 238 m² con box auto di 34 m² e un giardino di 450 m² che circonda la proprietà su tutti e quattro i lati.
Costruita alla fine degli anni ’70 con grande cura, la casa si presenta leggermente rialzata rispetto al piano strada, garantendo un’ottima esposizione solare e al tempo stesso una privacy totale, protetta dalla siepe perimetrale.
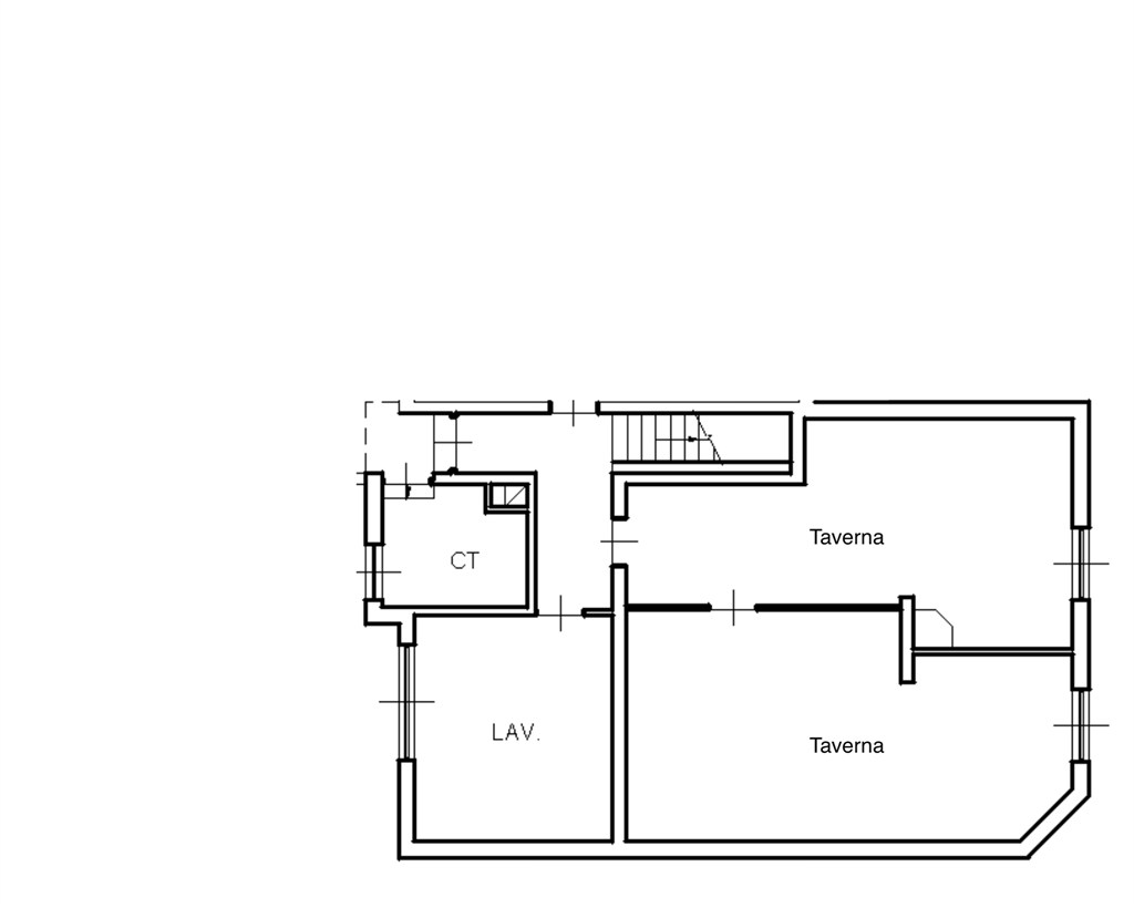
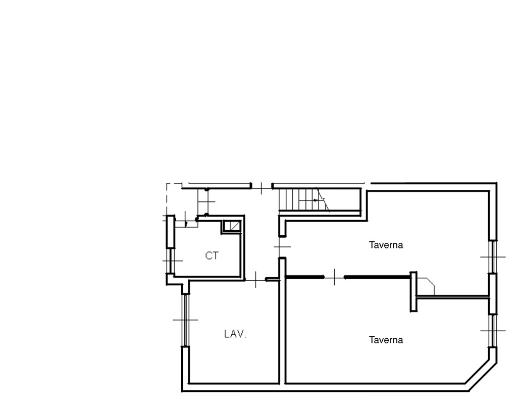
Il contesto è esclusivo: un quartiere composto unicamente da ville, dove raramente si trovano immobili disponibili perché chi vi abita difficilmente decide di separarsene. Gli interni sono luminosi e ben distribuiti: il soggiorno doppio con camino si apre sul patio esterno pranzabile, la cucina è ampia e con doppia esposizione, mentre al piano superiore una stanza oggi aperta sulla zona living può facilmente diventare una quarta camera. La zona notte ospita tre camere matrimoniali e due bagni finestrati. Al piano semi-interrato troviamo una spaziosa taverna suddivisa in due ambienti con secondo camino, oltre a lavanderia e locale tecnico.
La villa non offre solo comfort e spazi ampi, ma anche una posizione strategica. Nelle immediate vicinanze si trovano scuole, bar e servizi di quartiere, oltre al Paullese Center, un centro commerciale con supermercati, negozi e punti di ristoro. Tutto ciò che serve per la vita quotidiana è a portata di mano, senza rinunciare alla tranquillità e alla riservatezza che questa abitazione garantisce.
Questa proprietà rappresenta un’opportunità rara: una villa indipendente immersa nella quiete, con spazi versatili e ben distribuiti, in un quartiere esclusivo e servito.
IMPORTANTE: Se per acquistare questo immobile, devi o vuoi prima vendere il tuo, fallo presente al consulente che ti seguirà, così potrà aiutarti anche in questo importante passo.
Meta Immobiliare - Professionisti fuori dal comune” offre una valutazione garantita con il valore di mercato e quello massimo realizzabile in tempi precisi. Il tutto senza margine di errore.
Le indicazioni (e foto) riportate sono puramente indicative e non contrattualmente vincolanti, la presente scheda non ha valenza contrattuale e non impegna in alcun modo la presente società.