ioaffitto.it TROVA casa. VIVI SEMPLICE.
Nuova ricerca
Pubblica annuncio
Annunci sponsorizzati
Agenzie
Valutazione-immobile
Servizi
Luce Gas Fibra
Mutui
Finanziamenti
Ricerca Internazionale
Servizi web
Servizio partecipazione asta
Pubblica annuncio
Accedi
1/4
2/4
3/4
4/4
4
Foto
0
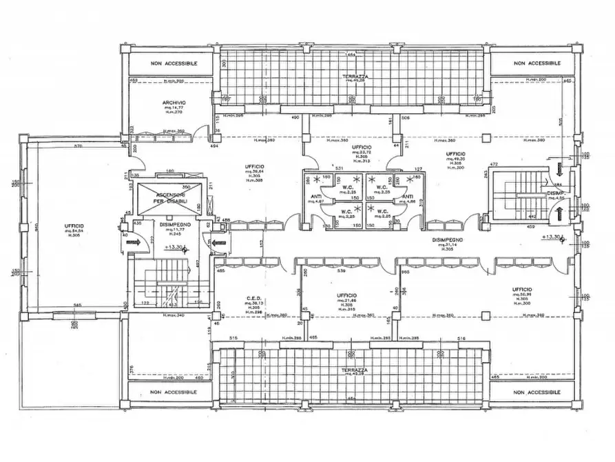
planimetria
Ufficio in affitto in CORSO CAVOUR a Cesena
€ 3.400,00
al mese
4
locali
3
bagni
340
mq
A Cesena a pochi passi dalla stazione, affittiamo ufficio di 340 mq in complesso direzionale già suddiviso in 10 vani.
L'immobile si presenta in ottime condizioni e con tutti impianti a norma
Richiesta 3.400 euro/mese
per info Roberto 3486440700
SONO SPECIALIZZATO IN IMMOBILI COMMERCIALI
--- capannoni, uffici, negozi ma anche attività attive o inattive ---
Chiamatemi direttamente per sottoporvi panoramica di immobili idonei.
Oppure scrivetemi a info@passeriniimmobiliare.com le seguenti informazioni:
- attività o uso che si intende svolgere
- tipologia di immobile
- mq necessari di interno specificando quanti uffici e altri vani
- mq di esterno se necessari (corte privata o fronte strada di passaggio..)
- zona ideale
- budget massimo disponibile
Vi contatterò quanto prima con una panoramica di proposte
Grazie
Ape D --- annuncio pubblicato con GESTIONALEIMMOBILIARE.it
RIFERIMENTO ANNUNCIO
gestimm-1892146
DATA ANNUNCIO
2 settembre 2024
DATA ULTIMO AGGIORNAMENTO
2 settembre 2024
CONTRATTO
Affitto
TIPOLOGIA
Ufficio
SUPERFICIE
340 m²
locali
4
PIANO
Non disponibile
TIPO PROPRIETA'
Standard
ALTRE CARATTERISTICHE'
aria condizionata
soffitta / mansarda
cantina
garage
riscaldamento autonomo
cucina presente
cucina abitabile
stato di manutenzione ottimo
taverna
Costi
€ 3.400,00
al mese
Classe energetica
D
a+
a
b
c
d
e
f
g
Mappa della zona dell'immobile
Ingrandisci mappa
Segnala un problema
Servizi per te
Inserzionista
PASSERINI IMMOBILIARE
Gabriele Passerini
Vai al sito web
Codice annuncio:
1892146
Mostra numero
Tel: 0547/24743
Invia email
Motivo contatto
Appuntamento
Più informazioni
Richiesta di contatto
Più foto e materiali
Nome e cognome*
Email*
Cellulare
Messaggio*
ATTENZIONE ALLE TRUFFE
NON ANTICIPARE MAI denaro su carte ricaricabili, conti correnti esteri, money transfer o altri sistemi di pagamento
Accettazione*
Ho letto, sono maggiorenne e accetto
condizioni
,
privacy
e
Consigli antitruffa
Invia
Chiama
Contatta
Visita
Richiedi visita
Scopri subito quanto vale la tua casa per l'affitto o per la vendita!
Valuta gratis
Altri annunci simili
Annunci immobiliari nella stessa zona
Comune di Cesena:
Affitto Attività/immobili commerciali Cesena
|
Affitto Uffici Cesena
|
Agenzie immobiliari Cesena
|
Provincia di Forlì-Cesena:
Affitto Attività/immobili commerciali Forlì-Cesena
|
Affitto Uffici Forlì-Cesena
|
Agenzie immobiliari Forlì-Cesena
|
Email
Password
Ricordami
Registrati adesso
Sei una agenzia?
Password dimenticata?