ioaffitto.it TROVA casa. VIVI SEMPLICE.
Nuova ricerca
Pubblica annuncio
Annunci sponsorizzati
Agenzie
Valutazione-immobile
Servizi
Luce Gas Fibra
Mutui
Finanziamenti
Ricerca Internazionale
Servizi web
Servizio partecipazione asta
Pubblica annuncio
Accedi
In affitto
/
Ufficio
/
Vicenza (VI)
1 di 3
1/11
2/11
3/11
4/11
5/11
6/11
7/11
8/11
9/11
10/11
11/11
11
Foto
0
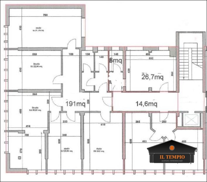
planimetria
Ufficio in affitto in san felice a Vicenza
€ 2.200,00
al mese
9
locali
3
bagni
290
mq
VICENZA - Stazione: In strada di forte passaggio, comodo ai mezzi pubblici e al centro storico, con ampia possibilità di parcheggio, al primo piano servito da ascensore. Luminoso UFFICIO/STUDIO di mq.290 c.ca comm., in buon e ben abitato stabile, composto da ampio ingresso/sala d'attesa/reception, 8 uffici/studi, una sala riunioni, 3 servizi, un ripostiglio; al piano terra 2 posti auto coperti; al piano interrato 2 cantine. L'ufficio essendo tutto su un unico piano può essere diviso in più uffici ognuno con il proprio ingresso adatto a più professionisti. Termo centralizzato contabilizzato -CONSEGNA DA CONCORDARE- Edificio in classe 'F' - €.2.200,00 --- annuncio pubblicato con GESTIONALEIMMOBILIARE.it
RIFERIMENTO ANNUNCIO
gestimm-1981495
DATA ANNUNCIO
24 gennaio 2025
DATA ULTIMO AGGIORNAMENTO
24 gennaio 2025
CONTRATTO
Affitto
TIPOLOGIA
Ufficio
SUPERFICIE
290 m²
locali
9
PIANO
3
TOTALE PIANI EDIFICIO
3
TIPO PROPRIETA'
Standard
ALTRE CARATTERISTICHE'
soffitta / mansarda
cantina
impianto elettrico presente e a norma
garage
doppio garage
cucina presente
cucina abitabile
ascensore
stato di manutenzione buono
adsl
taverna
Costi
€ 2.200,00
al mese
Anno di costruzione
1970
Classe energetica
F
a+
a
b
c
d
e
f
g
Mappa della zona dell'immobile
Ingrandisci mappa
Segnala un problema
Servizi per te
Inserzionista
Agenzia Il Tempio LG di Luca Galzignato
Luca Galzignato
Vai al sito web
Codice annuncio:
1981495
Mostra numero
Tel: 0444327108
Invia email
Motivo contatto
Appuntamento
Più informazioni
Richiesta di contatto
Più foto e materiali
Nome e cognome*
Email*
Cellulare
Messaggio*
ATTENZIONE ALLE TRUFFE
NON ANTICIPARE MAI denaro su carte ricaricabili, conti correnti esteri, money transfer o altri sistemi di pagamento
Accettazione*
Ho letto, sono maggiorenne e accetto
condizioni
,
privacy
e
Consigli antitruffa
Invia
Chiama
Contatta
Visita
Richiedi visita
Scopri subito quanto vale la tua casa per l'affitto o per la vendita!
Valuta gratis
Altri annunci simili
Ufficio in affitto in Viale Sant'Agostino a Vicenza
UFFICIO PIANO TERRA DI 253 MQ COMMERCIALI IN LOCAZIONE A VICENZA OVEST, ZONA SANT'AGOSTINO, POSTI...
€ 2.000
7
locali
253 ㎡
superficie
3
bagni
Ufficio in affitto in VIALE DEGLI SCLAIGERI a Vicenza
VICENZA RIF. 120FUTURAM.MAT PER INFO 0444/310220 - 3929183796 Vicenza in contesto direzionale...
€ 2.200
2
locali
348 ㎡
superficie
2
bagni
Ufficio in affitto in Strada Padana Verso Verona 57 a Vicenza
Proponiamo in locazione un ufficio di 250mq situato al secondo piano di una palazzina ad uso escl...
€ 2.300
250 ㎡
superficie
Ufficio in affitto in via del progresso a Vicenza
VICENZA RIF.433MAT.FUTURAM TEL 0444310220 - 3929183796 VICENZA IN ZONA SERVITA SI AFFITTA IMMOB...
€ 2.200
290 ㎡
superficie
2
bagni
Ufficio in affitto in strada padana verso padova 187 a Vicenza
VICENZA - EST: al primo e secondo piano serviti da numerosi ascensori di un grande complesso comm...
€ 2.050
324 ㎡
superficie
1
bagni
Ufficio in affitto in Viale Serenissima a Vicenza
ZONA EST - In posizione comodissima all'autostrada e alla tangenziale, proponiamo moderno ufficio...
€ 2.300
1
locali
255 ㎡
superficie
1
bagni
Annunci immobiliari nella stessa zona
Comune di Vicenza:
Affitto Attività/immobili commerciali Vicenza
|
Affitto Uffici Vicenza
|
Agenzie immobiliari Vicenza
|
Provincia di Vicenza:
Affitto Attività/immobili commerciali Vicenza
|
Affitto Uffici Vicenza
|
Agenzie immobiliari Vicenza
|
Email
Password
Ricordami
Registrati adesso
Sei una agenzia?
Password dimenticata?