ioaffitto.it TROVA casa. VIVI SEMPLICE.
Scopri subito quanto vale la tua casa per l'affitto o per la vendita!
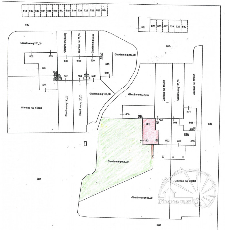
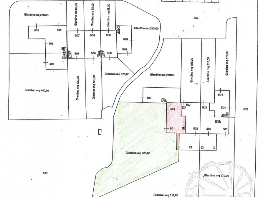
Rustico / casale in vendita a Empoli
Rif. 1336 - Castelfiorentino versante Montaione - Vendesi fabbricato ex-colonico libero su quattr...
€ 380.000

20
locali

400 ㎡
superficie

3
bagni
Annunci immobiliari nella stessa zona