ioaffitto.it TROVA casa. VIVI SEMPLICE.
Nuova ricerca
Pubblica annuncio
Annunci sponsorizzati
Agenzie
Valutazione-immobile
Servizi
Luce Gas Fibra
Mutui
Finanziamenti
Ricerca Internazionale
Servizi web
Servizio partecipazione asta
Pubblica annuncio
Accedi
In affitto
/
Capannone industriale
/
Buccinasco (MI)
1 di 0
1/10
2/10
3/10
4/10
5/10
6/10
7/10
8/10
9/10
10/10
10
Foto
0
planimetria
Capannone industriale in affitto in Via resistenza a Buccinasco
€ 3.000,00
al mese
-
locali
-
bagni
413
mq
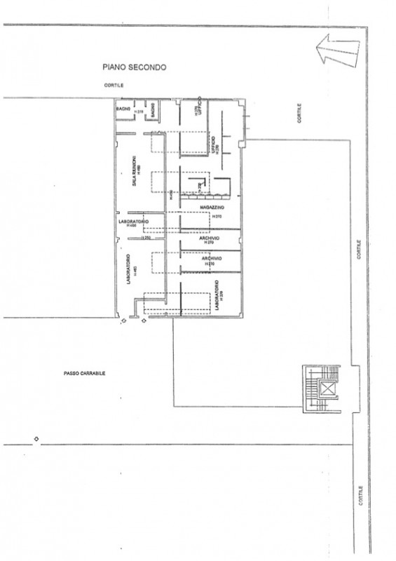
Affittasi a Buccinasco in Zona Commerciale servita da linea autobus e vicina alla tangenziale ovest, capannone/laboratorio e uffici posto al secondo piano con accesso tramite rampa oltre ad un accesso pedonale frontale con ascensore, sono previsti posti auto riservati all'esterno.
L'immobile è in ottimo stato di manutenzione, luminoso, dotato di riscaldamento e condizionamento, impianto elettrico e di illuminazione ed è composto da laboratori, uffici, sala riunioni e zona archivio suddiviso con eleganti pareti mobili oltre a due bagni per un totale di mq 413 c.ca
Il prezzo richiesto mensile è di € 3.000 + € 250 spese c.ca
Il presente annuncio ha valore puramente indicativo e non costituisce elemento contrattuale.
STUDIOTARA.IT si rende disponibile ad una valutazione gratuita del Vostro immobile.
Per qualsiasi informazioni chiamateci allo 02/36557365 - 334/2334661 --- annuncio pubblicato con GESTIONALEIMMOBILIARE.it
RIFERIMENTO ANNUNCIO
gestimm-2928626
DATA ANNUNCIO
7 febbraio 2025
DATA ULTIMO AGGIORNAMENTO
7 febbraio 2025
CONTRATTO
Affitto
TIPOLOGIA
Capannone industriale
SUPERFICIE
413 m²
PIANO
2
TOTALE PIANI EDIFICIO
2
TIPO PROPRIETA'
Standard
ALTRE CARATTERISTICHE'
aria condizionata
soffitta / mansarda
cantina
garage
riscaldamento autonomo
cucina presente
cucina abitabile
stato di manutenzione buono
taverna
Costi
€ 3.000,00
al mese
Classe energetica
G
a+
a
b
c
d
e
f
g
Mappa della zona dell'immobile
Ingrandisci mappa
Segnala un problema
Servizi per te
Inserzionista
STUDIOTARA SRL
Alessandro Tarantola
Vai al sito web
Codice annuncio:
2928626
Mostra numero
Tel: 0236557365
Invia email
Motivo contatto
Appuntamento
Più informazioni
Richiesta di contatto
Più foto e materiali
Nome e cognome*
Email*
Cellulare
Messaggio*
ATTENZIONE ALLE TRUFFE
NON ANTICIPARE MAI denaro su carte ricaricabili, conti correnti esteri, money transfer o altri sistemi di pagamento
Accettazione*
Ho letto, sono maggiorenne e accetto
condizioni
,
privacy
e
Consigli antitruffa
Invia
Chiama
Contatta
Visita
Richiedi visita
Scopri subito quanto vale la tua casa per l'affitto o per la vendita!
Valuta gratis
Altri annunci simili
Capannone industriale in affitto a Gudo Visconti
Capannone in affitto a Gudo Visconti Capannone industriale con uffici di mq. 900 più area esterna...
€ 3.000
900 ㎡
superficie
Capannone industriale in affitto in VIA ABRUZZI a San Giuliano Milanese
Proponiamo in locazione capannone con uffici di mq 555 ca. cosi' suddivisi: mq 450 ca. di capanno...
€ 3.083
4
locali
555 ㎡
superficie
1
bagni
Capannone industriale in affitto in via Dante Alighieri 85 a Abbiategrasso
Capannone con uffici in affitto a Abbiategrasso Capannone industriale con uffici mq. 700 più area...
€ 3.000
700 ㎡
superficie
Capannone industriale in affitto in largo fratelli cervi 8 a Vimodrone
Capannone con uffici in locazione a Vimodrone Capannone industriale di mq.400 con uffici di rappr...
€ 3.200
400 ㎡
superficie
Capannone industriale in affitto in Via Buonarroti a Cologno Monzese
Cologno Monzese, Via Buonarroti, proponiamo capannone artigianale di 460 mq complessivi, situato ...
€ 3.000
461 ㎡
superficie
Capannone industriale in affitto in Via dell'artgianato a Muggiò
Capannone in locazione a Muggiò Capannone di mq 500 in locazione a Muggiò Proponiamo in locazion...
€ 2.950
500 ㎡
superficie
Annunci immobiliari nella stessa zona
Comune di Buccinasco:
Affitto Attività/immobili commerciali Buccinasco
|
Affitto Capannoni industriali Buccinasco
|
Agenzie immobiliari Buccinasco
|
Provincia di Milano:
Affitto Attività/immobili commerciali Milano
|
Affitto Capannoni industriali Milano
|
Agenzie immobiliari Milano
|
Email
Password
Ricordami
Registrati adesso
Sei una agenzia?
Password dimenticata?