ioaffitto.it TROVA casa. VIVI SEMPLICE.
Logo
1/3
Immagine 1 di Ufficio in vendita  in PIAZZALE DELLA VITTORIA a Forli'
2/3
Immagine 2 di Ufficio in vendita  in PIAZZALE DELLA VITTORIA a Forli'
3/3
Immagine 3 di Ufficio in vendita  in PIAZZALE DELLA VITTORIA a Forli'
Icona foto3 Foto     Icona planimetrie 0 planimetria

Ufficio in vendita in PIAZZALE DELLA VITTORIA a Forli'

€ 480.000,00
prezzo di vendita
4
locali
3
bagni
480
mq
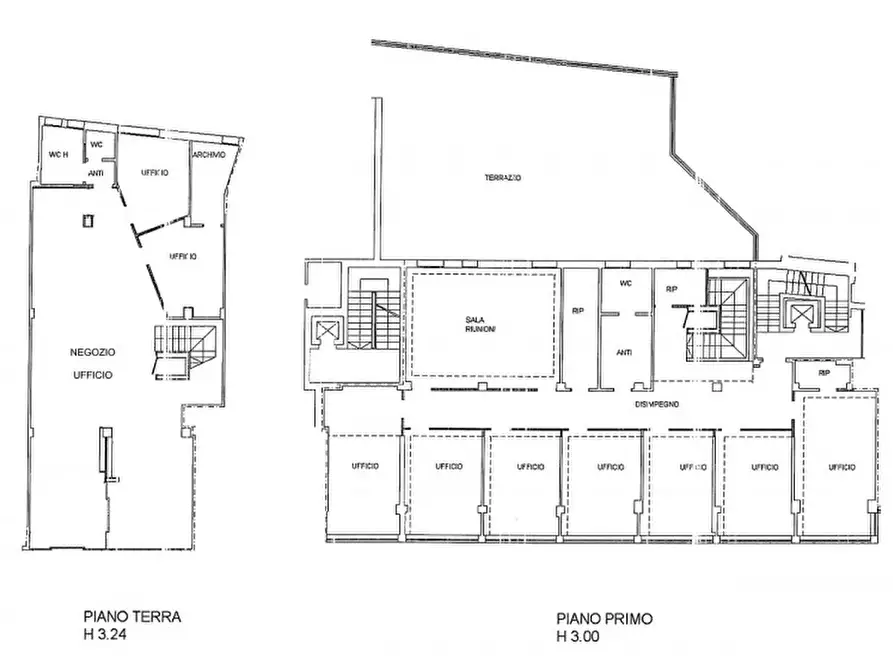
A Forlì, adiacente Piazzale della Vittoria, su strada principale di fortissimo passaggio e ottima visibilità, vendiamo ufficio di totali 480 mq commerciali su 2 piani con ascensore interno e 2 posti auto in garage comune.

L'immobile si presenta in ottime condizioni, molto luminoso, con infissi nuovi, con aria condizionata, con tutti impianti a norma e composto da:
- a piano terra ufficio/negozio di 180 mq con 2 ampie e luminose vetrine
- al piano primo ufficio di 280 mq suddiviso in vani e terrazzo comune
- al piano interrato 2 posti auto in garage comune di totali 20 mq

La parte piano terra può essere riaccatastata facilmente come ufficio o negozio mentre il piano primo più essere trasformato in residenziale.

Richiesta 480.000 euro

Nello stesso complesso e a trattativa separata si dispone di magazzino in interrato di totali 120 mq a 60.000 euro


per info Roberto 3486440700


SONO SPECIALIZZATO IN IMMOBILI COMMERCIALI
--- capannoni, uffici, negozi ma anche attività attive o inattive ---
Chiamatemi direttamente per sottoporvi panoramica di immobili idonei.

Oppure scrivetemi a info@passeriniimmobiliare.com le seguenti informazioni:
- attività o uso che si intende svolgere
- tipologia di immobile
- mq necessari di interno specificando quanti uffici e altri vani
- mq di esterno se necessari (corte privata o fronte strada di passaggio..)
- zona ideale
- budget massimo disponibile

Vi contatterò quanto prima con una panoramica di proposte
Grazie

Ape D --- annuncio pubblicato con GESTIONALEIMMOBILIARE.it
RIFERIMENTO ANNUNCIO
gestimm-2983991
DATA ANNUNCIO
16 maggio 2022
DATA ULTIMO AGGIORNAMENTO
16 maggio 2022
CONTRATTO
Vendita
TIPOLOGIA
Ufficio
SUPERFICIE
480 m²
locali
4
PIANO
Non disponibile
TIPO PROPRIETA'
Standard
ALTRE CARATTERISTICHE'
aria condizionata soffitta / mansarda cantina garage riscaldamento autonomo cucina presente cucina abitabile stato di manutenzione ottimo taverna
Costi
€ 480.000,00
prezzo di vendita
Classe energetica D
a+ a b c d e f g
Mappa della zona dell'immobile

Calcola il mutuo

Inserisci i dati mutuo

Rata del mutuo
Al mese
Anticipo
Mutuo
Richiedi consulenza gratuita mutuo

Servizio erogato tramite  

Servizi per te
Inserzionista
Logo PASSERINI IMMOBILIARE
PASSERINI IMMOBILIARE
Gabriele Passerini

Codice annuncio: 2983991

Invia email
ATTENZIONE ALLE TRUFFE
 
NON ANTICIPARE MAI denaro su carte ricaricabili, conti correnti esteri, money transfer o altri sistemi di pagamento

Scopri subito quanto vale la tua casa per l'affitto o per la vendita!

   

Altri annunci simili

Ufficio in vendita in VIA NAZIONALE PONENTE 4/B a Argenta
In vendita ad Argenta, nella zona centrale del comune, proponiamo un ampio ufficio di 480 mq situ...
€ 485.000
4
locali
480 ㎡
superficie
3
bagni
Ufficio in vendita in VIA GUELFA a Bologna
Scopri un'opportunità unica nel cuore di Bologna! In vendita un ampio ufficio di 160 mq situato n...
€ 489.000
160 ㎡
superficie
2
bagni
Ufficio in vendita in Via Respighi a Cattolica
IN ESCLUSIVA! CATTOLICA - ZONA INDUSTRIALE Presentiamo in vendita ufficio di 500mq all'interno de...
€ 500.000
1
locali
500 ㎡
superficie
1
bagni
Ufficio in vendita in Via Respighi a Cattolica
IN ESCLUSIVA! CATTOLICA - ZONA INDUSTRIALE Presentiamo in vendita ufficio di 500mq all'interno de...
€ 500.000
1
locali
500 ㎡
superficie
1
bagni